查看完整案例

收藏

下载
项目名称:杭州武林美术馆
位置:杭州
设计公司:筑境设计
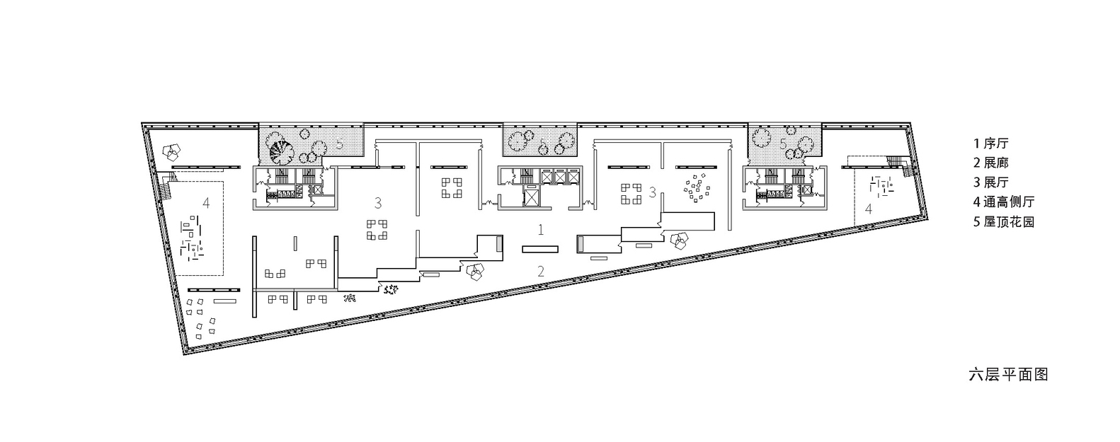
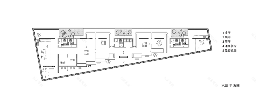
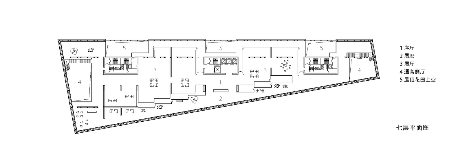
这是一座集艺术展览和文化产业为一体的文化综合体。项目基地位于杭州市拱墅区新天地综合体南部,周边建筑较为密集,多为办公、商业和住宅,功能多样。在这样一处与城市生活紧密关联的场地中,设计期望新建建筑与周边环境间形成友好的对话和互动关系,进而创造一座生发着城市活力的美术馆。场地呈不规则狭长形,东西宽约60米,南北长约240米,其西、北两侧均为高层办公建筑,南端为幼儿园,西南角规划为城市公园,为此,设计考虑将大体量的建筑主体靠北侧布置,以与周边的高层建筑组群形成空间上的照应;同时于南部降低建筑高度,减弱其体量,结合开放式的街边庭院布局和社区服务中心的功能,营造出一处尺度宜人,与南端幼儿园及一旁城市公园有良好对话的街边日常活动场所。美术馆的艺术空间,占地上建筑面积的三分之一,是建筑中最重要的主体,也是最吸引人的空间场所。
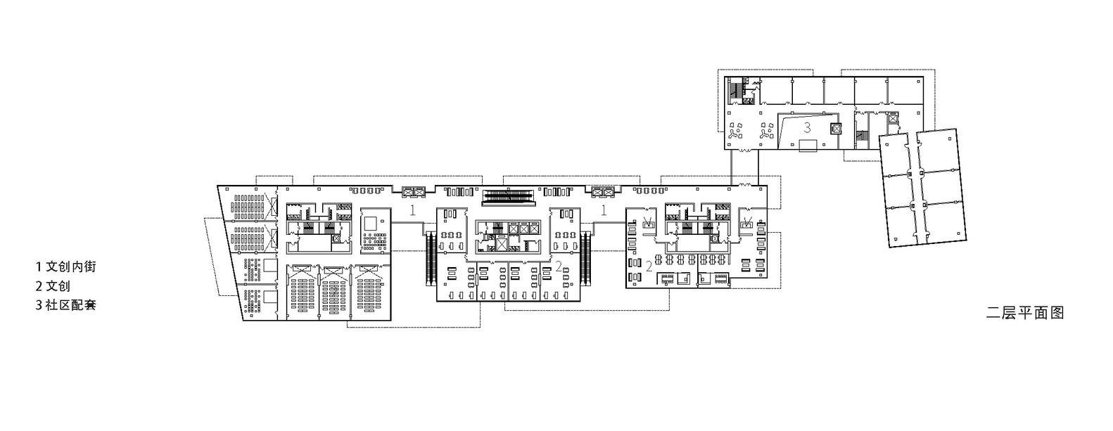
但是受展览频次、开放时间、布展等因素的限制,艺术空间使用频率较低,与城市日常的交互频度也相对较低,互动较弱。相反,占有地上建筑面积三分之二的文化产业空间和社区服务等功能,关联着日常通勤、服务和交往,与城市日常交互频度相对较高,互动较强。基于此,我们将艺术空间置于建筑的高区,悬浮于城市之上,相对独立。观展人流可通过底层入口大厅,经垂直电梯便捷地上至高区展览空间。这样的布局,既切合目的性较强的参观人群的行为特点,又凸显了美术馆的主体。文化产业、社区服务这些与城市交互频度较高的场所置于建筑低区,贴近街道布置,并于底层融入部分商业。这些空间组织自由、构成灵活,可适应未来多种变化。而在高、低区之间,则是联系两区间的空中庭园,设置有文创、餐厅等配套功能,便于使用者的交往。
此外,该区域自由开放,公众可通过南端独立的电梯厅直达于此,为激发美术馆的城市活力带来更多的可能。基于此,我们将艺术空间置于建筑的高区,悬浮于城市之上,相对独立。观展人流可通过底层入口大厅,经垂直电梯便捷地上至高区展览空间。这样的布局,既切合目的性较强的参观人群的行为特点,又凸显了美术馆的主体。文化产业、社区服务这些与城市交互频度较高的场所置于建筑低区,贴近街道布置,并于底层融入部分商业。这些空间组织自由、构成灵活,可适应未来多种变化。而在高、低区之间,则是联系两区间的空中庭园,设置有文创、餐厅等配套功能,便于使用者的交往。此外,该区域自由开放,公众可通过南端独立的电梯厅直达于此,为激发美术馆的城市活力带来更多的可能。无论是面对城市街道还是住区,营造建筑宜人友好的场所环境也是设计的重要面向。
建筑贴近城市主要街道,其界面虚实有序、尺度宜人。设计结合街道场所,沿西侧设置了宜人的沿街景观步行空间,并于其两端结合城市街角环境、社区活动及幼儿园接送场所,设置了小型的街角公园,供人们停留与交往。此外,设计通过分解建筑的大尺度体量,以虚实相间的小尺度体块构成和空透的空中庭园贴近街道和住区。空中庭园在为人们提供交往场所的同时,也以其通透开放,有效降低了美术馆主体对东侧居住区的压迫感,为相邻的居住区和街道带去了清风、绿意和畅朗的感受。建筑受场地限制,呈东西向布局,因此,在满足室内空间光环境的同时,也充分考虑了西晒面的节能需求。
设计结合建筑竖向分区采取以下策略:低区错叠悬挑的小尺度体块,一方面因其产生的阴影本身具有较好的遮阳效果,另一方面,其外覆以竖向格栅和彩釉low-e玻璃,有效遮挡阳光的直射;高区展览空间采取双层呼吸式幕墙,外层采用彩釉low-e玻璃,内层采用U型玻璃,两层玻璃间为1200mm宽的通风空腔,空腔内热空气通过顶部通风格栅带走大量热量,即使在炎热的夏季,室内U玻表面远低于室外温度,有效降低了空调负荷。另外,层层叠叠的绿化屋面在建筑节能和助益海绵城市方面也有较好的效果。美术馆独特的空间架构,清晰明确地表达了建筑的不同功能空间与城市的相互关系,相应地呈现出上部单纯宁静、下部丰富活跃、中部通透友好的场所样态。这些场所与城市中的各色人群、各样活动相互交织,呈现出日常公共生活中丰富多样的人文风景。
杭州武林美术馆外部实景图
杭州武林美术馆外部实景图
杭州武林美术馆外部实景图
杭州武林美术馆外部实景图
杭州武林美术馆外部实景图
杭州武林美术馆外部实景图
杭州武林美术馆外部实景图
杭州武林美术馆外部实景图
杭州武林美术馆外部实景图
杭州武林美术馆外部实景图
杭州武林美术馆外部实景图
杭州武林美术馆外部实景图
杭州武林美术馆外部实景图
杭州武林美术馆外部实景图
杭州武林美术馆外部实景图
杭州武林美术馆外部实景图
杭州武林美术馆外部实景图
杭州武林美术馆内部实景图
杭州武林美术馆内部实景图
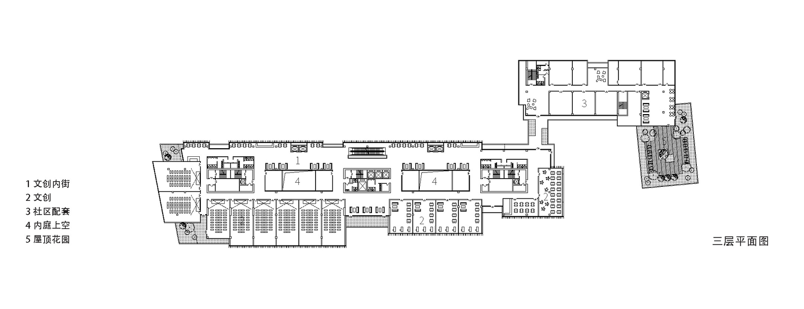
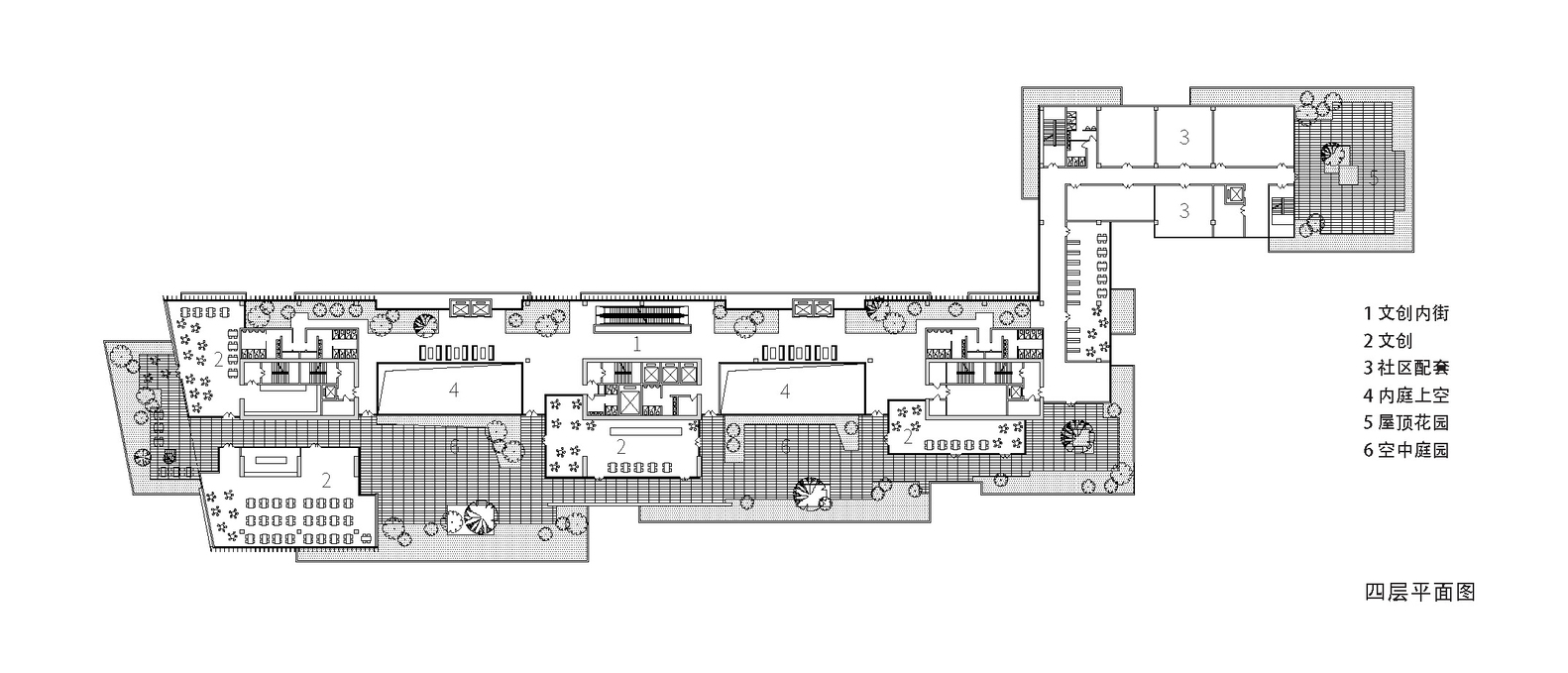
杭州武林美术馆平面图
杭州武林美术馆平面图
杭州武林美术馆平面图
杭州武林美术馆平面图
杭州武林美术馆平面图
杭州武林美术馆平面图
杭州武林美术馆平面图
杭州武林美术馆平面图
杭州武林美术馆平面图
杭州武林美术馆平面图
杭州武林美术馆透剖面图
客服
消息
收藏
下载
最近

































