查看完整案例

收藏

下载
项目名称:清远慈湖书院
位置:清远
设计公司:城外建筑
联想戛然而止,内心泛起一股冲动,试着以建筑的形式与这片场地完成一次对话。面对这片孤岛,与世隔绝的静谧,仿佛亘古不变的湖水,大地沙石横走,杂草树木丛生,建筑该以何种方式来完成这场对话?最终我们把目光投向了毗邻项目场地的千年古寺——慈湖圣境丰盛古寺,这座肇始于北宋时期的庙宇,整体布局沿着岛屿等高线,铺展顺延开来,多重轴线交叠,矩形、半圆形的台地依据地形,错开扭转,时而上升,俄顷叠落,植被依附穿插其中,野趣横生,意犹未尽。设计借鉴古寺布局,根据场地背山面水的地势,以及树的方位,建筑以多级台地的形式,通过扭转、错开、起伏,塑造出简洁有力的几何体块,使用场地最原始的黄褐色统一外立面,使建筑彷佛从土地生长出来一般,矗立在孤岛之上,背靠群山,面朝慈湖,嵌入于山水之间,对话远古和未来。
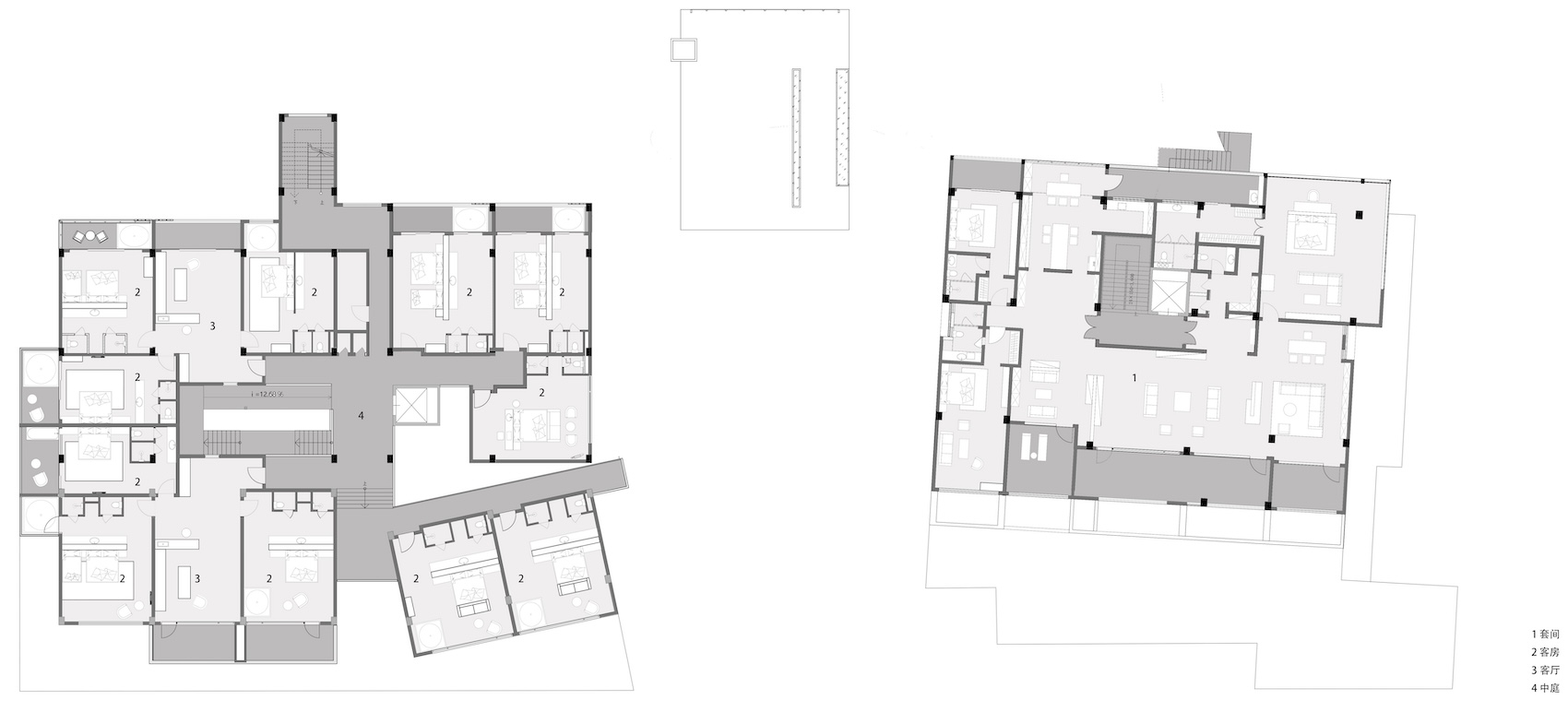
“峡谷”光庭——场地西侧原本的校舍,已不适合新的功能需求,决定进行拆除重建,同原设计已浇筑好的混凝土框架,重组为三层带中庭的建筑空间,而中庭正是新旧结构之间留空的部位。新建筑首层功能为一个连续空间的大公共厅,临湖面为吧台、餐厅和休闲区,中部的光庭为前后两个时期的建筑体块围合而成,台阶坡道盘旋贴壁而上,如登山步道般在峡谷中穿行,通往二、三层的客房和屋顶。在这由低到高的过程,亦可感受从清晨到傍晚的光影变化。场地东西两侧的建筑地坪原有高差1.5米,设计顺应地势将中庭地面标高抬升至0.75米,置入坡道和台阶串通整体空间,形成连续的漫步体验和空间流转,一如踏勘时在古寺中的行走感受。通过一系列移步景异的游走空间,让人穿行其中,对话自然,对话建筑,对话自身。
中庭空间——中庭为本次设计的重点,场地原有两栋建筑东西布置,中部的空缺使得空间的流转和功能的连续在此处断开了,需要一个物体空间来连接,它应该一个模糊的空间,一个特殊的触媒,介于室内和室外之间,使整体建筑发生空间反应。这样,一个柔和的形象慢慢浮现出来,圆筒图书馆和半圆形水院,作为过渡的转换空间,它们似乎正合适。中庭的中轴由北往南,依次为竹林山坡、圆筒图书馆、半圆水池、长条泳池和草坡,在功能上动静分区,把需要安静的图书馆偏向山体,泳池纵向面对湖水。同时不同空间的标高逐步叠落,顺应场地原本的山势走向,整个中庭彷佛嵌在大地之上,每一处的平台的视线,都能够贯穿山林和湖野景观。通过高低直曲片墙的置入,控制不同平台空间的视线关系和围合感,丰富在其间的漫步体验,让人和人、人和空间之间,处于看、被看和看不见之间的关系。
图书馆——建筑主体在山坡上的,在结构形式上顺应地势,首层基座采用混凝土作为挡土墙,二层则用轻钢网架弯成拱形,轻盈的架在基座上,一实一虚,形成鲜明对比。结构刚落成时,在厚重的钢筋混凝土面前,透过消隐的网架望向天空和后山,有一种说不出非现实感。中庭的半圆水院与圆筒状的图书馆在形式上对偶,而水院边上的弧形片墙与图书馆断开的筒形屋面则是另一处对偶关系。半圆下沉台阶和图书馆底部的内凹空间形成围合,隔水相望,通过斜桥进入,在其上行走的人亦成为他人的风景,这里是每个人的舞台。侧门推开,转身面对的是通往二层图书馆的楼梯,天光倾泻而下,倒映在通高的书架墙上,拾级而上,郁郁葱葱的树梢隐没在尽端,那是来自后山的呼唤。
图书馆内部和外部形成一体的建筑空间,一个完整的圆筒空腔,足以容纳天光、湖水、山体和书籍,同来往的人交织出光影和声音的流转。内部空间由三个部分组成,临窗的望湖区,中部的阅读台阶,直面后山的书写区,相邻区域的高度逐步抬升,使得每个人在看书的同时亦可望湖。地面高度的变化也形成了空间体验上的递进,在台阶最高处直面后山的青翠,回望慈湖和碧空,以及从侧高窗正视远处山顶的古寺高塔,这一刻,顶部天光在地面悄悄流逝,是否会唤起某种联想,可能是关于自然的,关于过去的,关于自己的,或只是空想。最终,拱形的图书馆、连续展开的公共空间、峡谷般的中庭、层叠错落的露台,构筑成了一座人工的几何岛屿,在其间漫游、驻留、阅读、闲谈、发呆、饮食、安寝,一系列的场景如长轴画卷般展开。慈湖书院,不止是一间民宿,也是每个人的心灵岛屿,一处探寻自我的人文居所。
清远慈湖书院外部实景图
清远慈湖书院外部实景图
清远慈湖书院外部实景图
清远慈湖书院外部实景图
清远慈湖书院外部实景图
清远慈湖书院外部实景图
清远慈湖书院外部实景图
清远慈湖书院外部实景图
清远慈湖书院内部实景图
清远慈湖书院内部实景图
清远慈湖书院内部实景图
清远慈湖书院内部实景图
清远慈湖书院内部实景图
清远慈湖书院内部实景图
清远慈湖书院内部实景图
清远慈湖书院内部实景图
清远慈湖书院内部实景图
清远慈湖书院内部实景图
清远慈湖书院平面图
清远慈湖书院平面图
清远慈湖书院平面图
清远慈湖书院平面图
客服
消息
收藏
下载
最近

























