查看完整案例

收藏

下载
项目名称:甘肃康县全域旅游游客集散中心
位置:甘肃
设计公司:Farmerson Architects共生建筑设计(北京)有限公司
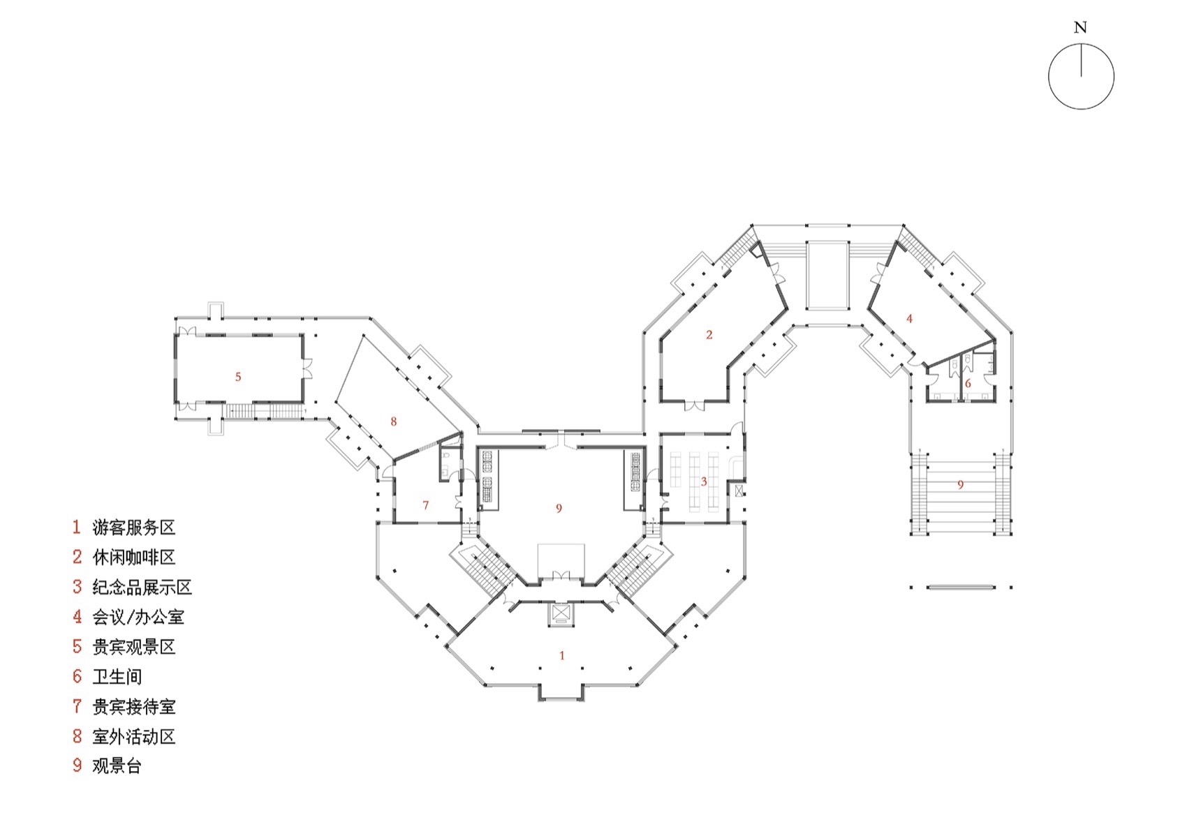
于在建的青龙山旅游度假区入口区设置游客中心,是整合这里山水人文的一个动作。设一大水面倒映山川建筑;立一笔架山形室外展廊作照壁;建龙形建筑连两岸山势;布萌虎乐园、舞台等于其间丰富人气空间。共生建筑团队以传统风水格局出发,诗意排布文房四宝意象,让文旅设施与山水画意共生。蜿蜒起伏的整体线性瓦面屋顶;弯折自然形成的南北院落;由“廊”、“架”、“间”、“榀”传统木构发展出来的空间组合及构筑方式;瓦顶、石木墙及台阶三段式的建筑立面形式,皆与当地民居建筑神似,却也进行了当代化的转译。游客大厅背面布置为旅游展厅,屋顶转化为观景平台,此处汇集三面坡顶下来的雨水,设计师将水汇合进从山上引来的自然河水中,一起流入大水池,设计了立面瓦墙、龙头吐水和块石散置等元素。
这里也成为向“四水归堂”等传统空间致敬、建筑与自然共生的“天水庭院”。屋顶的高低起伏,让其下的空间可操作为一种丰富的状态,成为一个开合有度的聚落。建筑榀架的“廊”为交通空间,由楼梯和廊子形成,上下左右游动,串起各处功能房间和平台,设计师称之为空间之间的“双龙戏珠”。有屋檐、廊、及体块之间的虚空间,包括龙尾部分开放的观演台阶空间,组成一个变化丰富的开放系统。整个建筑以一种易识别、开放、谦和、景观丰富多变的姿态迎接到访的游客们。作为一个面向普罗大众的游客中心建筑,建筑师直面“表意建筑”,让建筑以民众易亲近识别的形态出现。在青龙山旅游区的上位规划中,“龙”文化以“蛟龙在水”、“见龙在田”、“游龙在山”等分段表述。因此在“蛟龙在水”位置,建筑师直接以空间形态答题。建设过程和建成后,收到了领导及普通大众的盛赞,雅俗共赏之。
甘肃康县全域旅游游客集散中心外部实景图
甘肃康县全域旅游游客集散中心外部实景图
甘肃康县全域旅游游客集散中心外部实景图
甘肃康县全域旅游游客集散中心外部实景图
甘肃康县全域旅游游客集散中心外部实景图
甘肃康县全域旅游游客集散中心外部实景图
甘肃康县全域旅游游客集散中心外部实景图
甘肃康县全域旅游游客集散中心外部实景图
甘肃康县全域旅游游客集散中心外部实景图
甘肃康县全域旅游游客集散中心外部实景图
甘肃康县全域旅游游客集散中心外部实景图
甘肃康县全域旅游游客集散中心外部实景图
甘肃康县全域旅游游客集散中心外部实景图
甘肃康县全域旅游游客集散中心外部实景图
甘肃康县全域旅游游客集散中心外部实景图
甘肃康县全域旅游游客集散中心外部实景图
甘肃康县全域旅游游客集散中心外部实景图
甘肃康县全域旅游游客集散中心外部实景图
甘肃康县全域旅游游客集散中心外部实景图
甘肃康县全域旅游游客集散中心外部实景图
甘肃康县全域旅游游客集散中心外部实景图
甘肃康县全域旅游游客集散中心外部实景图
甘肃康县全域旅游游客集散中心外部实景图
甘肃康县全域旅游游客集散中心内部实景图
甘肃康县全域旅游游客集散中心内部实景图
甘肃康县全域旅游游客集散中心内部实景图
甘肃康县全域旅游游客集散中心内部实景图
甘肃康县全域旅游游客集散中心平面图
甘肃康县全域旅游游客集散中心平面图
甘肃康县全域旅游游客集散中心平面图
甘肃康县全域旅游游客集散中心平面图
甘肃康县全域旅游游客集散中心剖面图
甘肃康县全域旅游游客集散中心剖面图
甘肃康县全域旅游游客集散中心剖面图
甘肃康县全域旅游游客集散中心剖面图
甘肃康县全域旅游游客集散中心剖面图
甘肃康县全域旅游游客集散中心剖面图
甘肃康县全域旅游游客集散中心剖面图
客服
消息
收藏
下载
最近









































