查看完整案例

收藏

下载
项目名称:澳大利亚沃南布尔图书馆和学习中心
位置:澳大利亚
设计公司:Kosloff Architecture
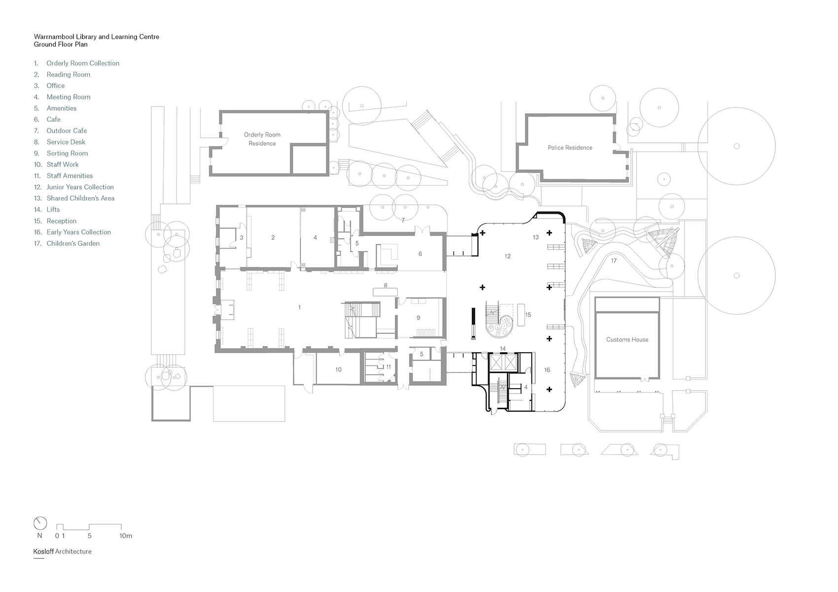
沃南布尔图书馆和学习中心取代了现有的地方图书馆,在沃南布尔市中心CDB区域提供了一个更大、更明亮和更便捷的空间。这个新空间位于TAFE(新南威尔士州技术与继续教育学院)校园,为当地社区以及TAFE的学生和员工提供服务。该空间包括一个现代化的室内外咖啡馆、公用机房、展览和展示区、学习和阅读空间、会议室、专门的儿童区域以及游戏和数字媒体区。该项目是维多利亚政府、TAFE学院和沃南布尔市政府合作的成果,实现了将教育、社区和艺术融合的愿景。该项目包括一座新的3层现代建筑,通过玻璃连接通道与经过翻修并被列入遗产名录的1868年单层行政大楼相连接,同样是现场具有文物价值的九座建筑之一。连接通道充当人行道,为校园提供步行路径,并清晰划分了有文物价值的建筑与新结构。另一个与新旧风格相契合的关键设计元素是一座“桥”,它在一楼的位置上创建了额外的连接,原始的行政大楼内设有一个原始的舞台。
该桥以类似的表现形式运作,为就坐或表演提供足够空间,还为两栋建筑提供开阔的视野。现代建筑的曲线外立面展现了沃南布尔和海洋的设计意向,预制混凝土定义了现代上层的建筑语言,并为相邻的有文物价值的海关大楼提供了背景幕布。这些生动的形式使外立面能够脱离玻璃元素和固定视角,并能够通过设计调节光照和遮阳。室内参考了罗伯特·霍德尔创建的沃南布尔中心区域的网格规划,以及行政大楼内的方格吊顶。这有意延伸了城市和有文物价值的建筑之间的现有建筑关系,并将现代建筑和传统建筑结合在一起。在每个新楼层中都有方格和吊顶天花板,不同的天花板都是原始天花板的现代解构。通过尽可能地重新利用自适应的材料,精心选择最低维护成本的可持续性材料,该项目将对环境的影响最小化。园林景观也考虑了当地植物的多样性和树木林荫的长期生长。并安装了雨水花园。
澳大利亚沃南布尔图书馆和学习中心外部实景图
澳大利亚沃南布尔图书馆和学习中心外部实景图
澳大利亚沃南布尔图书馆和学习中心外部实景图
澳大利亚沃南布尔图书馆和学习中心外部实景图
澳大利亚沃南布尔图书馆和学习中心外部实景图
澳大利亚沃南布尔图书馆和学习中心内部实景图
澳大利亚沃南布尔图书馆和学习中心内部实景图
澳大利亚沃南布尔图书馆和学习中心内部实景图
澳大利亚沃南布尔图书馆和学习中心内部实景图
澳大利亚沃南布尔图书馆和学习中心内部实景图
澳大利亚沃南布尔图书馆和学习中心平面图
澳大利亚沃南布尔图书馆和学习中心平面图
澳大利亚沃南布尔图书馆和学习中心平面图
澳大利亚沃南布尔图书馆和学习中心平面图
澳大利亚沃南布尔图书馆和学习中心立面图
澳大利亚沃南布尔图书馆和学习中心立面图
客服
消息
收藏
下载
最近



















