查看完整案例

收藏

下载
项目名称:土耳其AGU博物馆和图书馆
位置:土耳其
设计公司:EAA -埃姆雷·阿罗拉特建筑公司
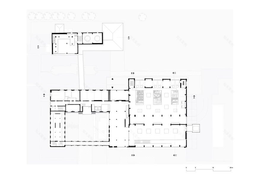
被翻新为博物馆和图书馆的建筑仅仅是1920年苏美尔班克纺织厂众多单元中的两个开塞利,土耳其。该生产设施建于1933-1935年,由俄罗斯建筑师伊万·尼古拉耶夫设计,是土耳其共和国时期工业化和现代化最重要的标志之一。在1999年关闭后,这个包含俄罗斯建构主义建筑独特范例的工业综合体获得了现代纪念碑的地位,并于2012年注册到AGU,一所新成立的大学,作为其主要校区。同年,居尔邀请Emre Arolat执行整个建筑群的建筑设计和再利用策略。2013年,校园内的两座建筑——发电站和蒸汽工厂——被决定改建为总统博物馆和图书馆,EAA被指派执行建筑设计。每一栋建筑,历经多年的荒废和衰败,都拥有大量的空间,同时保留了一些真实的铜绿。一般的方法是保存任何长期保存下来的物质,并保持其原有的特征。新旧结合的建筑策略不是试图强调属于不同时代的部分之间的对比,而是创造一个连贯的建筑整体。
从这个意义上说,在满足必要的安全和无障碍法规的同时,为维护现有元素和寻找处理建筑服务的最佳方式付出了巨大努力。材料的选择体现了尽可能保护建筑的原则。发电厂的内部根据其作为博物馆的新用途进行了组织,同时设计成让参观者体验建筑的起源。隐藏在几层覆盖层下的是原来的灰坑,它们是可见的,成为展览体验的重要组成部分。蒸汽工厂被翻新成一个现代化的信息中心,图书馆和档案馆与博物馆有着密切的联系。一个更大胆的介入,一个3层的书架结构被整齐地放置在蒸汽工厂的主大厅里,在形式和空间上与已经存在的东西相结合。类似于电站中的灰室,现有的混凝土筒仓基础被保留了下来,现在在放松的阅览室里强调了空间的容量。展览设计通过使用半离散空间来创建主题游客之旅,展览设计从土耳其价值观、传统和文化的元素中获得灵感,并对建筑的内在特征(如体积、纹理和自然光)保持尊重。阿卜杜拉·居尔博物馆和图书馆于2016年竣工,是一个独特的全球城市中心范例。
土耳其AGU博物馆和图书馆外部实景图
土耳其AGU博物馆和图书馆外部实景图
土耳其AGU博物馆和图书馆外部实景图
土耳其AGU博物馆和图书馆外部实景图
土耳其AGU博物馆和图书馆内部实景图
土耳其AGU博物馆和图书馆内部实景图
土耳其AGU博物馆和图书馆内部实景图
土耳其AGU博物馆和图书馆内部实景图
土耳其AGU博物馆和图书馆内部实景图
土耳其AGU博物馆和图书馆内部实景图
土耳其AGU博物馆和图书馆内部实景图
土耳其AGU博物馆和图书馆内部实景图
土耳其AGU博物馆和图书馆内部实景图
土耳其AGU博物馆和图书馆内部实景图
土耳其AGU博物馆和图书馆内部实景图
土耳其AGU博物馆和图书馆内部实景图
土耳其AGU博物馆和图书馆内部实景图
土耳其AGU博物馆和图书馆内部实景图
土耳其AGU博物馆和图书馆内部实景图
土耳其AGU博物馆和图书馆内部实景图
土耳其AGU博物馆和图书馆平面图
土耳其AGU博物馆和图书馆平面图
土耳其AGU博物馆和图书馆平面图
土耳其AGU博物馆和图书馆剖面图
土耳其AGU博物馆和图书馆剖面图
客服
消息
收藏
下载
最近




























