查看完整案例

收藏

下载
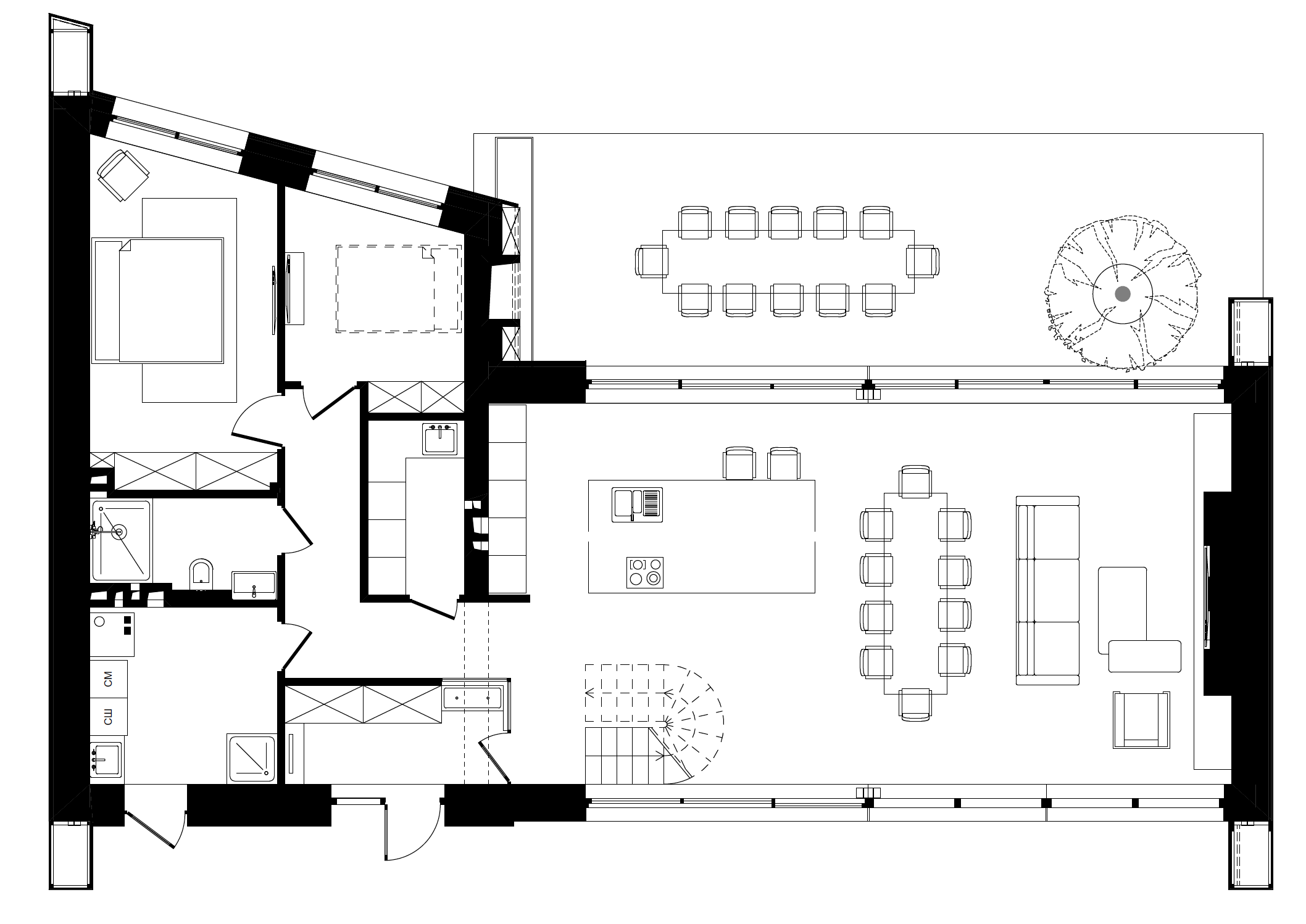
在一座风景如画的城市中,一座乡村私人住宅的设计开始于场地的初始数据,周围环绕着池塘和松树。 地块面积和施工安全限制构成了建筑场地。 根据客户的要求,避暑别墅内部必须宽敞,不能创造不必要的空间。 从外部看,房子必须与自然环境融为一体,因此饰面选择了木质与立缝的组合。 房子内部由三间卧室、三间浴室、一间游戏室、一间小型技术厨房以及主客厅、餐厅和厨房区组成,这些区域已成为房子里所有居民的吸引力所在。 这座房子是房主及其生活习惯的有形反映。 宽敞的客厅空间可以让您聚集大量的客人。 厨房岛不仅是烹饪区,也是自助餐、联合烹饪和社交的好地方。 岛台配有水槽和带内置油烟机的炉灶。 壁炉是冬季夜晚无可争议的吸引力中心,大桌子一次最多可容纳 10 人。 应特别注意楼梯,它优雅地融入客厅。 带推拉门的大窗户让您在温暖的季节尽可能地与大自然融为一体。
客服
消息
收藏
下载
最近




















