查看完整案例

收藏

下载
项目名称:韩国妈妈的花园中心
位置:韩国
建筑师: Todot建筑师和合伙人
尽管该场地位于郊区,但比周围的街区人口更稠密。附近有火车站、公寓、市场和学校。“妈妈的花园”坐落在镇中心的郊区,单层商店沿着三车道的道路分散开来,创造了一个宁静的街景。这位土生土长的客户带着一份在他父亲继承的土地上建造社区设施的计划拜访了我们。问题是“郊区的社区设施看起来像什么?”由于臭名昭著的高地价,韩国首都首尔的社区设施在法律允许的范围内最大限度地增加了建筑面积。然而,由于郊区人口少,建设成本高,与低地价形成鲜明对比,郊区存在大量替代方案。考虑到场地的背景和其他问题,我们决定设计一个三层的社区设施,通过庭院和阳台与街道相连。我们期望这个决定,就像商店前的桌子或座位区一样,将允许路人自由地呆在院子里,相互交往,作为公共空间,同时给院子周围的商店注入活力。公众和商业领域之间的模糊性往往会导致更成功的项目。我们在这个项目中设想了这样一个花园或庭院,它可以加强当地居民之间的关系和认同感。此外,我们将这个项目命名为“妈妈的花园”,期望它能像母亲的拥抱一样拥抱客户、承租人、使用者和其他人。即使我们让花园“空空如也”,但它很快就会充满了人、记忆和活力。
韩国妈妈的花园中心外部实景图
韩国妈妈的花园中心外部实景图
韩国妈妈的花园中心外部实景图
韩国妈妈的花园中心外部实景图
韩国妈妈的花园中心外部实景图
韩国妈妈的花园中心外部实景图
韩国妈妈的花园中心外部实景图
韩国妈妈的花园中心外部实景图
韩国妈妈的花园中心外部实景图
韩国妈妈的花园中心外部实景图
韩国妈妈的花园中心内部实景图
韩国妈妈的花园中心内部实景图
韩国妈妈的花园中心平面图
韩国妈妈的花园中心平面图
韩国妈妈的花园中心平面图
韩国妈妈的花园中心平面图
韩国妈妈的花园中心平面图
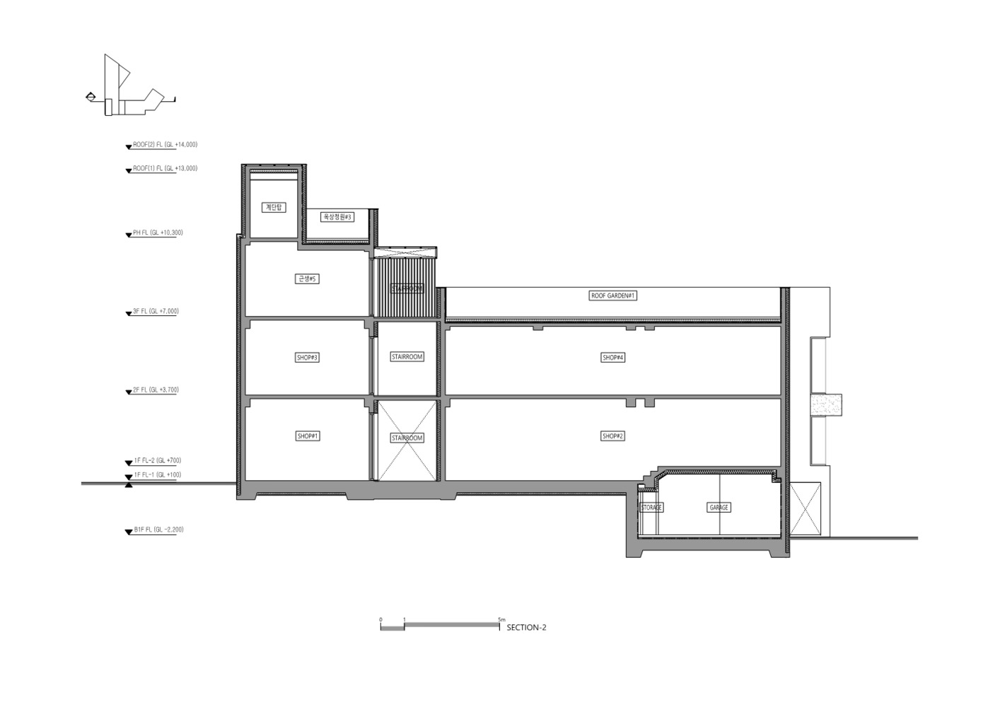
韩国妈妈的花园中心剖面图
韩国妈妈的花园中心剖面图
韩国妈妈的花园中心剖面图
韩国妈妈的花园中心剖面图
韩国妈妈的花园中心立面图
韩国妈妈的花园中心立面图
韩国妈妈的花园中心立面图
韩国妈妈的花园中心立面图
客服
消息
收藏
下载
最近




























