查看完整案例

收藏

下载
项目名称:苏格兰Eyemouth展馆-社区中心
位置:苏格兰
设计公司:加尔姆斯特鲁普建筑师事务所
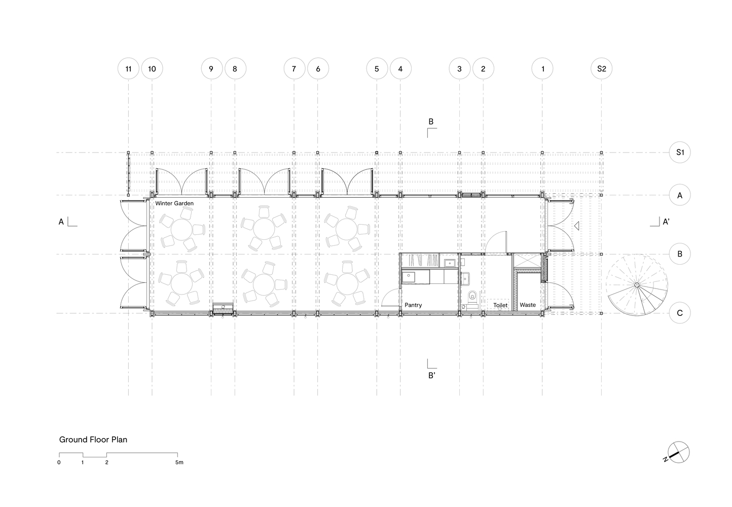
eye mouth pages是苏格兰渔业城镇中心的一个新的公共主播眼嘴。这也是一个机会,重塑更广泛的港口地区,创造一种新型的城市空间。工作港口和保护区的强烈真实性,以及港口向新的可持续海洋经济的积极转变,给了我们灵感。该项目由一系列亭子组成,底层是供社区使用的冬季花园,一楼是供初创企业家使用的独立工作室。第一座南馆现已完工。弯曲的锌屋顶向该镇的航海和造船历史以及面向大海的传统山墙房屋致敬。该结构是交叉层压木材(CLT),位于胶合木梁和钢柱上。外壳通过CLT和高性能绝缘材料进行绝缘和声学调节,并在一楼覆盖有船舶实验室型材。建筑自然通风,大的开口让室内有充足的自然采光。总的来说,这是一个高性能、低能耗、二氧化碳友好型建筑,同时也是一个社会可持续发展的过程,在这个过程中,行人和社区活动都是这个地方的一部分。外部,一条新的长廊将连接天然港和海滨,并环绕进入老城区的高街。交织在展馆之间的是正在建设中的海上花园,这是在建设期间与当地高中的学生共同创建的生产花园,现在由该镇的改善小组负责照管。
客户的观点眼嘴滨水再生项目是我们首要目标的一个组成部分。对当地称为“旧鱼市场”的地方进行创新性的再开发,旨在创造一个有助于实现可持续经济增长的地方眼嘴,让游客和居民感到亲切和愉快,并恢复对海滨地区的认同感眼嘴。|客户:唐纳德·达根-董事长眼嘴海港信托|从一开始,我们就被Galmstrup Architects领导的项目团队的高度承诺、专业精神和热情所折服。这是一段迷人的旅程,我们积极应对挑战。Galmstrup建筑师花时间充分理解了这个纲要,以及这个开发项目将如何坐落在城镇内部,而不仅仅是港口附近。该团队确保这一点完全融入到设计和施工中,打造出令人惊叹的高品质建筑,为各种用途提供最大的灵活性,并全年提供独特的滨水空间。海港展馆已经被证明是镇上的一个受欢迎的空间,我们完全期待它将成为进一步滨水区再生的催化剂。我迫不及待地想看到当我们进入春天和夏天时它将被充分利用时所产生的轰动效应。建筑师的观点:我们采取了一种城市的方式,与最初给我们的旧鱼市场相比,我们在海滨地区做了一个很长的延伸。
社区显然希望开放视野,更好地利用这个中心网站。我们的建议是将市中心、海滨和海港连接起来,成为保护区内的一个自然环路。因此,我们建议建造一系列带有花园和广场的小亭子,而不是一个长长的建筑。该项目在此将大面积的开放空间还给城镇的市民使用。一个“看见和被看见”的地方。一个年轻人和当地企业都非常需要的地方,以迎合许多夏季客人。通常,社区中心一旦委托建筑师,就已经有了合适的空间和活动。我们与我们的客户一起工作,探索哪些活动和功能项目可能对社区有用,并补充现有的基础设施,而不是与之竞争。我们的客户做出了一个雄心勃勃的决定,这个项目为他们的港口创造了一个强有力的地标和开放的社区空间——这个项目得到了社区的好评。因此,新的眼嘴旧鱼市遗址上的亭子不仅仅是砖块和砂浆。它提供了一种新型的城市空间,将在未来几年随着用户的成长而成熟。社区建筑和建筑是可持续健康社会的重要资源。随着大型公共和商业设施建在城镇外围或城镇之间,苏格兰城镇和当地主要街道变得越来越脆弱。通过淡化当地的主要街道和消除步行从我们的城市,我们变得更加超然和被动,从我们的同胞。加强我们城镇中心的零售和休闲设施对当地经济至关重要,并已被证明是积极公民的宝贵工具。
苏格兰Eyemouth展馆-社区中心外部实景图
苏格兰Eyemouth展馆-社区中心外部实景图
苏格兰Eyemouth展馆-社区中心外部实景图
苏格兰Eyemouth展馆-社区中心外部实景图
苏格兰Eyemouth展馆-社区中心外部实景图
苏格兰Eyemouth展馆-社区中心外部实景图
苏格兰Eyemouth展馆-社区中心外部实景图
苏格兰Eyemouth展馆-社区中心外部实景图
苏格兰Eyemouth展馆-社区中心内部实景图
苏格兰Eyemouth展馆-社区中心内部实景图
苏格兰Eyemouth展馆-社区中心内部实景图
苏格兰Eyemouth展馆-社区中心内部实景图
苏格兰Eyemouth展馆-社区中心内部实景图
苏格兰Eyemouth展馆-社区中心平面图
苏格兰Eyemouth展馆-社区中心平面图
苏格兰Eyemouth展馆-社区中心剖面图
苏格兰Eyemouth展馆-社区中心剖面图
客服
消息
收藏
下载
最近




















