查看完整案例

收藏

下载
项目名称:新华书店·玉溪·聂耳书城
位置:玉溪
设计公司:S+P空间的诗学设计事务所
虽然我们无法知道天堂具体的样子,但一些书店正成为都市人向往的地方。玉溪,爱国音乐家聂耳的故乡。当地有许多纪念聂耳的地方,包括这家命名为聂耳书城的新华书店。走进书店,映入眼帘的是三把线条流畅的楼梯,看似通过钢索连接,从顶部贯穿而下。整个空间以白色为主色调,搭配上原木色有一种安静自然的舒适感。书店原本是一栋旧房子,楼梯是在原有楼梯布局上重新设计的。我们沿用了原有建筑的形式,空间关系,在此之上做出新的感受。光影交错间,时光在慢慢流淌。书店的主光源来自于玻璃屋顶,自然光透过钢架和玻璃洒进室内,一天之中都会呈现出不同的样子。三楼墙面采用镂空隔断的设计,在保证采光效果的同时又不失私密性,疏疏密密间保持着优雅。走上二楼,一定会被一个黄色的蛋吸引,这是书店里的咖啡屋,与图书区域做出区隔。在安静的读书区是一种氛围,来到咖啡屋又是另一种休闲的感觉,让读书的感受更加丰富。书店既可以是文化沙龙,也可以是社交打卡胜地;不仅可以用来消磨时间,还可以给身心带来放松与休息。无论是阅读、社交、咖啡或影音、文创,甚至只是一种舒适的氛围。
新华书店·玉溪·聂耳书城外部实景图
新华书店·玉溪·聂耳书城外部实景图
新华书店·玉溪·聂耳书城内部实景图
新华书店·玉溪·聂耳书城内部实景图
新华书店·玉溪·聂耳书城内部实景图
新华书店·玉溪·聂耳书城内部实景图
新华书店·玉溪·聂耳书城内部实景图
新华书店·玉溪·聂耳书城内部实景图
新华书店·玉溪·聂耳书城内部实景图
新华书店·玉溪·聂耳书城内部实景图
新华书店·玉溪·聂耳书城内部实景图
新华书店·玉溪·聂耳书城内部实景图
新华书店·玉溪·聂耳书城内部实景图
新华书店·玉溪·聂耳书城内部实景图
新华书店·玉溪·聂耳书城内部实景图
新华书店·玉溪·聂耳书城内部实景图
新华书店·玉溪·聂耳书城内部实景图
新华书店·玉溪·聂耳书城内部实景图
新华书店·玉溪·聂耳书城内部实景图
新华书店·玉溪·聂耳书城内部实景图
新华书店·玉溪·聂耳书城内部实景图
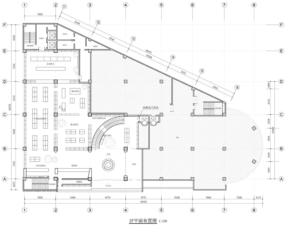
新华书店·玉溪·聂耳书城平面图
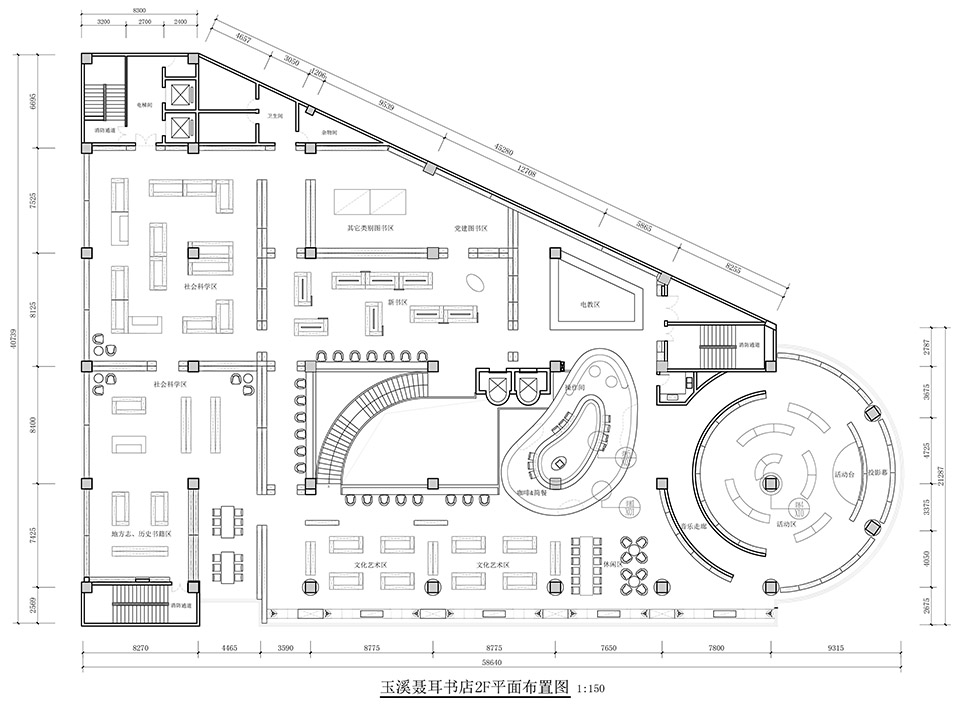
新华书店·玉溪·聂耳书城平面图
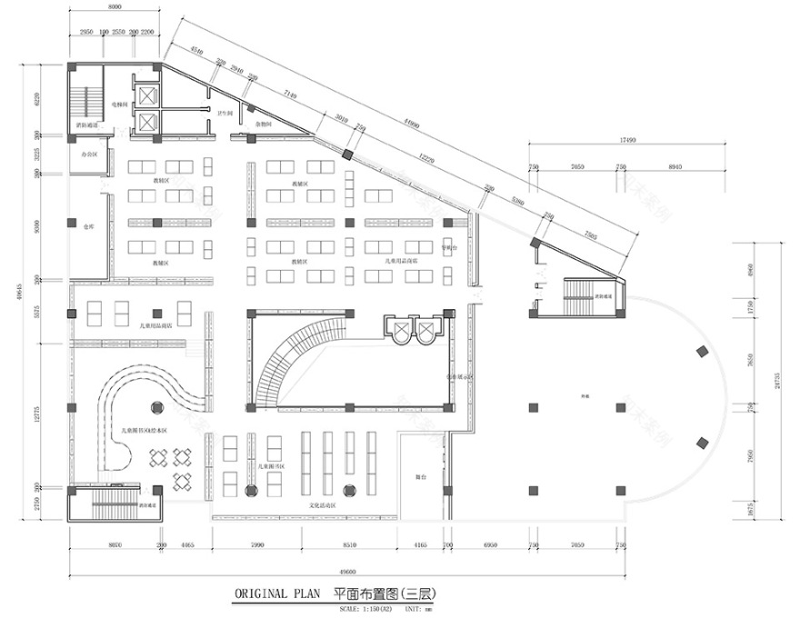
新华书店·玉溪·聂耳书城平面图
客服
消息
收藏
下载
最近



























