查看完整案例

收藏

下载
项目名称:荆门京山市图书档案馆
位置:荆门
设计公司:华中科技大学匠作工作室,武汉华中科大建筑规划设计研究院有限公司
随着城市用地的紧张,城市公共建筑功能集约化与空间复合化的布局逐渐成为主流。湖北省京山市拟在温泉新区文体中心兴建集聂绀弩图书馆、档案馆与非遗展览馆为一体的综合性文化建筑。建筑的公共性、文化性的体现成为设计重点考虑的内容。项目用地面积30941㎡,总建筑面积为15092 ㎡,地上5层,建筑高度23.5米。项目将作为京山文化建设的窗口,用于群众日常文化活动,并集中收藏与展示有关京山的历史文人、历史文献、文化遗产以及当代建设成就,在京山文化服务体系建设中扮演重要作用,对于京山县的文化建设具有重要意义。项目基地位于文体中心多条规划轴线的尽端,是片区重要的规划节点。基地南临自然环境优美的京山河,与对岸京山职业学院隔河相望。设计不仅需要对文体中心建筑轴、景观轴呼应,还要充分考虑与自然景观的协调。作为京山文体中心片区规划的高潮与收尾,设计尊重原有的规划体系,建筑两翼伸出以呼应片区南北两翼建筑群轴线,建筑中部凹入以吸纳方式面向片区中心景观轴线。
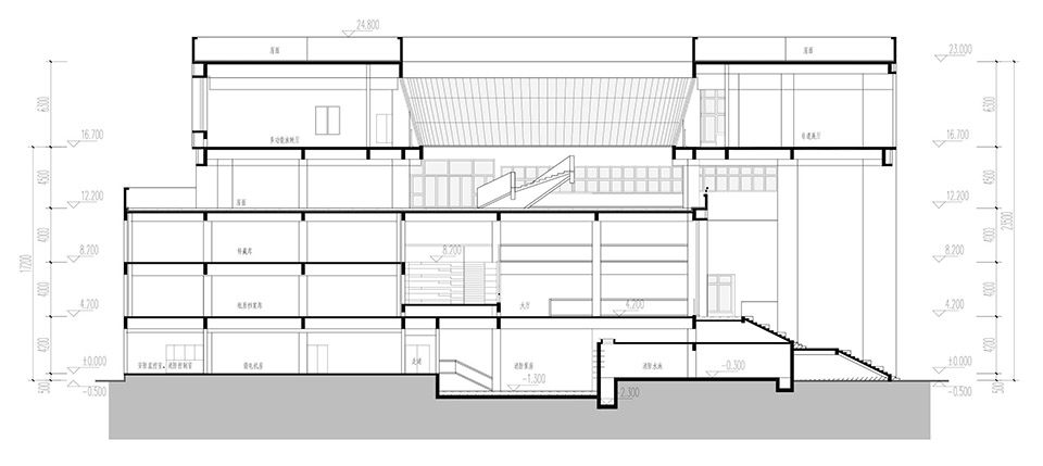
设计充分考虑与片区原有建筑在色彩、造型、风格、尺度上的整体对话与协调。建筑以一种对环境积极应对的姿态而锚固在基地上。项目充分考虑图书馆、档案馆和非遗展览馆三座场馆在公共交流上所必需的共享性,以及在使用上所必需的独立性,通过立体复合的方式实现三馆空间与功能上的整合。共享交流空间位于中部,以立体咬合方式将三馆贯通衔接。这个共享交流空间由此成为建筑最重要的立体交通核,也成为建筑最重要的文化交流核。三馆面向共享交流空间分别在不同标高设置出入口,同时在地面层还设置各自独立的对外出入口。这个共享交流空间完全对外开放,是三馆内部空间和功能向外部的延伸,在闭馆时也能继续成为市民举办公共活动的舞台。三馆保持了功能上的独立性,流线上的清晰性,同时促进了共享与交流,实现建筑空间、功能、造型、流线的有机融合。京山是春秋曾国文化的发源地,设计在建筑共享空间中引入“天圆地方”理念,致敬京山厚重拙朴的传统文化底蕴。
建筑主体部分简洁厚重,大器方正,底部公共大台阶厚重向上,上下两部分组合方式暗含了春秋时期曾国盛行的高台建筑文化。建筑空间围绕中庭展开,符合传统建筑通过庭院组合建筑的空间模式。共享空间的圆形采光中庭,让光线从天顶圆洞照耀下来,一条攀援向上的步道引导着追逐光明的方向,以此象征当地著名诗人聂绀弩一生追求光明,永远攀登向上的精神。设计体现出的文化性和地域性很好地呼应了建筑的公共性主题。设计充分利用整体式节能技术。为避免日晒,主入口采用大面积悬挑形成遮阳。建筑中部设置架空层让空气穿越流通,营造凉爽微气候。中庭顶部开口,便于室内拔风,改善通风效果。由于图书馆为东西朝向,为避免室内受到西晒的影响,朝西立面采用多孔金属板,在保证采光通风的同时避免了阳光的直射。图书馆中庭屋顶设置北向采光顶棚,满足室内阅览空间均匀稳定的采光需求。设计希望建筑既能为京山人民提供一个充满活力的文化场所,又能契合京山的地域文化气质。既强调建筑内部各功能间的共享与融合,又能与外部空间相衔接,由此打造一座能为京山人民服务的“城市客厅”。
荆门京山市图书档案馆外部实景图
荆门京山市图书档案馆外部实景图
荆门京山市图书档案馆外部实景图
荆门京山市图书档案馆外部实景图
荆门京山市图书档案馆外部实景图
荆门京山市图书档案馆外部实景图
荆门京山市图书档案馆外部实景图
荆门京山市图书档案馆内部实景图
荆门京山市图书档案馆内部实景图
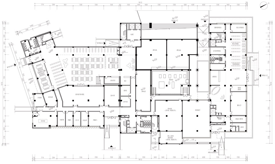
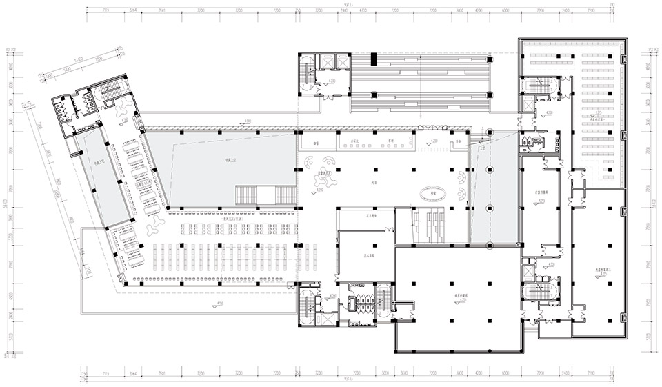
荆门京山市图书档案馆平面图
荆门京山市图书档案馆平面图
荆门京山市图书档案馆平面图
荆门京山市图书档案馆平面图
荆门京山市图书档案馆平面图
荆门京山市图书档案馆平面图
荆门京山市图书档案馆平面图
荆门京山市图书档案馆平面图
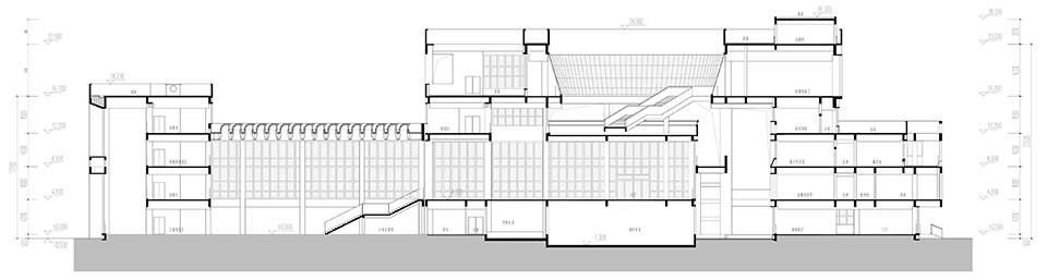
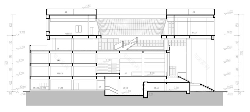
荆门京山市图书档案馆剖面图
荆门京山市图书档案馆剖面图
荆门京山市图书档案馆立面图
荆门京山市图书档案馆立面图
荆门京山市图书档案馆立面图
客服
消息
收藏
下载
最近

























