查看完整案例

收藏

下载
项目名称:法国Pélissanne媒体图书馆
位置:法国
设计公司:尼克·库隆律师事务所
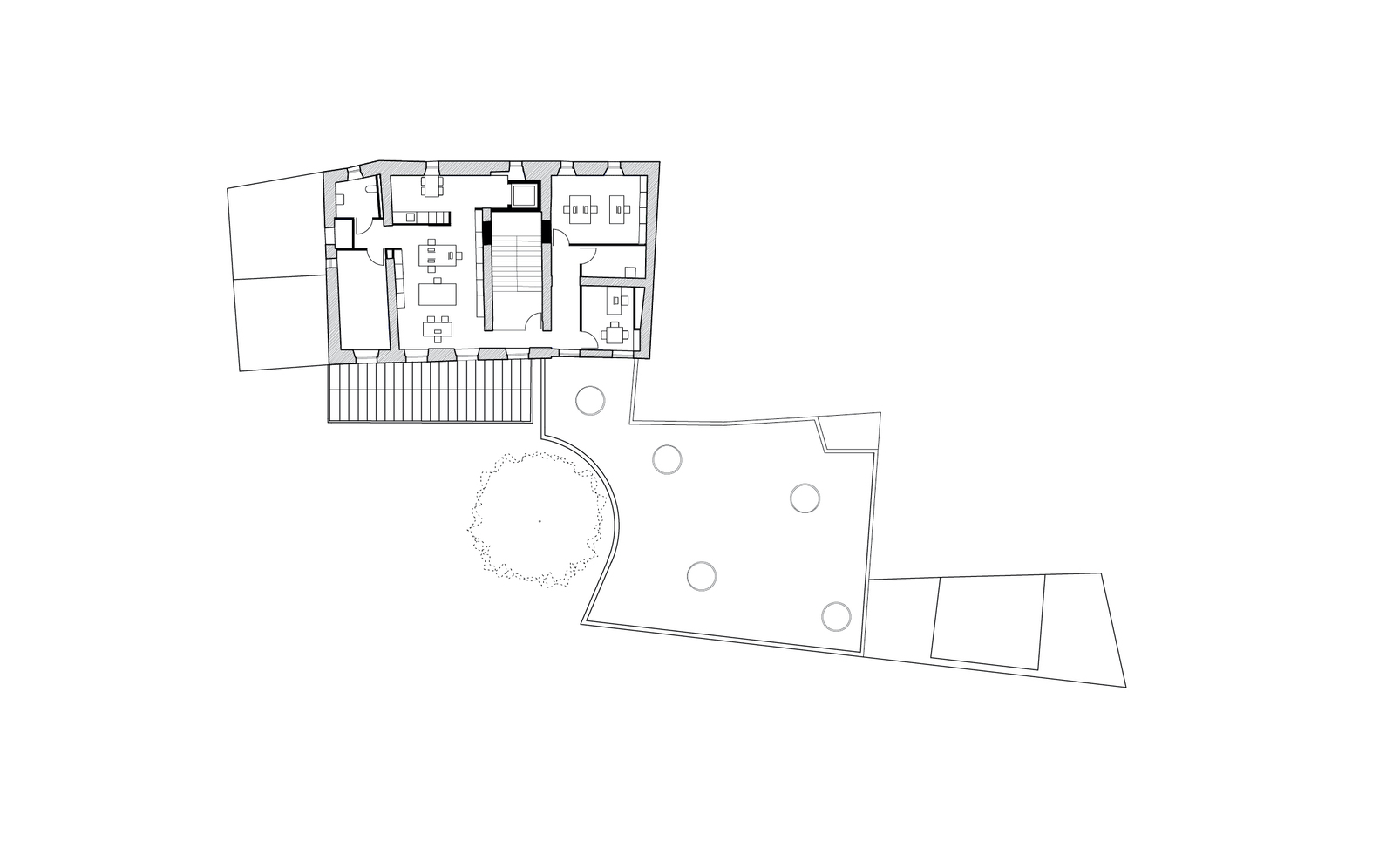
城镇佩利桑娜是一座古老的设防城市,位于法国普罗旺斯的中心。新的媒体图书馆位于历史悠久的莫罗大厦,建于1642年,位于城市花园的中心。因此,该建筑是丰富的景观和遗产背景的一部分。该项目在两个时代和两个维度之间进行对话:现有建筑改造体的垂直和扩建体的水平。这种对话体现在外观的同质性和使用的当地材料,如赭石和Rognes石的不同色调之间的对比。在现有的部分,经典的空间结构相互连接的房间被保留,建立一个简单的内部组织的媒体库。扩建部分展示了两层楼大而灵活的咨询空间。一楼向公园敞开,让读者沉浸在风景中,而二楼提供了一个完全不同的氛围。它推动游客进入雄伟的梧桐树的树冠,保护引导延伸的弯曲形状。连接市政厅广场和公园的相邻建筑也进行了翻新,改造成一个通道,连接全球开放城市系统中的不同极点。通道在这里被沐浴在自然光下的完全空旷的空间具体化了。现有的地板、门和窗户被移除。屋顶的瓦片换成了玻璃砖。公园的正面保留了它的半圆形门廊。在市政厅一侧,正面整个宽度都是开放的,构成了公园植被的框架。
法国Pélissanne媒体图书馆外部实景图
法国Pélissanne媒体图书馆局部实景图
法国Pélissanne媒体图书馆内部实景图
法国Pélissanne媒体图书馆内部实景图
法国Pélissanne媒体图书馆内部实景图
法国Pélissanne媒体图书馆内部实景图
法国Pélissanne媒体图书馆内部实景图
法国Pélissanne媒体图书馆内部实景图
法国Pélissanne媒体图书馆内部实景图
法国Pélissanne媒体图书馆平面图
法国Pélissanne媒体图书馆平面图
法国Pélissanne媒体图书馆平面图
法国Pélissanne媒体图书馆剖面图
法国Pélissanne媒体图书馆立面图
客服
消息
收藏
下载
最近

















