查看完整案例

收藏

下载
项目名称:南京溧水仓口村祠堂修缮性改造
位置:南京
设计公司:米思建筑
祠堂,是宗族供奉与祭祀祖先,并进行相关活动的场所。自古以来,同一个或几个姓氏的宗族以村落作为繁衍的载体,兴建祠堂,崇宗祀祖,教化族人。随着社会的变迁和经济的发展,传统族居的格局发生了改变,代表“宗族主义”的祠堂功能逐渐弱化,祠堂由传统人伦关系的象征转化为社区与宗族之间糅合。不知是否是现存传统祠堂数量较少的原因,当代建筑师很少有机会接触或关注祠堂建筑。而其强烈的历史、社会和文化印记,以及中国传统天人合一的理念,在某种程度上体现了不可名状的宇宙法则和宗教精神,使之具有一定的神秘性。因此,当我们受邀对南京溧水仓口村两个祠堂进行修缮性改造时,便决定尝试参与。项目位于南京溧水仓口村。村子古称“梅梁渡”,是明代应天府的漕运码头和粮仓,曾是市井繁华所在。村落肌理保存较好,传统建筑具有南京周边典型的“吴头楚尾,南北辉映”的融合式地方民居特征。村中现有芮氏、邱氏、樊氏三座清代古祠堂,均保存较为完整。其中,芮氏宗祠最具规模,院落三进,面阔三间。祠中存有《平原芮氏三宗大同谱》,历史价值突出。
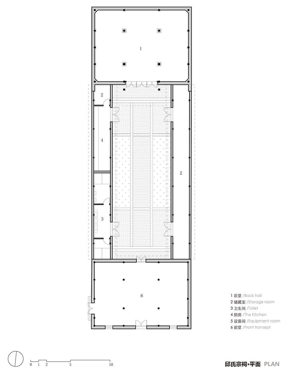
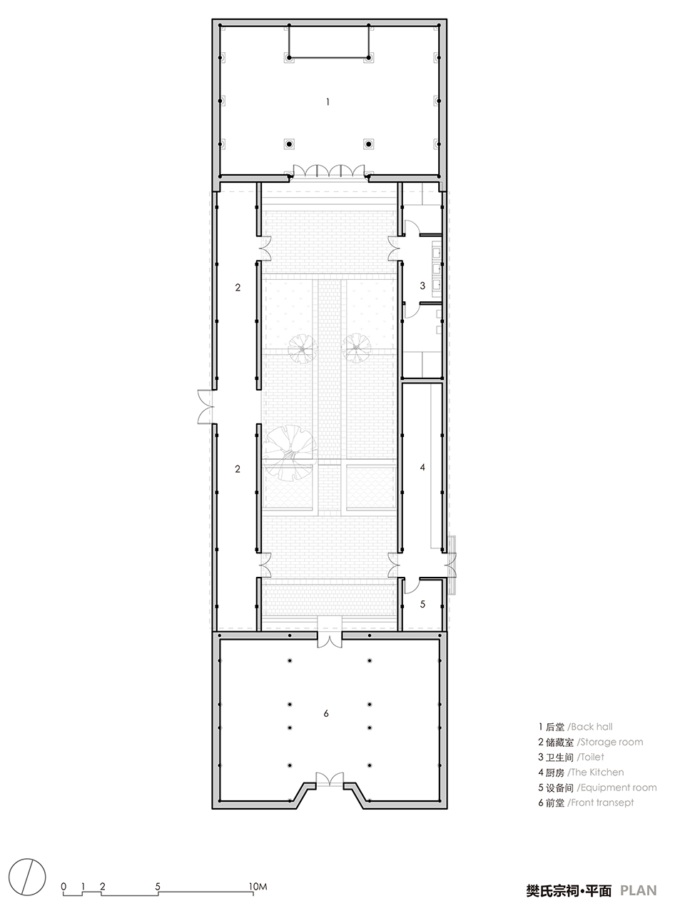
目前芮氏宗祠已由族人集资修缮完成,并于2006年列入南京市文物保护单位。修缮后的芮氏宗祠粉墙黛瓦,马头墙具有典型的徽派建筑样式,红漆木作则带有些许北方官式建筑特征,与村中其它建筑均显不同。三进院落分别陈列村落历史介绍、家族历史介绍以及祖先牌位和规训,偶尔对外开放供游客参观游览。我们负责修缮的是邱氏和樊氏两座祠堂。邱氏宗祠位于村中主路一侧,樊氏宗祠则坐落于巷道中的水塘畔,它们均为区级文物保护单位。二者形式相同,为一进院式天井院落,主体建筑前后堂为硬山砖木建筑。相较于芮氏宗祠,它们略显残破,一方面是因为解放后曾被征为粮仓和仓库所用,局部的加建和改造破坏了原有建筑形制,另一方面是由于宗族自身没有条件进行大规模的修缮和改造,常年风雨虫噬使建筑愈发破败。本着对文物建筑的保护与修缮,并尽可能让建筑更具活力的原则,我们开始对邱氏和樊氏祠堂进行修缮和改造设计。设计始于对传统祠堂当代性的思考,即古老的宗祠除保留传统形制及功能之外,如何有机融入村民的当代生活,并对当代乡村社会发挥更为积极的作用。
重建的院墙成为设计的切入点,我们在恢复祠堂原有风貌的过程中希望对其进行拓展,使之成为可容纳多样功能的辅助空间,如此既能减弱置入的功能对文保主体建筑的影响,也能最大化重塑内院空间的对称性,回应祠堂所需的肃穆感与仪式感。以此为基础,设计深入探寻在保持祠堂主体相对独立的情况下如何置入当代意识——公共性与开放性,为村民的日常生活提供多样性空间,最大限度发挥积极作用。绝大多数普通乡村,每年对祠堂的使用次数非常有限,其消极的姿态,以及村中活动与交流空间的缺失,使得村子活力逐步丧失。因此,我们认为在当代乡村中,祠堂建筑公共性的体现尤为重要。它应该融入村民的生活,释放应有的活力,使祠堂成为重塑村落场所感的一部分,并不断迭代发展下去。这个思考开始逐步引导设计的推进。以邱氏祠堂为例,因其紧靠村内主路,邻近主路的院墙及辅助空间被调整为内凹的长廊式空间,村民日常可以在此休憩、攀谈,娱乐。当村中有需求时,长廊的内侧活动板墙亦可完全打开,使祠堂成为一个院落向主路完全开放的公共空间,以供各种活动。
我们的设计思路最初得到了业主的肯定,但随着项目的深入,各方不同的诉求和影响也在逐渐凸显。宗族的村民无法接受祠堂开放供所有村民使用,而从文保修缮的角度,将祠堂作为公共空间向村落开敞的想法对原有建筑形制的调整也无法被接受。种种现实问题使得建筑师的设计初衷有些乌托邦。经过各方多次沟通,我们的想法还是没能完全实现,仅保留辅助功能的置入,对此我们感到十分遗憾!即便如此,我们依然秉持着对祠堂当代性的探索。回到具体建造的层面,文保的修缮需要遵循真实性和可逆性的原则,它要求尽可能的保存和使用原有构件,再现原有的工艺保留建筑所承载的历史信息。同时修缮是可逆的,可以更换材料以恢复原有形制。但其实无论是新建建筑还是修缮改造,我们认为建筑最本源的设计应当是如何真实建造。所谓真实建造无关风格,而是应当尊重文脉,尊重需求,尊重材料,以当地切实的建造工艺呈现适合的场所精神、建筑空间以及细部工艺。我们所理解的真实建造还有另外一重含义,即真诚地、积极地面对所有问题,如工期的压力、有限的成本等多方面,并倾听群众的意见,综合性地真实建造。
在墙体砌筑方面我们希望在成本可控范围内尽可能保留和恢复原有老青砖的建造肌理。因此,如何有效利用拆除后的老青砖砌筑空斗墙非常关键。现场可用的老青砖数量非常有限,采购与老青砖同尺寸的非标准砖在成本上难以控制,而工程队提出使用混凝土砌块重筑墙体并使用老青砖切片做为贴面的做法我们无法接受。最后,我们用普通红砖和拆下来的老青砖一起密实咬砌以保证外墙面的老青砖肌理以及墙体强度的需求,内侧红砖墙面则粉刷草筋灰泥饰面。完成后的空斗墙体反映了原有建筑地方化、带有民间特征的砌筑特点,同时也呈现出保留墙裙、修补墙体和新砌墙体互相交织的痕迹。真实建造也体现在我们对空间和使用的思考。在院落两侧的辅助空间中,我们利用传统抬梁式屋架形成不对称的长短坡屋顶,让檐口与辅助空间两侧的墙体微微脱开,形成“缝隙”。面向内院的“缝隙”适当放宽,面向主路的“缝隙”更窄,保证祠堂私密性的同时改善辅助空间的采光和通风,让建筑在低维护的情况下依然保有较好的使用状态。此外,新的院墙降低了高度,一定程度上减弱了原有建筑对村民相对封闭和隔绝的态势。祠堂主体木结构采取局部落架的修缮方式。
我们尽可能使用原有木料,并保持原有的木作工艺与做法。木料处理后最大限度保持本色,保证原有建筑的古朴风貌。最后,我们严格控制了建筑的灯光设置,使之成为调节建筑氛围的构件。它使得祠堂更为静谧肃穆,也让一丝“当代性”通过“缝隙”悄悄透露出来。祠堂建成后新旧编织的清水墙、原初质感的木构架带着时间的痕迹,质朴地融入了村落的环境。真实建造反映了历史和当代的对话以及文脉的延续。白天,院墙上略高于视线的那道缝隙昭示了它的与众不同。晚上,缝隙中透出一条光,成为昏暗巷道的路灯,照亮了村民回家的路。这条光便是建筑师追求的仅存的祠堂建筑的“公共性”,希望能为村民的日常生活提供一丝微弱的人文关怀。它同时又传达出某种“陌生感”,我们希望能以此解构人们对祠堂或是村落的固有想象并建立“新印象”,反映建筑师期望改变村落——通过设计让村民生活更美好的初心。项目建成半年后,我们了解到修缮改造后的祠堂依然仅在清明和春节期间使用,哪怕仅有的那一条光,也未能发挥预想的作用,这也是我们所能预料的结局。人们也许能感受到两个祠堂建筑微妙的“陌生感”,使它们不同于另一座芮氏祠堂,也不同于其它自然生长的老房子或新建筑。
这种“陌生感”或许来自建筑师细微操作为村落带来的变化,很轻微、也很模糊。回顾整个项目,已不仅是对两个文保建筑的修缮性改造,也不仅是建筑事件,它更是一个典型的社会性事件——在当代一个极其普通的村落,相关各方对祠堂建筑各自期许的妥协式集合。与之作为对比的是另一个祠堂的修缮性改造。或者说,只有当三个祠堂的修缮改造事件集合在一起才能构成发生在仓口村的一个完整的关于传统祠堂当代变迁的事件。作为建筑师而言,对于村落、群众、相关单位以及另一个祠堂等诸多因素,已经通过建筑设计以及建筑本身给出了自己的态度。建筑不流于形式,也不归于形制,它更像是整个事件中出现的各种问题的解决方式与方法。无论是文保建筑的修缮与活化,还是当代性和社会性的碰撞,或是在不同立场、不同认知的相关各方对建筑的述求,最终形成了一个未完结的结局。当建筑师的任务完成后,它将继续自然生长,继续自己的使命。回到建筑师自身的态度,存在着职业与专业性的坚持与责任,建筑师需要通过建筑发声,传达观点。我们希望表达建筑的“当代性”,有如本项目中一条光的关怀——通过设计让日常生活充满美好,通过真实建造的方式获取建筑的自由,不被风格和形制所束缚。这是我们的初心所在。
南京溧水仓口村祠堂修缮性改造外部实景图
南京溧水仓口村祠堂修缮性改造外部实景图
南京溧水仓口村祠堂修缮性改造外部实景图
南京溧水仓口村祠堂修缮性改造外部实景图
南京溧水仓口村祠堂修缮性改造外部实景图
南京溧水仓口村祠堂修缮性改造外部实景图
南京溧水仓口村祠堂修缮性改造外部实景图
南京溧水仓口村祠堂修缮性改造外部实景图
南京溧水仓口村祠堂修缮性改造外部实景图
南京溧水仓口村祠堂修缮性改造外部实景图
南京溧水仓口村祠堂修缮性改造外部实景图
南京溧水仓口村祠堂修缮性改造外部实景图
南京溧水仓口村祠堂修缮性改造外部实景图
南京溧水仓口村祠堂修缮性改造外部实景图
南京溧水仓口村祠堂修缮性改造内部实景图
南京溧水仓口村祠堂修缮性改造内部实景图
南京溧水仓口村祠堂修缮性改造内部实景图
南京溧水仓口村祠堂修缮性改造内部实景图
南京溧水仓口村祠堂修缮性改造平面图
南京溧水仓口村祠堂修缮性改造平面图
客服
消息
收藏
下载
最近























