查看完整案例

收藏

下载

翻译
Architects:Boozhgan Studio
Area:550m²
Year:2023
Photographs:Mohammad Hassan Ettefagh
Lead Architect:Hamed Badriahmadi
Electrical System Design:Vision Group
Design Team:Sheida Ghotbi
Presentation:Parisa Shiri, Mohammad Amin Baraz, Farnoosh Ghanbari, Hamidreza Mazaheri
Project Manager:Tahmineh Firouzbakhsh
Design Development Team:Fatemeh Shaerzade, Atefe Pashae, Hanieh Amiri, Adele Razi Ardakani
Construction Team:Seyed Ali, Seyed Karimi
Structure Design:Siavash Sedighi & Partners
Mechanical System Design:Mr. Amiri
Client:Seyed Ali Seyed Karimi
Program / Use / Building Function:Villa/House
City:Lavasan
Country:Iran
Text description provided by the architects. Villa 'Gol' is located in Lavasan, a beautiful city near Tehran, capital of Iran. The design of the villa resembles a solid mass of stone that has been carefully carved out, forming a passageway that links the two open sides of the structure and defines the entrance on the northern side.
The villa presents itself with two distinctive orientations: one side faces the exterior and the alley, offering a sense of privacy and intimacy, contrasting with the courtyard view where the stone volume has been aesthetically designed and sculpted. The project is mysterious and inviting from the outside, challenging the viewers to explore the space within while on the inside, this mystery would turn into clarity and openness.
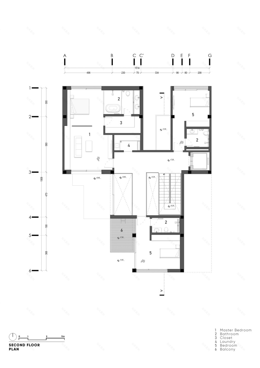
Each level of the villa serves a specific purpose: the ground floor accommodates the entrance lobby, parking, guest suite, access to the courtyard, and an outdoor swimming pool. The first floor hosts communal areas like the back-of-house (BOH) and front-of-house (FOH) kitchen, as well as the living room. The second floor is dedicated to private spaces, featuring bedrooms connected by a hallway with breathtaking views. The rooftop offers a pergola and barbecue area with panoramic views in all directions.
Our primary focus throughout the project has been on delivering high-quality spaces with a unified and conceptual approach, ensuring that Villa 'Gol' provides a distinctive and engaging experience for its residents.
Project gallery
客服
消息
收藏
下载
最近































