查看完整案例

收藏

下载
项目名称:斯洛文尼亚Cukrarna画廊
位置:斯洛文尼亚
设计公司:SCAPELAB
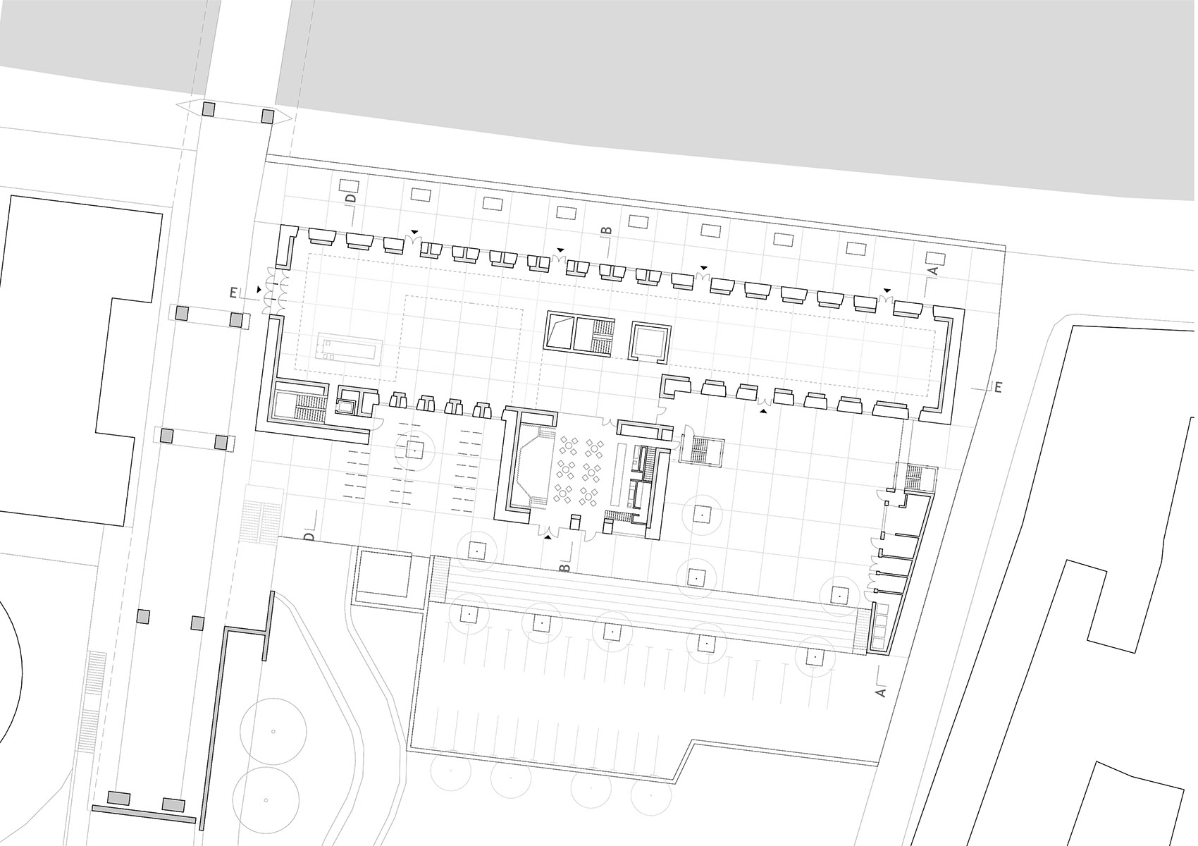
斯洛文尼亚的Cukrarna画廊由一家制糖精炼厂改造而来。建筑始建于1828年,距今已有超200年的历史,糖厂曾被大火烧毁,后期曾用作烟草厂、纺织厂、兵营与流浪者庇护所。现代时期,这里也为斯洛文尼亚的独立运动做出了贡献,为当时的许多诗人和作家提供了短暂居所。作为19世纪工业建筑的典范,建筑已被列入保护名单,成为斯洛文尼亚国家文化的一处标志性场所。2009年,Ljubljana市政府组织了一场国际竞赛,旨在选择合适的事务所对这处国家纪念碑进行更新改造。Scapelab在本次竞赛中脱颖而出,其方案在保留历史外观的基础上对所有内部设施进行了重新设计,将建筑转变为一处多功能的当代艺术空间。建筑首层作为城市公共空间的延伸,免费面向市民开放。当进入建筑,工厂空间的巨大尺度将立刻吸引游客的注意。画廊体量采用“白色立方体”概念,使抬高的首层与钢制屋顶结构分离开来。新的结构以光滑的穿孔金属表皮围合,并与历史外壳间形成了明显的分离,与具有历史意义的混凝土外墙形成了鲜明对比。预制表皮既是标识新体量的美学元素,也是一种功能性设施。
材料具有声学效果,可以降低混响,有利于在主礼堂中举办音乐会。此外,表皮还容纳了灯光设施以及暖通空调和配电系统。建筑中新开发的地下室可作为行为艺术、储藏、技术设施与展览工作坊的专用空间。精心设计的画廊吧为爵士演奏和夜晚的音乐现场提供了舞台。画廊空间被设计成不同尺度的“白色立方体”,在关键位置,透明的画廊可向参观者展现出内部空间的全貌,此外,画廊中还设置了教育、讲座与儿童工作坊的专用空间。新的Cukrarna画廊彰显出Ljubljana文化设施的重大革新,这处位于市中心边缘的魅力场所,为原本废弃的地区重新注入了活力。方案的概念和美学效果延续了丰富的工业遗产,以简单的材料和重复的手法展示出工业进程。工业材料的选择和视觉语言经过精心设计构成了轻盈的体量关系,从丰富的历史文化中汲取灵感,不仅致敬了曾居住于此的诗人和作家,也成为孕育未来艺术家的基地。
斯洛文尼亚Cukrarna画廊外部实景图
斯洛文尼亚Cukrarna画廊外部实景图
斯洛文尼亚Cukrarna画廊外部实景图
斯洛文尼亚Cukrarna画廊外部实景图
斯洛文尼亚Cukrarna画廊外部实景图
斯洛文尼亚Cukrarna画廊外部实景图
斯洛文尼亚Cukrarna画廊内部实景图
斯洛文尼亚Cukrarna画廊内部实景图
斯洛文尼亚Cukrarna画廊内部实景图
斯洛文尼亚Cukrarna画廊内部实景图
斯洛文尼亚Cukrarna画廊内部实景图
斯洛文尼亚Cukrarna画廊内部实景图
斯洛文尼亚Cukrarna画廊内部实景图
斯洛文尼亚Cukrarna画廊内部实景图
斯洛文尼亚Cukrarna画廊内部实景图
斯洛文尼亚Cukrarna画廊内部实景图
斯洛文尼亚Cukrarna画廊内部实景图
斯洛文尼亚Cukrarna画廊内部实景图
斯洛文尼亚Cukrarna画廊内部实景图
斯洛文尼亚Cukrarna画廊内部实景图
斯洛文尼亚Cukrarna画廊内部实景图
斯洛文尼亚Cukrarna画廊内部实景图
斯洛文尼亚Cukrarna画廊内部实景图
斯洛文尼亚Cukrarna画廊内部实景图
斯洛文尼亚Cukrarna画廊内部实景图
斯洛文尼亚Cukrarna画廊内部实景图
斯洛文尼亚Cukrarna画廊平面图
斯洛文尼亚Cukrarna画廊平面图
斯洛文尼亚Cukrarna画廊平面图
斯洛文尼亚Cukrarna画廊剖面图
斯洛文尼亚Cukrarna画廊剖面图
斯洛文尼亚Cukrarna画廊剖面图
斯洛文尼亚Cukrarna画廊剖面图
客服
消息
收藏
下载
最近


































