查看完整案例

收藏

下载
项目名称:雄安华润大学“湾仔活动中心”
位置:雄安
设计公司:张大为建筑工作室 + 左通右达建筑工作室
2018年,我们接到了雄安华润大学“湾仔活动中心”的设计任务。这对年轻事务所来说,是幸运、更是挑战。第一次去项目基地华润大学是在2018年的盛夏,校园依水而建、绿树成荫,是20世纪末的设计风格。两三层高的红砖坡顶建筑群落在高耸的绿树衬托之下,尺度感被缩小,和自然环境相辅相成、融为一体。我们被校园现有的平和状态所感染,于是开始这一次对环境“得体恰当”的介入过程,引入了一些新鲜元素。这也是一次与环境和自然进行融合的过程。“湾仔活动中心”坐落于校园的最西端,向东面朝大学标志性的中央大草坪。整个建筑下沉了1.5m,避免了大体量的建筑物对校园的压迫感,同时也暗示着需要某种方式加强校园与建筑之间的互动和关联。作为多功能展览馆,外观上保持了与老楼一致的方形体量和总高度,它的内部增加了一个夹层,在扩大了建筑面积的同时创造了一个10m净高的空间来满足多功能使用需求。方案最大化利用了地处的位置和视野:在屋顶提供了观景平台,把校园景色尽收眼底;为了串联“湾仔活动中心”底层内部空间和校园室外的活动,在建筑东侧向外延展出了一个景观坡道,既解决了1.5m的场地高差问题,也便于大规模展览活动的使用。
如何在材料有限的物质属性之下,提供更多感知体验的可能?我们希望在不同时间、气候和光影条件下,在漫步过程中,建筑既能呈现出老楼的坚实牢固的物质属性,又可以提供晶莹剔透的属性感受。为了谦虚也不失个性地呈现团结紧张、严肃但活泼的校园氛围,新建筑采用了双层幕墙系统(内侧玻璃幕墙,外侧竖向铝质格栅)将一种半透明的渗透性引入建筑外立面,模糊室内和室外的界限,给原有的场地环境带来一些积极的响应。光的虚幻本质和迷人之处,依赖各种媒介而被感知。颜色、温度、材质、触感等等都能成为翻译光意的语言和工具。我们尝试组织不同类型的光,结合建筑、场地和景观,对应不同功能的使用需求。白天的阳光洒入室内,在阴影中显得熠熠生辉;夜晚从室内渗出的光线,哪怕一丝缝隙也能感受到光的温度。面对红砖老楼,新建筑表皮金属材质的半透明属性,通过白天夜晚自然光和人造光源投射方向的转化,在不同的时间段里呈现出来,让建筑显得轻盈舒展。
雄安华润大学“湾仔活动中心”外部实景图
雄安华润大学“湾仔活动中心”外部实景图
雄安华润大学“湾仔活动中心”外部实景图
雄安华润大学“湾仔活动中心”外部实景图
雄安华润大学“湾仔活动中心”外部实景图
雄安华润大学“湾仔活动中心”外部实景图
雄安华润大学“湾仔活动中心”外部实景图
雄安华润大学“湾仔活动中心”内部实景图
雄安华润大学“湾仔活动中心”内部实景图
雄安华润大学“湾仔活动中心”内部实景图
雄安华润大学“湾仔活动中心”内部实景图
雄安华润大学“湾仔活动中心”内部实景图
雄安华润大学“湾仔活动中心”内部实景图
雄安华润大学“湾仔活动中心”内部实景图
雄安华润大学“湾仔活动中心”内部实景图
雄安华润大学“湾仔活动中心”内部实景图
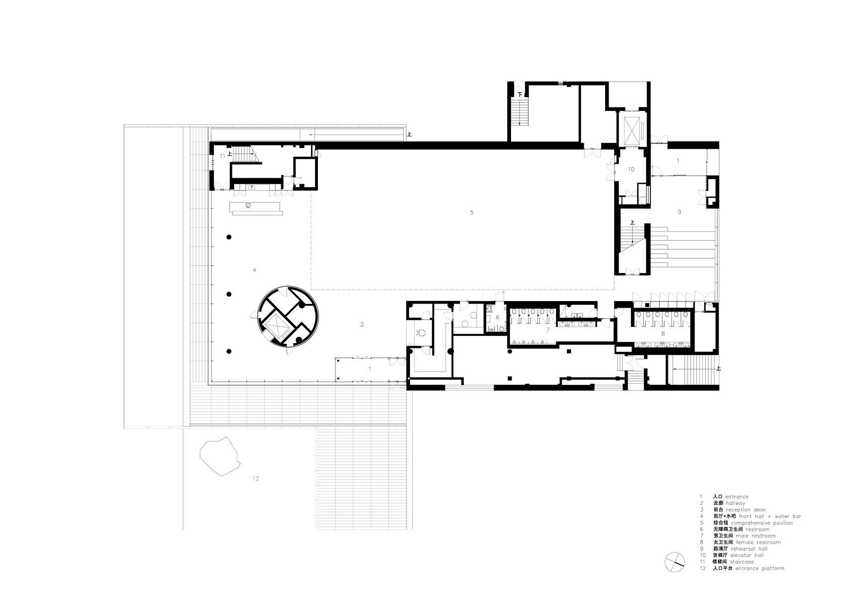
雄安华润大学“湾仔活动中心”平面图
雄安华润大学“湾仔活动中心”平面图
雄安华润大学“湾仔活动中心”平面图
雄安华润大学“湾仔活动中心”平面图
雄安华润大学“湾仔活动中心”平面图
雄安华润大学“湾仔活动中心”剖面图
雄安华润大学“湾仔活动中心”剖面图
雄安华润大学“湾仔活动中心”剖面图
雄安华润大学“湾仔活动中心”剖面图
雄安华润大学“湾仔活动中心”立面图
雄安华润大学“湾仔活动中心”立面图
雄安华润大学“湾仔活动中心”立面图
客服
消息
收藏
下载
最近































