查看完整案例

收藏

下载
项目名称:澳大利亚Belridge中学表演艺术中心
位置: 澳大利亚
设计公司:Iredale Pedersen Hook
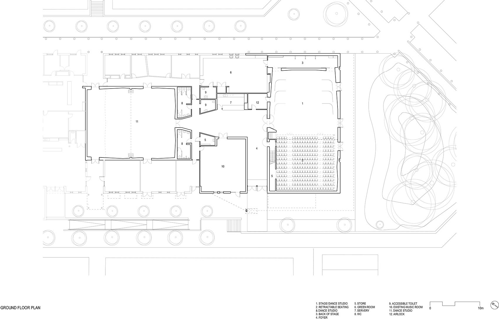
Belridge中学表演艺术中心的设计核心旨在为富有戏剧性的室内空间引入动态的户外体验,将观众从被动的观察者转变为具有积极性与自主性的参与者。原建筑由西澳大利亚建筑管理局于1994年设计。如今,iredale pedersen hook事务所受当地财政部门委托,为该艺术中心增加了一处新的表演艺术剧院,并对老剧院进行翻新与扩建,此外,还升级了艺术中心现有的设施,同时梳理出便捷清晰的交通流线。扩建部分从学校管理中心延伸出来,环绕在一片高耸的木麻黄橡木林中。建筑师并没有消极地看待场地大小的限制,而是乐观地将内部空间与外部环境联系在一起,将橡木林转化成为艺术中心的自然室外礼堂。在自然的环绕下,建筑成为了舞台与幕布,倾斜的草坡则变身为供人放松休闲的座位区。入口位于现有中心的十字轴线上,这种设置延伸了人们到达场地时的仪式感,同时以戏剧性的手法彰显出入口的存在感。
由Rick Gurney设计的综合生态艺术装置悬挑在入口上方,下方则形成了入口门廊。入口另一侧则是一个巨大的蓝色装置,这个装置不仅起到支撑作用,同时以优雅的姿态将从屋顶溢出的雨水疏导向地面。Belridge中学在舞蹈教育方面极具优势,流动与同步的舞蹈理念在这里被推向极致,然后反映在建筑的悬挑元素中,优雅的锥形、折叠、漂浮与悬垂结构,不仅为建筑提供了顶棚与遮阳,同时为人们带来了视觉上的惊喜。门廊屋顶陡峭的倾斜部分参考了现有通风口的位置,以一连串光晕般的圆形天窗将光线引入室内,在对侧的墙面上投下天使般神圣的光影。一面以青铜为材料的镜面墙则完成了精心安排的门厅序列,让人们在他人的背景下凝视自己片刻,这同时也迎合了当代人喜爱自拍的潮流。光可谓是戏剧表演中的一部分,本项目则以极富艺术性的背景光向整个社区宣告了自己的存在。连续的条形灯带将独特的视觉体验从外部延伸到室内,并投射在青铜镜面墙上,描绘出一幅精致的戏剧场景。
三扇圆形的天窗投射出独特的神秘光环,将太阳的运动轨迹具象在人们眼前。六盏青铜圆形壁灯聚集着人们的目光,让人们沉浸在怀旧的氛围中。随后,人们的目光又会延展到大厅中三盏由阿尔瓦·阿尔托设计的A110吊灯上,人们亲切称呼它们为“手榴弹”。全新表演空间的入口与现有空间的十字轴线对齐,在表演之前,这部分空间会沿着轴线上升和下降。与前厅形成对比的是,主要表演空间的氛围是克制和集中的,在这里,人们所有的注意力都指向舞台。服务设施的干扰被最小化,并隐藏在天花板结构中。由木板条组成内墙饰面不仅具有良好的声学效果,同时也为表演者提供了一个微妙的、具有质感的温暖背景,在心理上将表演者和观众联系在一起。由观众席看向舞台,墙壁慢慢聚拢,营造出集中的视觉效果,没有丝毫分心,无声地回应着表演对声学的极致追求。
主要表演空间创造出多样化的氛围,这归功于建筑整体对空间的互动与支撑,同时避免了空间中任何具有干扰或竞争意味的元素。在这里,灯光不再是空间的焦点,而是被故意隐藏了起来。室内采用了绿色节能的LED灯具,旨在为如今看来已经过时的单体灯泡进行现代化的诠释。设计的重点关注于建筑空间营造丰富表演体验的能力,并希望以此将表演者与观众联系在一起。该建筑展示出的是一种自信且谦逊的姿态,丰富的材料质感与纹理,提高了中学表演空间的质量,满足了大众对于社区设施的预期。在夜晚,外部光源将建筑宏伟的悬臂、精细的砖材与金属外立面照亮,揭示了建筑的戏剧性本质。项目从设计到落成仅用时19个月的时间,实现了卓越的经济效益。
澳大利亚Belridge中学表演艺术中心外部实景图
澳大利亚Belridge中学表演艺术中心外部实景图
澳大利亚Belridge中学表演艺术中心外部实景图
澳大利亚Belridge中学表演艺术中心外部实景图
澳大利亚Belridge中学表演艺术中心外部实景图
澳大利亚Belridge中学表演艺术中心外部实景图
澳大利亚Belridge中学表演艺术中心外部实景图
澳大利亚Belridge中学表演艺术中心外部实景图
澳大利亚Belridge中学表演艺术中心外部实景图
澳大利亚Belridge中学表演艺术中心外部实景图
澳大利亚Belridge中学表演艺术中心外部实景图
澳大利亚Belridge中学表演艺术中心外部实景图
澳大利亚Belridge中学表演艺术中心外部实景图
澳大利亚Belridge中学表演艺术中心外部实景图
澳大利亚Belridge中学表演艺术中心外部实景图
澳大利亚Belridge中学表演艺术中心外部实景图
澳大利亚Belridge中学表演艺术中心外部实景图
澳大利亚Belridge中学表演艺术中心内部实景图
澳大利亚Belridge中学表演艺术中心内部实景图
澳大利亚Belridge中学表演艺术中心内部实景图
澳大利亚Belridge中学表演艺术中心内部实景图
澳大利亚Belridge中学表演艺术中心内部实景图
澳大利亚Belridge中学表演艺术中心内部实景图
澳大利亚Belridge中学表演艺术中心内部实景图
澳大利亚Belridge中学表演艺术中心平面图
澳大利亚Belridge中学表演艺术中心平面图
澳大利亚Belridge中学表演艺术中心平面图
澳大利亚Belridge中学表演艺术中心剖面图
澳大利亚Belridge中学表演艺术中心剖面图
澳大利亚Belridge中学表演艺术中心剖面图
澳大利亚Belridge中学表演艺术中心立面图
澳大利亚Belridge中学表演艺术中心剖面图
客服
消息
收藏
下载
最近



































