查看完整案例

收藏

下载
从最初对外观的迷恋和对内部的彻底失望,恢复空间并突出布景中公寓背后的整个故事的概念出现了。 为此,最初的指导方针是消除所有多余的元素,恢复建筑的真实性,并为公寓寻求更引人注目的身份——这也是业主的最大愿望。
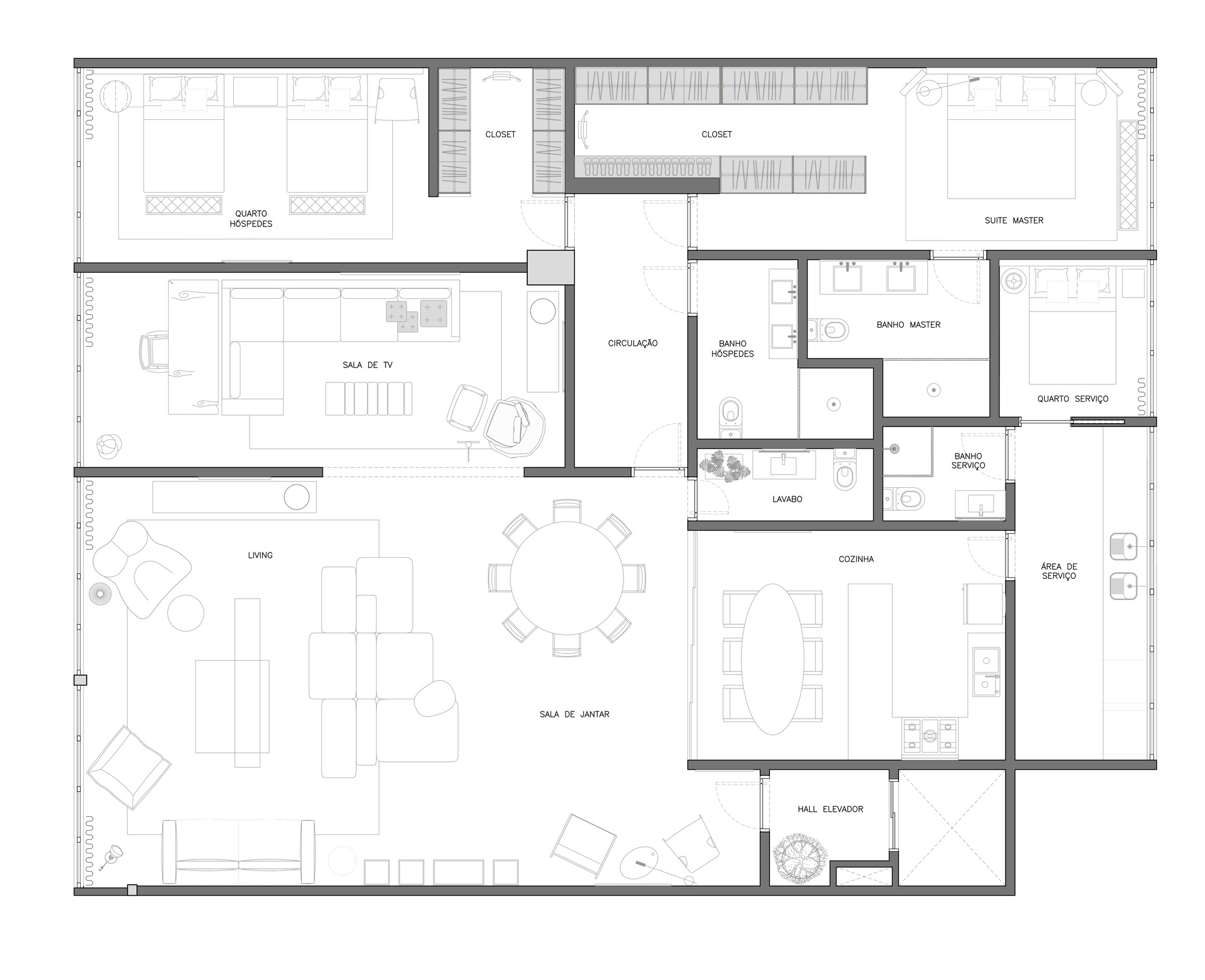
就方案而言,由于是一对年轻夫妇,没有孩子,喜欢在家接待很多人,所以决定将其中一间卧室改造成电视房,部分融入客厅,创造一个空间在约 110 平方米的社交区域内更加亲密。 在此过程中,在检查公寓内现有的大型混凝土柱时,决定将约10厘米厚的灰泥完全剥离,并且还覆盖了公寓内较新的电气管道,以显示干预是什么以及它是什么是原始的,无需担心混凝土/砖的最终损坏或完全恢复。 这一决定导致需要对工作进行密切的日常监控,以尽量减少对结构的损坏。 在这个过程中的惊喜中,我们可以强调的是在原来设有阳台的房间的一部分中发现了原来的立面瓷砖。 我们与业主一起选择保留地板和踢脚线,保留公寓最近翻新的记忆。
在主房间的布局上,我们选择用多进深的沙发来分隔空间,既划分了环境,又允许不同的坐姿。 在家具方面,我们选择了当代设计作品,例如 Marcus Ferreira 设计的有线桌子和 Ponte 长凳以及 B&B Italia 扶手椅,以及这对夫妇婚礼上的皮革沙发。 客厅地毯由旧地毯拼凑而成,负责为空间带来色彩和温暖,是为体现空间中所寻求的大部分概念而选择的首批物品之一。 至于艺术作品,它们是从古老的作品中挑选出来的,例如放在餐桌旁边的绘画《审判》,以及当代作品,例如安东尼奥·博克尔(Antônio Bokel)用从街上收集的海报制成的物体,放在餐桌旁边的地板上。入口处。
建筑师:Navarro Arquitetura
面积:210.2501349m²
年份:2020
摄影:Leonardo Finotti
供应商:Botteh Tapetes, Carbono Design, Casual Móveis, D-Haus, Decameron, Dpot, Dpot Objetos, Leroy Merlín, Lustres Yamamura, Tintas MC
责任建筑师:José Navarro
城市:Consolação
国家:Brasil
设计师:Navarro Arquitetura
语言:葡萄牙语
客服
消息
收藏
下载
最近


















