查看完整案例

收藏

下载
项目名称:北京海淀区北部文化中心
位置:北京
设计公司:清华大学建筑设计研究院
设计团队:朱晓东,周昊,郭垚,高国成,成洁娜等
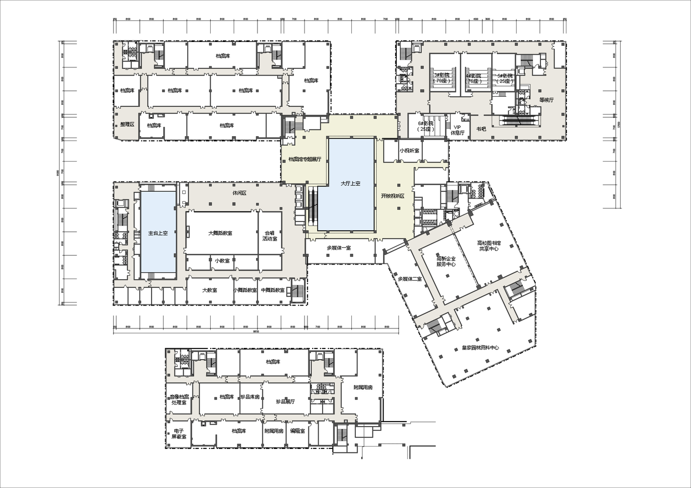
本项目位于北京市海淀区温泉镇,南邻温泉路,西临白家疃路,东临杨家庄西路,北与体育馆相临。建筑包括海淀区文化馆、海淀区图书馆、海淀区档案馆及温泉文化中心四部分,并由共享活动大厅连接,其四面均设有出入口,另外各馆亦设有独立的出入口。海淀图书馆、海淀文化馆、海淀档案馆及温泉文化中心四部分功能不同,而用地面积却及其有限,同时甲方期望向市民展示海淀区北部地区的标志性形象。集中的四位一体式设计成为最佳途径。四部分功能通过共享大厅互相联系,在四个方向均对城市开放,在四馆关闭时仍能为市民使用。建筑造型以“竹简”的文化理念引领,表达为建筑上部的粗细条带的花岗岩石材韵律,它与建筑下部的连续玻璃体斜向动态地穿插在一起,既传达图书馆及文化建筑的内在涵义,又具有活跃的现代感受。同时,竖向的粗细条带以钢琴的黑白“琴键”的概念隐喻了文化馆的要素。竖向的有角度的突出构件同时起到了遮阳的作用。
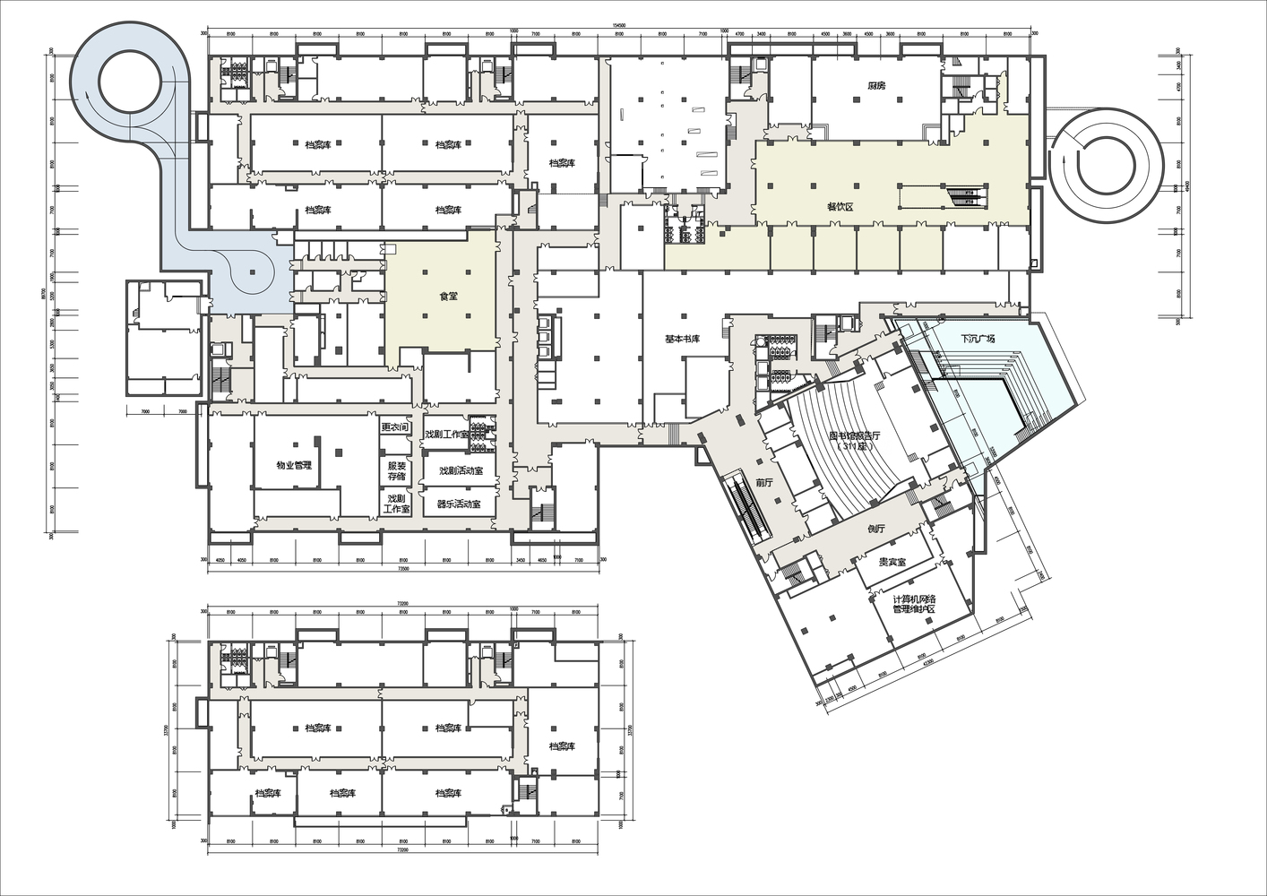
市民可选择在进入共享大厅(道•循环)后,经过自动扶梯上楼或在同层进入四部分各自的前区空间,也可以从场地外部通过各个场馆独立的出入口直接进入场馆。每个场馆都有其独立的交通流线。海淀图书馆(秋•果实)及海淀文化馆(春•花朵)置于场地的东南向及西南向,有效服务于主人流朝向,海淀档案馆(冬•收藏)置于场地西北角安静的区域,温泉文化中心(夏•活力)这一比较喧闹的体块置于场地东北角,与周边的居民区及主要交通密切关联。大尺度功能空间,包括海淀图书馆的大报告厅和公共阅览室、海淀文化馆的小剧院和大舞蹈教室、温泉文化中心的电影厅等,针对上述空间采取了分散及恰当的设计方式。由于场地建筑密度的限制,大报告厅不得不置于地下一层,为此下沉广场成为新的功能元素,既是前区空间又是室外休闲空间,同时为适应大空间在建筑下部的情况,结构设计以错列桁架的上部形式出现,形成大阅览室内有趣的空间分隔元素。
排演厅兼小剧院以及它的前区空间位于首层,是文化馆未来最具动感的区域,而大舞蹈教室则置于上部空间的引领位置。本项目获得了绿色三星设计的证书。屋顶花园、可调式外遮阳、室外透水铺装、过渡季节全新风运行、建筑设计总体能耗低于规定值的80%、雨水调蓄系统等16项技术均为设计的亮点。地上部分中间为中庭(共享空间),西北角为档案馆,东北角为温泉中心,西南角为文化馆,东南角为图书馆。图书馆由各类型开放式阅览室组成,为一级大型公共图书馆,馆藏书数量为200万册;文化馆首层设有455座的剧场,为小型丙等戏曲类剧场,上部为文化馆教室、活动室等;档案馆由档案库房、档案附属用房、对外查询阅览室、展厅等组成,为市级一类档案馆,馆藏档案数量为200万卷;温泉中心首层为门厅展厅,二至四层部为六个影厅,最大的影厅座位数为174个,总座位数为498座,属于小型乙类电影院。地下一层为设备用房、档案库房、文化馆用房、图书馆报告厅及温泉中心用房,地下二层为车库及人防空间。
北京海淀区北部文化中心外部实景图
北京海淀区北部文化中心外部实景图
北京海淀区北部文化中心外部实景图
北京海淀区北部文化中心外部实景图
北京海淀区北部文化中心外部实景图
北京海淀区北部文化中心外部实景图
北京海淀区北部文化中心外部实景图
北京海淀区北部文化中心外部实景图
北京海淀区北部文化中心外部实景图
北京海淀区北部文化中心内部实景图
北京海淀区北部文化中心内部实景图
北京海淀区北部文化中心内部实景图
北京海淀区北部文化中心内部实景图
北京海淀区北部文化中心内部实景图
北京海淀区北部文化中心内部实景图
北京海淀区北部文化中心内部实景图
北京海淀区北部文化中心平面图
北京海淀区北部文化中心平面图
北京海淀区北部文化中心平面图
北京海淀区北部文化中心平面图
北京海淀区北部文化中心剖面图
北京海淀区北部文化中心剖面图
客服
消息
收藏
下载
最近

























