查看完整案例

收藏

下载
项目名称:美国Benton县历史协会Corvallis博物馆
位置:美国
设计公司:Allied Works Architecture
摄影师:Jeremy Bittermann, JSA
2009 年,AlliedWorks 被选中为俄勒冈州Corvallis地区的 Benton 县历史学会(Benton County Historical Society)设计一个新博物馆。 博物馆展示了越来越多的收藏品,包括俄勒冈州立大学(Oregon State University)委托给他们的文物、自然历史标本和档案。 BCHS(Benton CountyHistorical Society) 希望通过在 Willamette 山谷中心历史悠久的中心地带建设新的画廊和解说空间,在 Corvallis 热闹的步行区来提高其知名度。整个设计通过一系列策展策略创造了新的视角,其周到的规划为社区新增了新的教育、社会和文化机会。新建的1765.16平方米的博物馆位于拥有 125 年历史的综合商店和前俄勒冈州首府的对面。 通过体量、材料和细节的设计将现代化的建筑和其附近的1920年邮局融合的相得益彰。 四个平行的结构与周边店面的尺度相呼应,而使用瓷砖作为外墙则重新诠释了市中心使用砖石的历史悠久的建筑传统。该建筑拥抱街道,邀请公众进入大堂和定向画廊、博物馆商店、多功能教室和地面庭院。 上层画廊的窗户朝向人行道上,可以瞥见里面的艺术和活动,并可以将周围地区的景色采景在窗户中。在室内,游客被引导上一个大楼梯,内衬木镶板,进入一系列相互连接的画廊。 在上方,画廊占据了一个没有柱子的跨度空间,在对角线上被天窗一分为二,天窗提供了根据藏品的不同性质可以调节的自然采光。 新大楼还将作为 BCHS 策展、规划和社区外展人员的基地。Benton历史协会博物馆(Benton County Historical Society Museum)将于 2021 年开放,支持该地区艺术和历史的发展,并为全国各地的地方和地区机构提供新的建筑模式。
美国Benton县历史协会Corvallis博物馆外部实景图
美国Benton县历史协会Corvallis博物馆外部实景图
美国Benton县历史协会Corvallis博物馆内部实景图
美国Benton县历史协会Corvallis博物馆内部实景图
美国Benton县历史协会Corvallis博物馆内部实景图
美国Benton县历史协会Corvallis博物馆内部实景图
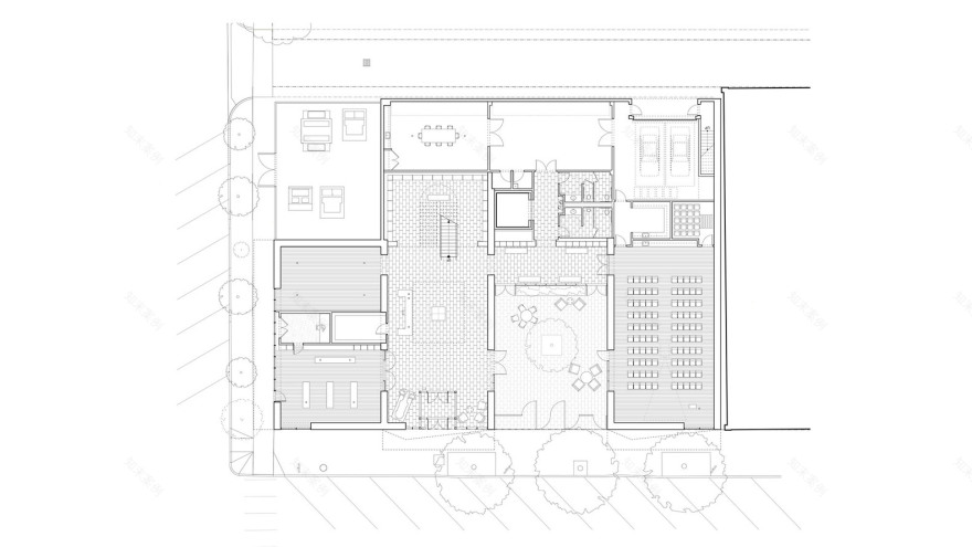
美国Benton县历史协会Corvallis博物馆平面图
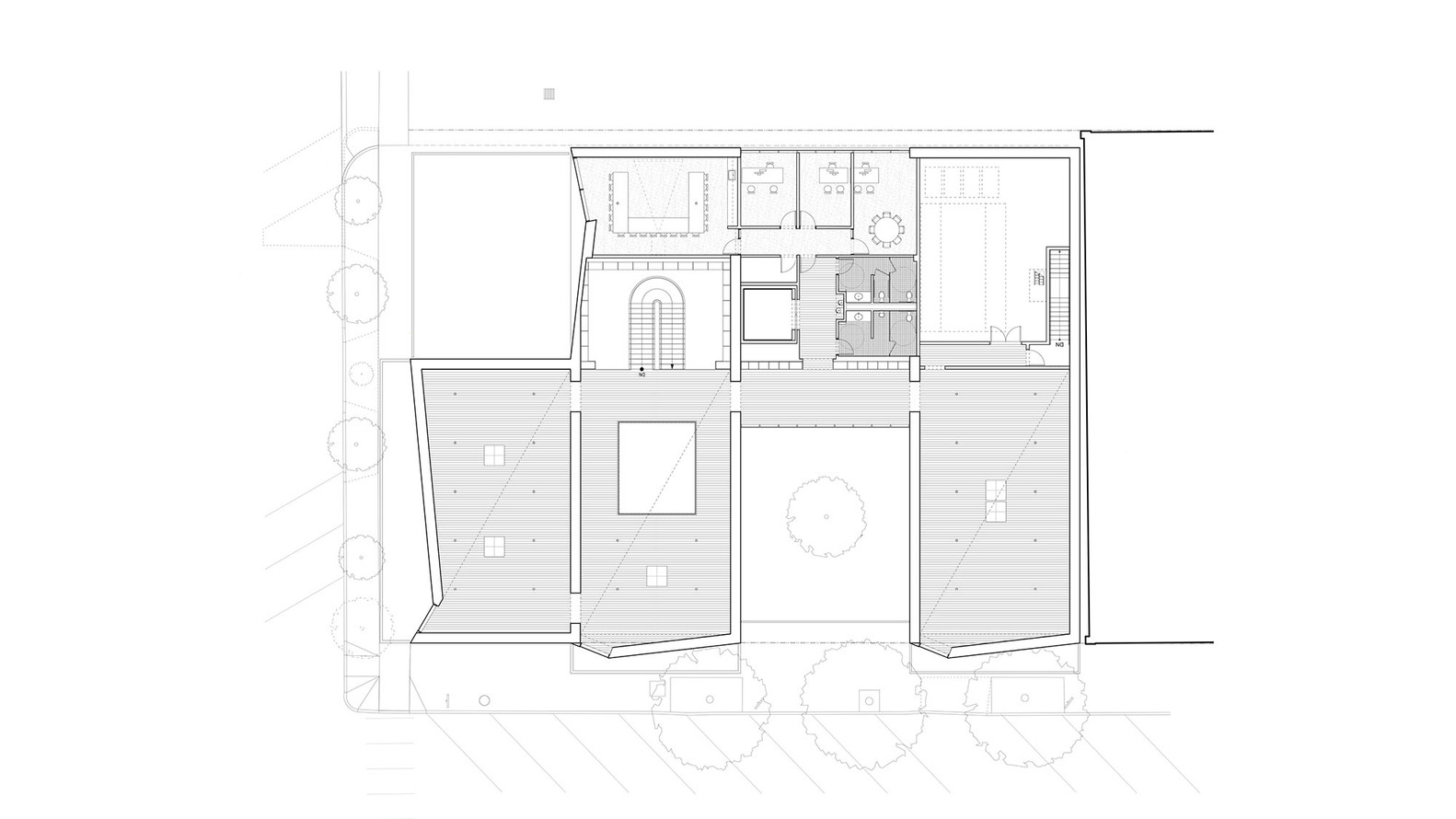
美国Benton县历史协会Corvallis博物馆平面图
客服
消息
收藏
下载
最近











