查看完整案例

收藏

下载
项目名称:美国诺威尔公共图书馆
位置:美国
设计公司:Oudens Ello Architecture
摄影师:Chuck Choi 建筑摄影
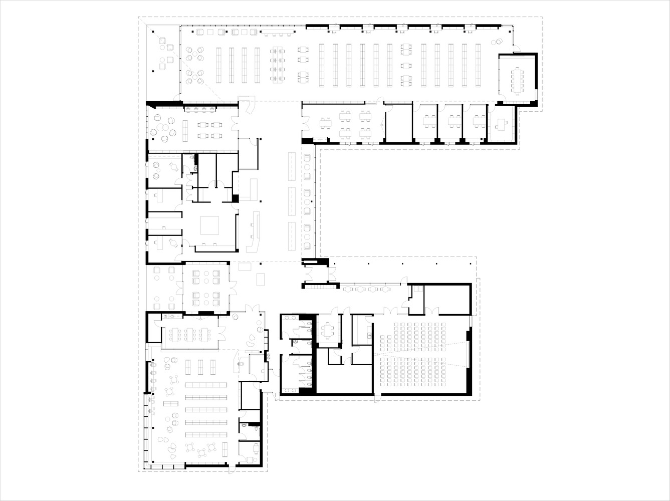
最近完工的诺威尔公共图书馆坐落在一个树木繁茂的大型湿地财产上,远离该镇的商业和市政中心。与城市和郊区对应的建筑不同,这座建筑缺乏附近建筑的背景,但场地的自然美景为适当的建筑反应提供了充足的灵感。随着公共图书馆从信息中心转变为文化中心,这座建筑旨在成为社区生活、参与、享受和丰富的无障碍、平易近人和热情的中心。这座单层建筑的三个翼——成人、儿童和社区——围绕一个中央庭院花园组织起来,旨在最大限度地利用自然光和景观,并通过普遍开放的方式促进顾客寻路和员工监督。从私密的庭院和中等高度的大堂到宽敞的阅览室,向外指向场地,规模的变化创造了对周围广阔树林的有意延迟的享受。设计时考虑到了灵活性,大楼的一侧可供下班后社区使用,而图书馆的其余部分则是安全的。应急发电机提供部分电力,使图书馆在停电期间可以作为社区的冷却/取暖中心。裸露的木质结构由胶合梁和柱子以及木质屋顶甲板组成,将图书馆与其树木繁茂的环境连接起来,并为室内带来温暖的感觉。外部材料调色板结合了区域性和快速可再生材料,主要是佛蒙特州板岩瓦和雪松覆层。
板岩因其耐用性和防潮性而被选为面向木材的立面上的主要墙面覆层,其绿色与自然环境相得益彰。图书馆宽敞的窗户提供充足的日光,与户外的周到连接包括两个阅读门廊,让顾客可以体验和享受户外环境。鉴于湿地位置敏感,雨水管理和湿地保护/增强是主要的设计考虑因素。与当地保护委员会合作做出了巨大努力,以平衡新的干扰和恢复的湿地。大型停车场生物滞留洼地(均种植本地耐旱植物)和建筑物的中央花园从向内倾斜的屋顶收集雨水,用于过滤径流并减缓其最终释放到周围湿地的速度。其他可持续功能包括用于自动调光照明的日光传感器,将建筑物的内部照明负载减少 22%。高效、全电动、热回收、可变制冷剂流量 (VRF) HVAC 系统与紧密的建筑热围护结构相结合,实现了比基线减少 35% 的能源使用量,以及低流量管道装置将室内用水量减少了 28 %。图书馆期待获得 LEED 银级认证。
美国诺威尔公共图书馆外部实景图
美国诺威尔公共图书馆外部实景图
美国诺威尔公共图书馆外部实景图
美国诺威尔公共图书馆外部实景图
美国诺威尔公共图书馆外部实景图
美国诺威尔公共图书馆外部实景图
美国诺威尔公共图书馆外部实景图
美国诺威尔公共图书馆内部实景图
美国诺威尔公共图书馆内部实景图
美国诺威尔公共图书馆内部实景图
美国诺威尔公共图书馆内部实景图
美国诺威尔公共图书馆内部实景图
美国诺威尔公共图书馆内部实景图
美国诺威尔公共图书馆内部实景图
美国诺威尔公共图书馆内部实景图
美国诺威尔公共图书馆内部实景图
美国诺威尔公共图书馆内部实景图
美国诺威尔公共图书馆内部实景图
美国诺威尔公共图书馆内部实景图
美国诺威尔公共图书馆内部实景图
美国诺威尔公共图书馆平面图
美国诺威尔公共图书馆剖面图
美国诺威尔公共图书馆立面图
客服
消息
收藏
下载
最近


























