知末
知末
创作上传
VIP
收藏下载
登录 | 注册有礼

印度的乡村别墅

2024/03/04 21:06:00
查看完整案例
微信扫一扫
收藏
下载
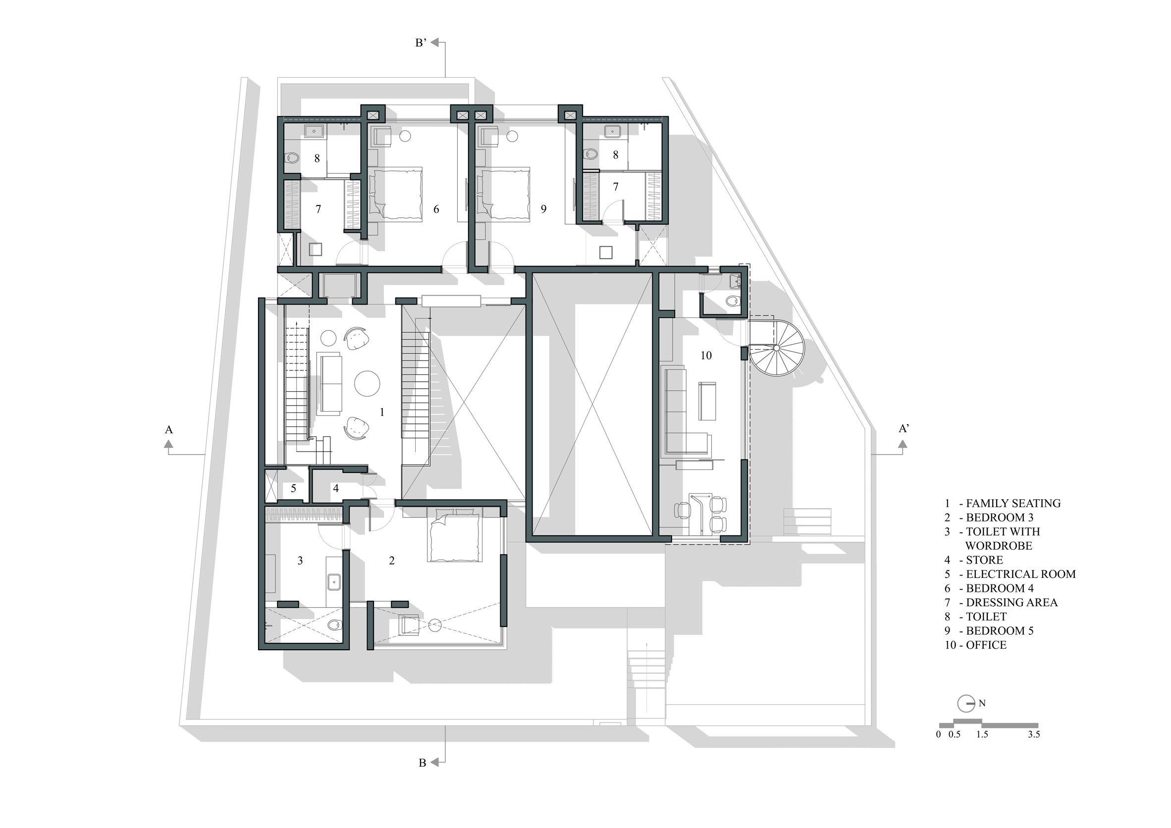
印度 Talangpor 村官员的房屋由一组不规则堆叠的盒子组成,由位于古吉拉特邦的 Neogenesis+Studi0261 事务所设计。中央庭院的设计理念,很好的照顾到光线、通风、景观及空间的互动!
印度的乡村别墅-1
印度的乡村别墅-2
印度的乡村别墅-3
印度的乡村别墅-4
印度的乡村别墅-5
印度的乡村别墅-6
印度的乡村别墅-7
印度的乡村别墅-8
印度的乡村别墅-9
印度的乡村别墅-10
印度的乡村别墅-11
印度的乡村别墅-12
印度的乡村别墅-13
印度的乡村别墅-14
印度的乡村别墅-15
印度的乡村别墅-16
印度的乡村别墅-17
印度的乡村别墅-18
印度的乡村别墅-19
印度的乡村别墅-20
印度的乡村别墅-21
印度的乡村别墅-22
印度的乡村别墅-23
印度的乡村别墅-24
南京喵熊网络科技有限公司 苏ICP备18050492号-4知末 © 2018—2020 . All photos and trademark graphics are copyrighted by their owners.增值电信业务经营许可证(ICP)苏B2-20201444苏公网安备 32011302321234号
客服
消息
收藏
下载
最近