查看完整案例

收藏

下载
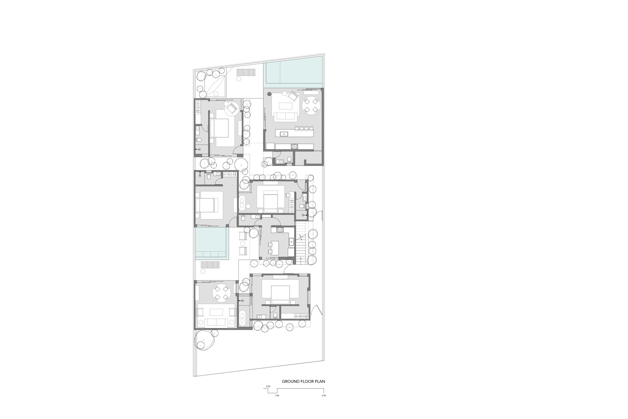
墨西哥建筑工作室已经完成了一个小型的住宅设计 在图勒姆 它的特点是内部庭院和外部走廊,旨在促进居民之间的接触。 住宅街的正面为空白,四单元的发展项目是围绕内部设计的庭院 . 每一个都有其独特的布局和个性,但它们都是为了理想地响应环境和提供高质量的空间。
建筑师们设计了一种设计,它可以向内打开,可以看到它自己的空间,打开它的形状,它的质地,颜色,光线,阴影和植被。
两个单元在底层,两个在楼上,每个单元都有自己的 游泳池 或者是小水景。外部走廊连接内部的开发,每个单位有自己的外部空间。
"重要的是要确保他们知道他们在图勒姆,他们住在丛林,炎热,周围的湿度,当然还有天空,"建筑师弗南达罗德里格斯说。该工作室补充道:"这些公寓是相互交织在一起的,在一些地方,比如过桥的通道、桥梁和相应的角度,可以看到其他公寓的存在。"
公寓提供两卧室和三卧室的公寓。一些卧室是作为独立的建筑物建造的,这意味着居民必须通过外部庭院才能进入他们的住所。每一个单元都有一个独特的布局,建筑师们说这有助于住户识别他们的居住空间。
客服
消息
收藏
下载
最近




















