查看完整案例

收藏

下载
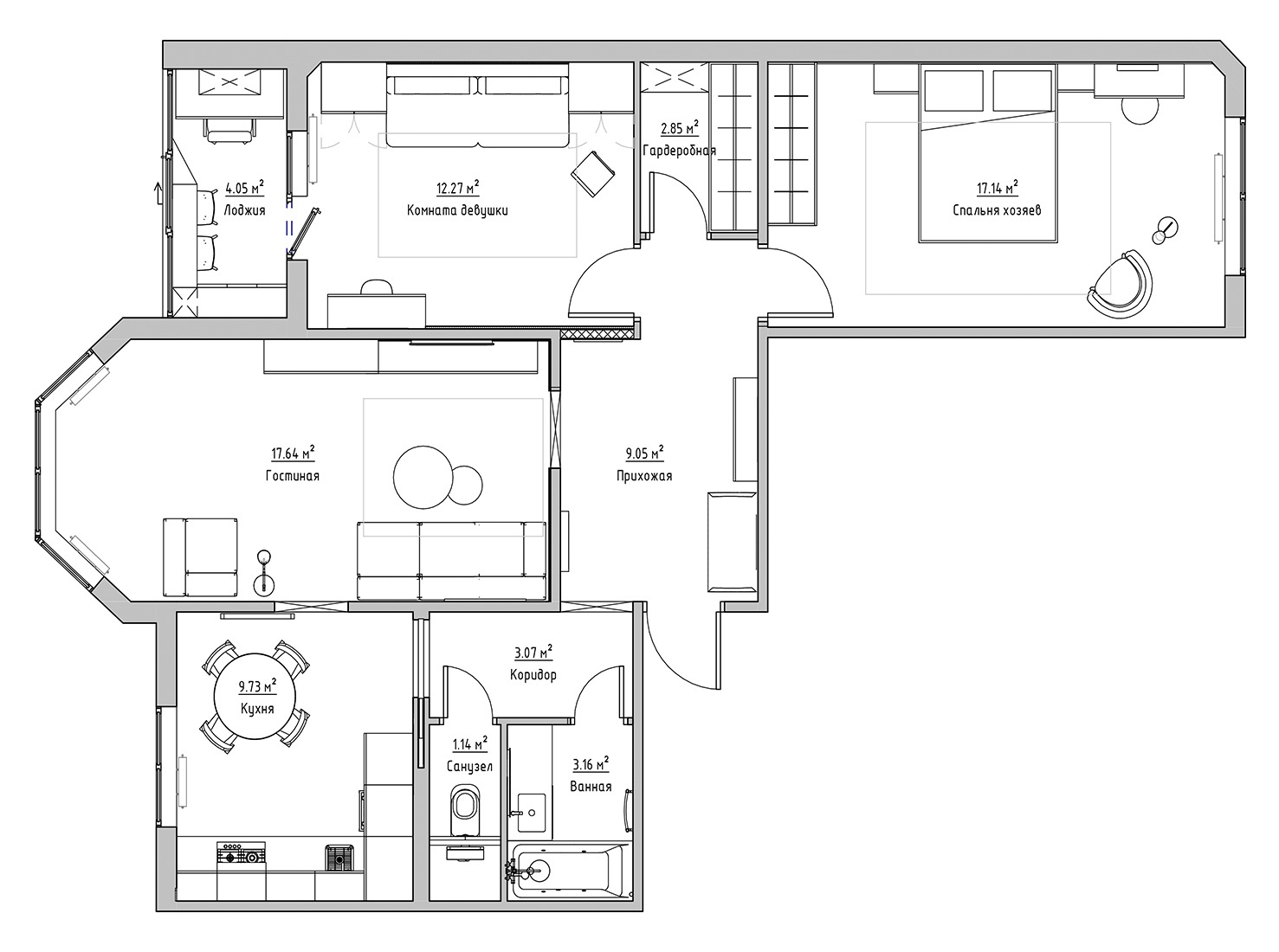
这套位于白俄罗斯明斯克的三居室公寓属于一个四口之家。业主长期居住在另一个国家,并将其出租。现在,决定返回后,他们请建筑师叶卡捷琳娜·加拉什丘克 ( Ekaterina Garashchuk)打造一个现代舒适的简约空间。 主题: Svetlana Koleda:明斯克的公寓 “一个显着的缺点是无法改变布局,”叶卡捷琳娜说。— 房子是板式结构,审批需要大量的时间和金钱,而且维修时间也很紧张。我们借助从客厅到走廊的开放式门口以及滑动玻璃隔断来增加公寓的照明。结果,在81平方公里的面积上。米内有一间设施齐全的厨房、一间带电视区和小办公桌的客厅、一间卧室、一间代替食品储藏室的更衣室,以及一间为年轻女孩准备的实用房间,配有沙发、宽敞的卧室壁橱和工作区。”
客户希望尽可能保留公寓内的空气感。所有家具都必须实用,并且如果可能的话,不会给空间带来压抑感。室内色调以米色、白色、木色和天蓝色为主。对比鲜明的黑色细节,例如滑动隔断的轮廓、轨道灯的线条和家具把手的细长形状,为其增添了图形和动感。
“在这个项目中,利用视觉技术,我能够调整房间的比例,”叶卡捷琳娜补充道。— 垂直线条和浮雕的主题在整个室内随处可见。这种技术在客厅中是必要的,可以在视觉上抬高天花板并改变空间的不规则几何形状,但随后又转移到其他房间:它出现在女儿房间的设计、卧室的软垫床头板和床的支撑中。厨房里的圆桌。”
家具是按订单生产的,“家具的进化”。地毯,Zara Home。轨道灯,Arlight。落地灯,埃格洛。餐桌和咖啡桌,Hi!moon。主席蒂沃利,支柱。厨房灯,Odeon Light。设备,伊莱克斯。瓷砖,棱镜。墙板,Eviro。石英乙烯基瓷砖,FineFloor。卧室里有一个坐垫凳,Porada。壁灯 Tan Tan,Aromas del Campo。床头灯,水晶奢华。格纹,米索尼家居。花瓶,EDG;家与你;扎拉之家。走廊里的烛台 Roots,Morso。
客服
消息
收藏
下载
最近
















