查看完整案例

收藏

下载
这是一个改造奈良市老房子的项目。场地上矗立着各种不同年代的建筑,共用一个走廊和一个庭院。其中最古老和最大的是一个带有大中庭的谷仓,用于存放长木头。谷仓多年来很少使用,已经饱经风霜。业主希望将其改造成一个舒适的居住空间。
▼客厅空间
▼从客厅空间望向入口
▼客厅空间与中庭通高空间概览
▼由餐厅望向入口
▼由入口望向客厅
▼从客厅进入走廊
▼由日式房间望向庭院
▼日式房间与走廊
▼精心设计的庭院空间
建筑师拆除了大量因连续渗漏而与竹框架脱离的泥墙,重建了地下室,加固了因白蚁和腐烂破坏而削弱的柱和梁,中庭改造成一个大客厅,通向日式房间、卧室、卫生间、猫房和衣柜。钢楼梯通向二楼的卧室,中庭的周边是经过结构加固的走廊。
▼由二层走廊望向客厅
▼由二层走廊望向中庭
▼明亮的走廊空间
▼走廊空间与中庭
▼利用墙体塑造了隐藏式的储物空间
▼有趣的卫生间设计
▼一层平面
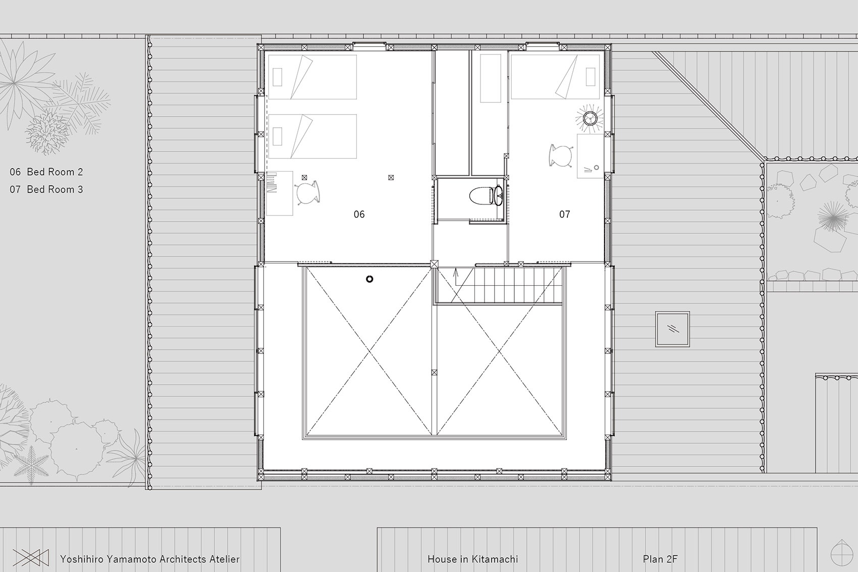
▼二层平面
▼剖面
项目名称:北町住宅 地点:日本奈良县奈良市
主要用途:住宅 建筑设计:Yoshihiro Yamamoto |yyaa
结构设计:Yoshihiro Yamamoto |yyaa
设施设计:Yoshihiro Yamamoto |yyaa
施工:T Works Co.
图片:Keishiro Yamada / YFT,
结构:传统木结构建筑方法 层数:2 最大高度:7.585
设计周期:2019/3/28 2020/3/26 施工周期:2020/3/26 2022/1/25
建筑面积:127.73 建筑面积:2F:56.57 1F:127.73 总计:184.30
材料屋顶:河原瓦(日本瓦) 外墙:烧杉板 天花板:日本杉板,聚氨酯漆 墙壁:硅藻土,瓷砖地板:橡木地板、瓷砖、榻榻米
客服
消息
收藏
下载
最近




























