查看完整案例

收藏

下载
一对已婚夫妇和两只猫共存的二手公寓改造。
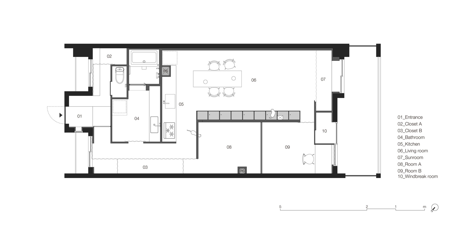
我们的目标是在65平方米(日本典型的房间大小)内建造一座既能让人也能让猫舒适居住的房子。我们试图从人和猫的角度(生活方式、习惯和安全)来设计房子。通过减少房间和迂回循环,我们实现了深度和变异。我们在架子、厨房和洗手盆下面设置了350毫米的间隙。对人类来说,它的作用是分隔,感受深度和空间。对猫来说,它就像一个大广场和躲避人类的地方。此外,它还改善了机器人吸尘器的通风和良好的交通线路。
我们还在货架上、间谍室、横梁下的T台上安装了台阶,以延长猫的垂直循环。至于人类,货架上的间谍孔可以用作投影仪和其他设备。
通过将猫的视角融入住宅的设计中,我们能够创造一种丰富的状态,不同的规模、习惯和活动领域重叠在一起,并在一个房间里融合在一起。
猫咪活动示意图
猫咪 人动线 以及家务动线示意图
轴测图
猫咪活动图
猫咪活动图
客服
消息
收藏
下载
最近






























