查看完整案例

收藏

下载
项目名称:印度Nandalal Sewa Samithi图书馆
位置:印度
设计公司:Anupama Kundoo Architects
摄影师:哈维尔·卡雷哈斯(Javier Callejas)
这座新图书馆大楼坐落在快速城市化的本地治里郡的居民区中,是通过社会组织Nandalal Sewa Samithi促进的社会基础设施而实现的。负担能力是一个重要考虑因素,图书馆是用当地制造的裸露砖头建造的建筑,在周围房屋和公寓建筑的粉刷和油漆砌体建筑的背景下,它将作为机构建筑脱颖而出。屋顶轮廓代表了“开放的书本”,铁氧体技术中构想的筛选元素也代表着知识的不断进步。上层的正交墙像树冠一样向外朝顶部倾斜,因为该建筑旨在通过鼓励阅读和学习来服务于社区并投资于其赋权。由于土地受住宅用地面积的限制,楼上的露台旨在通过提供必要的开放空间来进行沉思和非正式的户外活动来弥补这一不足。该设施的包容性通过为视障者提供盲文书籍得以体现。通过将盲文字体集成到建筑元素中以在砖砌体,屏风和天花板中创建多孔图案的方式,在建筑上体现了这一特殊功能。盲文文本形式的灯光图案在室内空间留下了印记,以便能看见的人在视觉上能看见看不见的人的语言,从而提高了对有能力的人的敏感性。
印度Nandalal Sewa Samithi图书馆外部实景图
印度Nandalal Sewa Samithi图书馆外部实景图
印度Nandalal Sewa Samithi图书馆外部实景图
印度Nandalal Sewa Samithi图书馆外部实景图
印度Nandalal Sewa Samithi图书馆外部实景图
印度Nandalal Sewa Samithi图书馆外部实景图
印度Nandalal Sewa Samithi图书馆外部实景图
印度Nandalal Sewa Samithi图书馆外部实景图
印度Nandalal Sewa Samithi图书馆立面图
印度Nandalal Sewa Samithi图书馆立面图
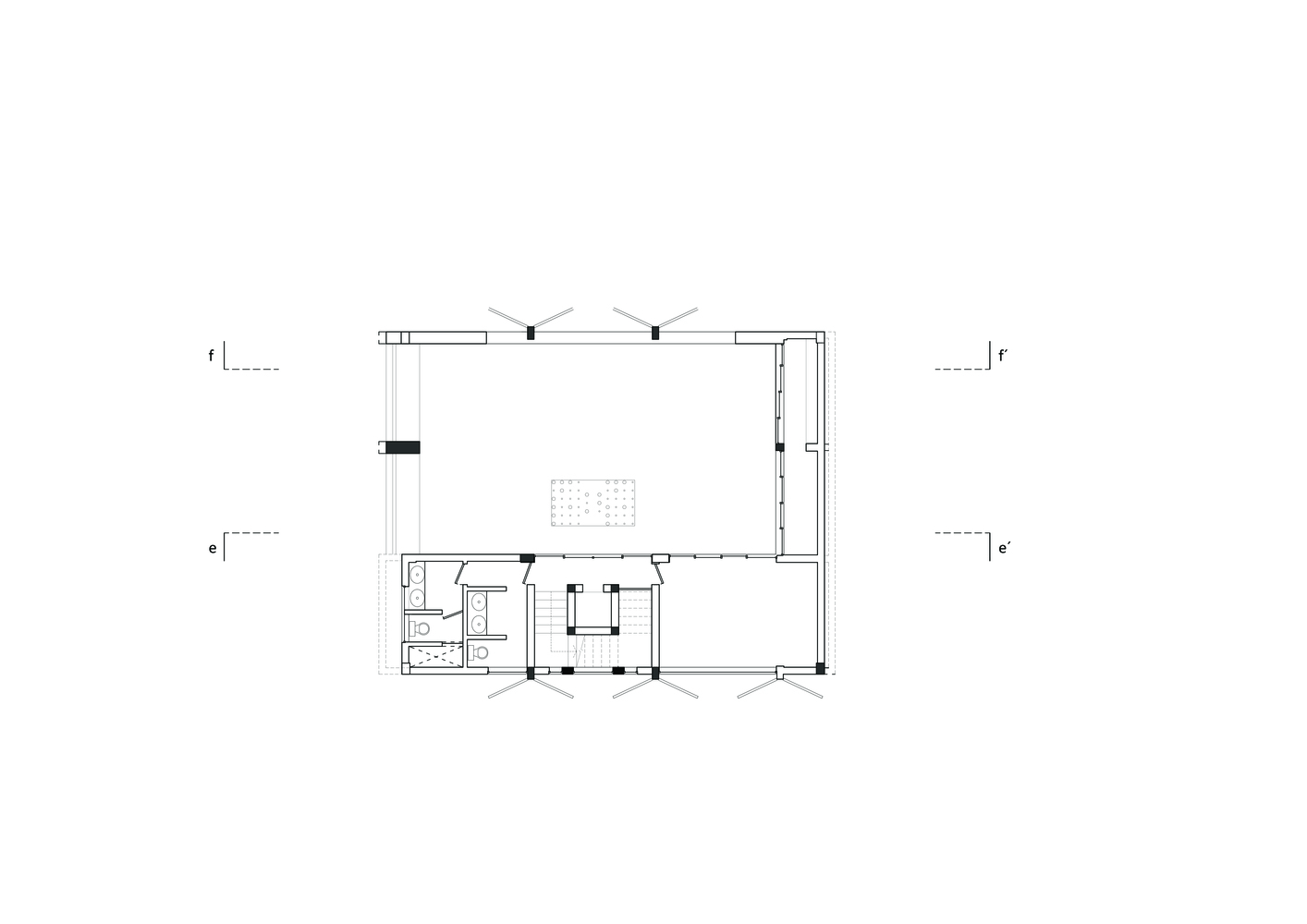
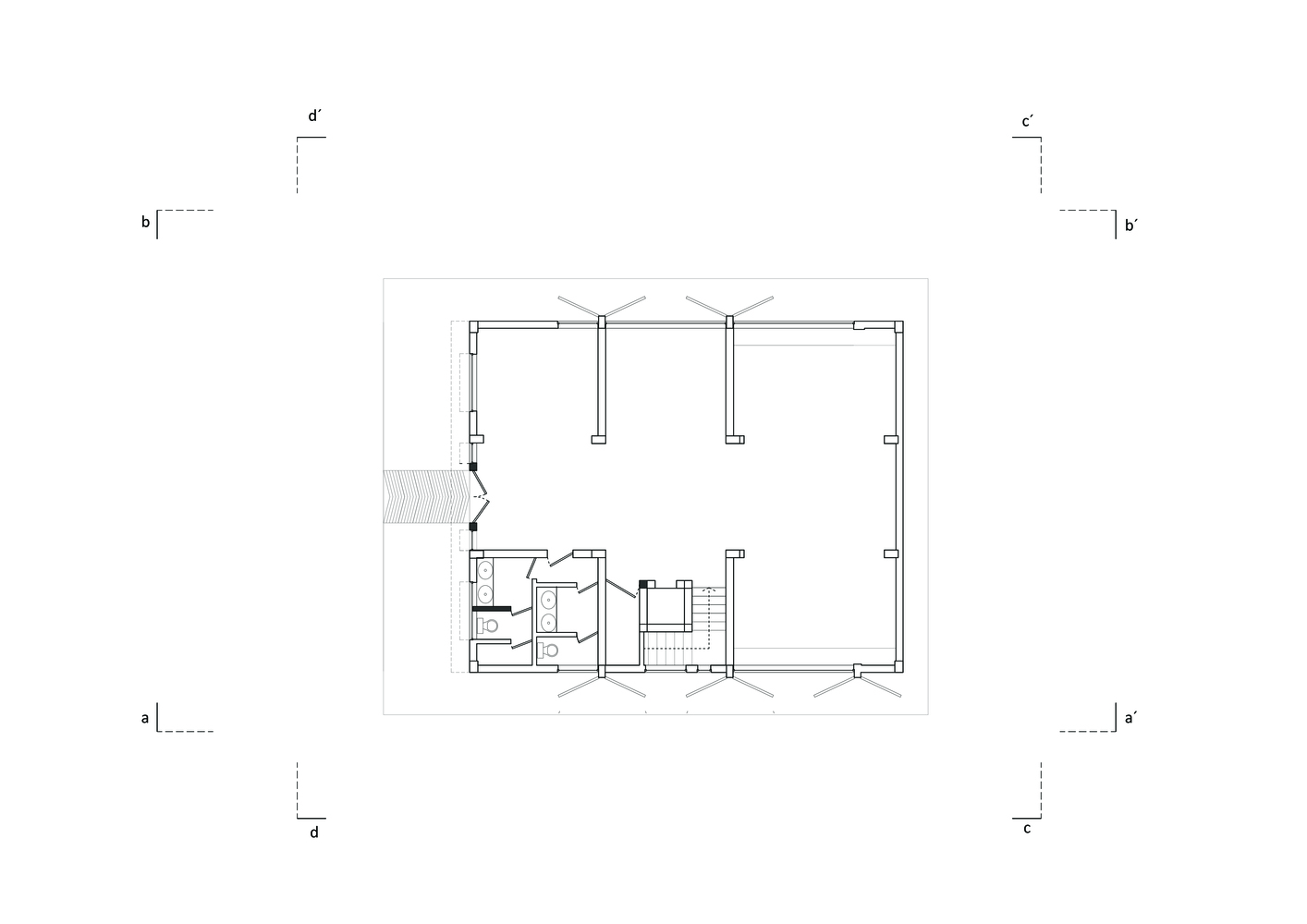
印度Nandalal Sewa Samithi图书馆平面图
印度Nandalal Sewa Samithi图书馆平面图
客服
消息
收藏
下载
最近















