查看完整案例

收藏

下载
Zarzales是一座位于Valle de Bravo的度假住宅,有着简单而纯粹的建筑风格,避免了对周围的自然环境造成干扰。
Zarzales is a vacation home located in Valle de Bravo, whose architecture, simple and pure, gives the prominence it deserves to the surrounding nature.
▼项目概览,Exterior view © Rafael Gamo
▼从森林望向建筑,View from the forest © Rafael Gamo
住宅面积为645平米,其设计将光线作为核心元素,旨在创造与自然环境相连的理想居住体验。房屋周围的松树使项目隐于场地,它们在设计过程中得到了密切的关注和保护。两个体量的位置也是根据树来确定,带有圆洞的露台也可以起到保护树木的作用。
With an area of 645 square meters, the residence uses light as a key design element. Its spaces are ideal for living connected with the natural environment. The pine trees around the perimeter allow the project to be lost in the surroundings and during the design process, it was important to ensure their conservation. The pines gave the location to the two volumes, and, in addition, they generated a terrace with perforations to preserve these trees that contribute so much to the project.
▼露台上的圆洞保护了场地中的既有树木,A terrace with perforations is created preserve these trees © Rafael Gamo
▼泳池露台,Pool terrace © Rafael Gamo
▼山墙一瞥,A glance to the gabled wall © Rafael Gamo
在两个体量中,一个是社交区,用于日常起居和招待访客,另一个是私人区域,用于休息和睡眠。社交区包含一个封闭的部分,内部设有电视间和服务间,另一个开放的部分包括餐厅、半开放式厨房和一个两侧透明的带顶露台。此外,房屋外部的露台还设有按摩浴缸和游泳池,为居住者提供了沉思和接触自然的机会,如观察森林的颜色、温度、声音和气味,收获多感官的体验。
We decided to design two volumes, the first is the social area that gathers the inhabitants or visitors, and the second, the private area, is intended for rest. The social area is divided into two: the closed part of TV and services; and an open area where the dining room, the semi-open kitchen, and a covered terrace with two transparent faces are located. Also, there is an outdoor terrace area with Jacuzzi and swimming pool, this space invites contemplation and the multisensory enjoyment of colors, temperature, sounds, and aromas of the forest.
▼从社交区望向泳池露台,View to the terrace from the social area © Rafael Gamo
▼充足的光线为房间都赋予了开放的感觉,With amply lit spaces, no space has truly feel interior © Rafael Gamo
▼餐厅,Dining area © Rafael Gamo
▼半开放式厨房,Semi-open kitchen © Rafael Gamo
▼带有壁炉的客厅,The living room with a fireplace © Rafael Gamo
坡屋顶和墙面采用了天然的浆糊表面处理,模拟了树皮的色调,从而与周围的森林谨慎地形成融合。由于当地经常下雨,因而采用了坡屋顶的设计,在平时,这样的屋顶也能够带来光线的变化和令人愉快的阴影。房屋的其他部分主要使用了天然的木材和水洗混凝土。
The gabled roof with walls in a natural paste finish simulates the tones of the tree bark and blends discreetly with the surrounding forest. This roof generates a play of light and very pleasant shadows. The construction is made with gabled roofs, due to the constant rains in the area. In the rest of the house, the predominant materials are natural wood and washed concrete.
▼入口区域,Entrance area © Rafael Gamo
▼室内视野,Interior view © Rafael Gamo
充足的光线为每个房间都赋予了开放的感觉,内部和外部之间的界限近乎消失。纯粹而简洁的建筑本身便能够与自然建立很强的联系,营造出持久永恒的体验。
With amply lit spaces, no space has truly feel interior, causing the boundary between inside and outside to virtually disappear. The pure and clean architecture of Casa Zarzales gives it a strong connection with nature and makes it timeless.
▼卧室,Bedroom © Rafael Gamo
▼走廊和洗手间,Corridor and bathroom © Rafael Gamo
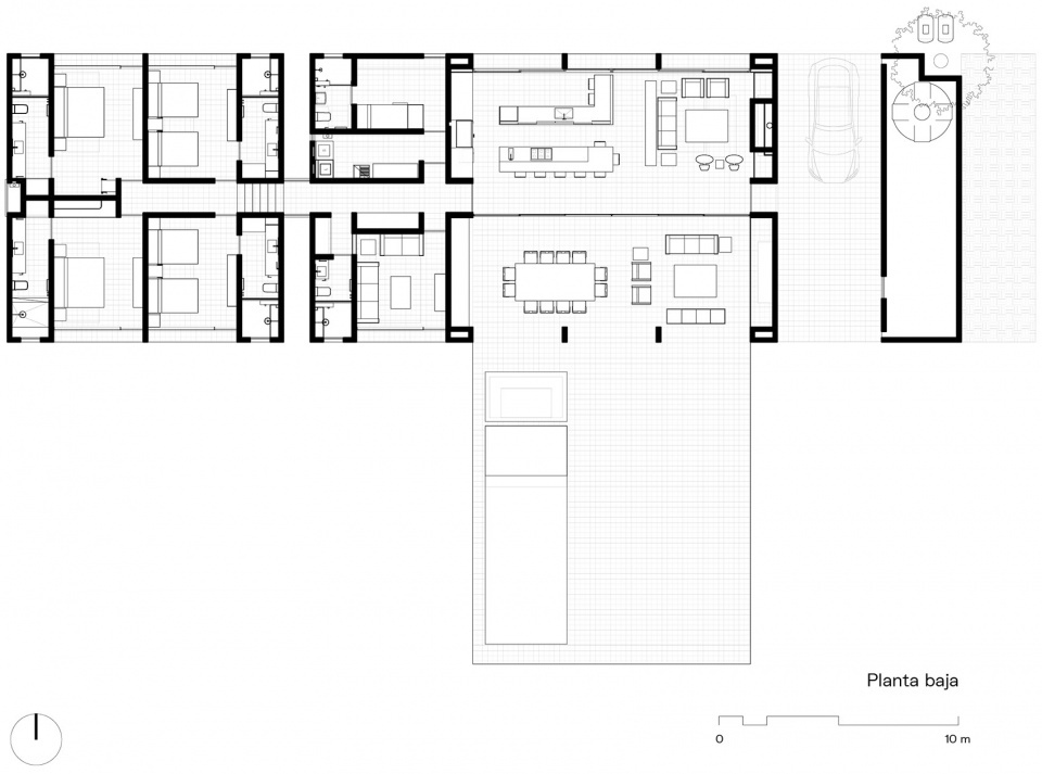
▼平面图,Plan © PPAA
Project name: Zarzales
Location: Valle de Bravo, Estado de México
Year: 2022
Built area: 645 sqm
Firm: PPAA Pérez Palacios Arquitectos Asociados
Team: Pablo Pérez Palacios, Miguel Vargas, Nancy Estevez
Website:
Social networks:
Instagram: @perez_palacios_aa
Facebook: PPAA
Photography: Rafael Gamo
客服
消息
收藏
下载
最近





















