查看完整案例

收藏

下载
项目名称:西班牙古斯塔沃·德·梅兹图博物馆
位置:西班牙
设计公司:DirecciónGeneral de cultura,戈比诺·德·纳瓦拉
摄影师:何塞·曼努埃尔·卡蒂利亚斯(JoséManuel Cutillas)
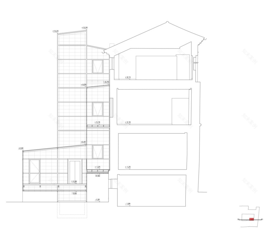
古斯塔沃·德·梅兹图博物馆位于埃斯特拉纳瓦拉国王的宫殿内,这是纳瓦拉罗马式民用建筑的典范,纳瓦拉拥有民俗宣言。该财产归纳瓦拉政府所有,纳瓦拉政府于1991年对其进行了修复,成为古斯塔沃·德·梅兹图博物馆的总部,并将其使用权交给了埃斯特拉市议会,后者负责开支的管理和运营。博物馆内部的路线不适合残疾人士使用,因为在1991年进行博物馆翻新工程时,由于实施起来非常困难,其垂直沟通元素得以保留而没有包括电梯。由于这是一幢公共建筑,展览馆位于较高楼层,只能通过楼梯进入,因此博物馆的管理人员近年来反复表达了这对游客来说意味着的问题。所进行的工作不仅试图解决博物馆的无障碍问题,而且还试图将其院子与展览空间和流通融为一体,直到现在仍未使用,参观者也无法进入。博物馆院子里出现的新的半透明电梯容积与实心砖立面形成了鲜明的对比,在实心砖立面中,电梯进行了干预,以将各种展览地板之间的连接整合在一起。宫殿建筑与新装置之间的历时性,突出了立面和屋顶上镶板围护结构的半透明性,这是建筑作品的特征。
西班牙古斯塔沃·德·梅兹图博物馆外部实景图
西班牙古斯塔沃·德·梅兹图博物馆外部实景图
西班牙古斯塔沃·德·梅兹图博物馆外部实景图
西班牙古斯塔沃·德·梅兹图博物馆外部实景图
西班牙古斯塔沃·德·梅兹图博物馆外部实景图
西班牙古斯塔沃·德·梅兹图博物馆外部实景图
西班牙古斯塔沃·德·梅兹图博物馆内部实景图
西班牙古斯塔沃·德·梅兹图博物馆内部实景图
西班牙古斯塔沃·德·梅兹图博物馆内部实景图
西班牙古斯塔沃·德·梅兹图博物馆内部实景图
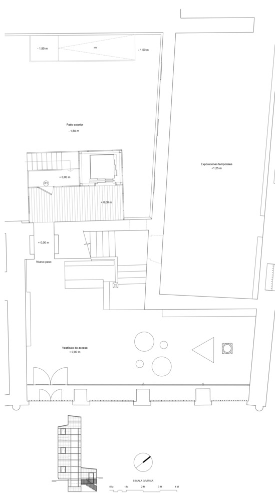
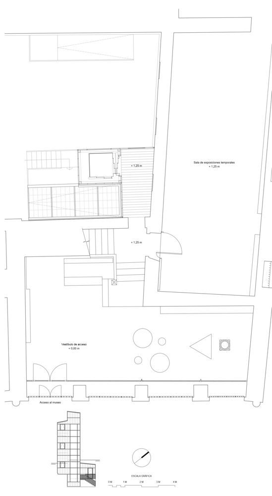
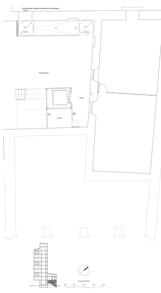
西班牙古斯塔沃·德·梅兹图博物馆平面图
西班牙古斯塔沃·德·梅兹图博物馆平面图
西班牙古斯塔沃·德·梅兹图博物馆平面图
西班牙古斯塔沃·德·梅兹图博物馆平面图
西班牙古斯塔沃·德·梅兹图博物馆平面图
西班牙古斯塔沃·德·梅兹图博物馆平面图
西班牙古斯塔沃·德·梅兹图博物馆剖面图
西班牙古斯塔沃·德·梅兹图博物馆剖面图
西班牙古斯塔沃·德·梅兹图博物馆剖面图
西班牙古斯塔沃·德·梅兹图博物馆剖面图
西班牙古斯塔沃·德·梅兹图博物馆剖面图
客服
消息
收藏
下载
最近
























