查看完整案例

收藏

下载
项目名称:中国地质大学未来城新校区图书馆
位置:湖北 武汉
设计公司:同济大学建筑设计研究院
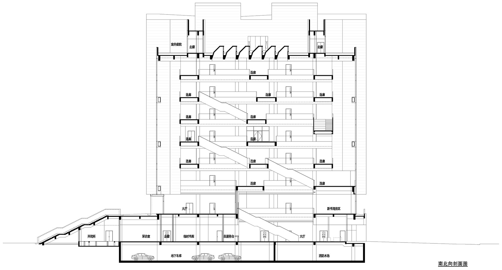
图书馆位于中国地质大学(武汉)未来城新校区核心位置,南北向入口空间主轴和东西向景观空间轴线的交汇点上,北临地大湖及对岸的核心科教区,南接校园主干路和学生生活区,东侧为校园核心山水绿地及学生活动中心,西侧为地大湖和地球广场。新校区文脉和生活的双重缺失催生了设计的动机,书籍是人类文明的载体,赋予了图书馆一种精神象征性——它超脱于基本的功能属性成为一座纪念性建筑,在无城市街区依托和约束的背景下,作为未来城校区的标志性元素,对建筑群起到统领和凝聚作用,如同“基石”;同时,它也是一个海纳百川的巨大“容器”,允许停留或者穿过,人们可以来探求抑或偶遇储藏在其中的知识,在空旷的城郊校园里孕育一个能让人找到归属感的场所。图书馆是校园中最高的建筑单体,建筑临湖而建,俯瞰北侧主教学区广场,同时与南侧的食堂和宿舍围合出生活区广场。总体布局从内外需求切入,一方面基于对设计任务书的理解,将约三万平方米的地上建筑拆分为塔楼和基座两部分,以便容纳不同的功能空间类型,另一方面,外部环境、设计动机对二者提出了不同的形式需求,作为对此的回应,体量操作强调塔楼的高耸和基座的隐匿。将基座东西两侧下压至地面,使庞大的体量匍匐于场地,减小对并不宽裕的核心景观区的压迫,从地面延伸上基座屋面的绿坡和台阶则混淆了建筑与景观的分界。建筑的二层平面内收,由玻璃幕墙围合,将室内空间与外部露台从视觉上连通,强化该层共享大厅、期刊和新书阅览等区域的开放性。
书山巍峨——图书馆塔楼悬浮于基座之上,其宽度经视线分析确定为约70m宽,向两侧展开的体量隔景观水系与教学区建筑呈围合之势,收拢校门至此的线性广场,建筑高度接近50米,从校外远观,图书馆超出四周多层建筑,具有清晰的标志性。中部巨大的玻璃幕墙以城市尺度回应了规划的中轴线,贯通建筑的中庭空间如同“峡谷”,引导着人们前来探索,塔楼上如刀劈斧削般的狭缝,则是阅览空间中向外观望的景窗和阳台。大开大合、虚实相嵌的形式操作,将基本功能空间与活跃的公共空间与建筑的实体和虚体分别对应,使其如同雕塑,获得了超出日常建筑的纪念性。书山有路——从底层开始,盘旋而上的开敞楼梯将上下交错的连廊串联起来,组成一条连续的漫游和攀登路线。为提高使用效率,三部公共电梯成组布置在西侧,日常使用中,中庭内的开敞楼梯也成为读者去往相邻楼层的快捷路径,这不但活跃了中庭空间,强化了建筑的公共性,也可在将来图书馆成为校园与市民的共享城市公共设施时,缓解高频使用中的电梯拥堵。连廊和楼梯不止是立体交通系统,也是开放的交流空间和非正式阅览区域,人们可以在这里诵读、交谈,或是漫步思考,与两侧的阅览室互不干扰。校园景观从两侧的玻璃幕墙渗透进来,屋顶的天窗洒下静谧明亮的自然光线,中庭下接入口,上承天窗,烟囱效应加强了整个建筑的空气循环,阳光、季节、风景被在建筑中穿行的人们所感知,求知者攀登书山的同时,感受自然,共享收获知识的意趣。
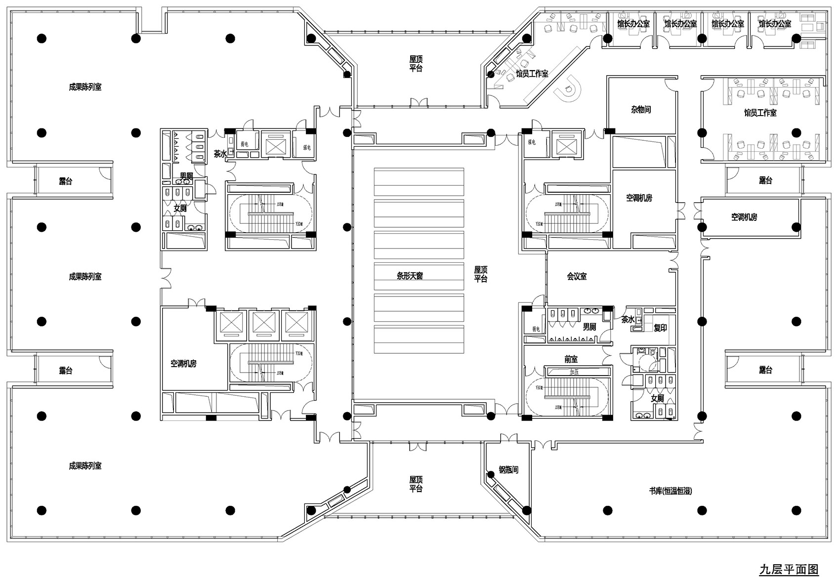
一层高的基座包含了学术报告厅、展厅、24小时自习室、咖啡厅等相对独立的功能用房,与图书馆的公共阅览区域垂直分区,互不干扰。东侧门厅服务于独立的会务与接待功能,自习室和咖啡厅在南侧直接对外开设入口,图书馆采编书库等业务用房设置于一层北侧,临车行环路设置后勤办公入口,通过核心筒内的独立电梯串联设置于五层和九层的网络技术部和馆员办公区。三至八层为主要阅览研修空间,九层是办公区、恒温恒湿书库和陈列室,立面材料与开窗考虑近人的尺度感受和基本的功能需求。三种尺寸的米黄色异形石材错缝层叠,如同天然的地质岩层,朴素沧桑可触可感。开窗与石材统一模数,其位置兼顾室内空间的采光通风——高处的窗为室内深处带来明亮的光线,低处设置的开启扇便于自然通风,内凹的开窗与遮阳板结合的自遮阳系统,强化了立面的横向肌理,同时有效减少了夏季使用能耗。不同的尺度,不证自明,传达出中国地质大学的独特气质,将未来城校区锚固在空旷的自然环境中,迎接未至的城市。图书馆作为校园的核心枢纽,对校园公共空间和步行动线系统进行了接续和延伸,联系起教学区与生活区,同时也以一种包容性的空间氛围将工作学习和种种日常生活融为一体,如同一个海纳百川的巨大“容器”,体现出大学特有的精神,随着大学校园的日渐开放,图书馆也期待在未来融入城市的公共生活。
中国地质大学未来城新校区图书馆外部实景图
中国地质大学未来城新校区图书馆外部实景图
中国地质大学未来城新校区图书馆外部实景图
中国地质大学未来城新校区图书馆外部实景图
中国地质大学未来城新校区图书馆外部实景图
中国地质大学未来城新校区图书馆外部实景图
中国地质大学未来城新校区图书馆外部实景图
中国地质大学未来城新校区图书馆外部实景图
中国地质大学未来城新校区图书馆外部实景图
中国地质大学未来城新校区图书馆外部实景图
中国地质大学未来城新校区图书馆外部实景图
中国地质大学未来城新校区图书馆外部实景图
中国地质大学未来城新校区图书馆外部实景图
中国地质大学未来城新校区图书馆外部实景图
中国地质大学未来城新校区图书馆外部实景图
中国地质大学未来城新校区图书馆外部实景图
中国地质大学未来城新校区图书馆内部实景图
中国地质大学未来城新校区图书馆内部实景图
中国地质大学未来城新校区图书馆内部实景图
中国地质大学未来城新校区图书馆内部实景图
中国地质大学未来城新校区图书馆内部实景图
中国地质大学未来城新校区图书馆内部实景图
中国地质大学未来城新校区图书馆内部实景图
中国地质大学未来城新校区图书馆内部实景图
中国地质大学未来城新校区图书馆内部实景图
中国地质大学未来城新校区图书馆内部实景图
中国地质大学未来城新校区图书馆内部实景图
中国地质大学未来城新校区图书馆内部实景图
中国地质大学未来城新校区图书馆内部实景图
中国地质大学未来城新校区图书馆内部实景图
中国地质大学未来城新校区图书馆内部实景图
中国地质大学未来城新校区图书馆内部实景图
中国地质大学未来城新校区图书馆内部实景图
中国地质大学未来城新校区图书馆内部实景图
中国地质大学未来城新校区图书馆内部实景图
中国地质大学未来城新校区图书馆内部实景图
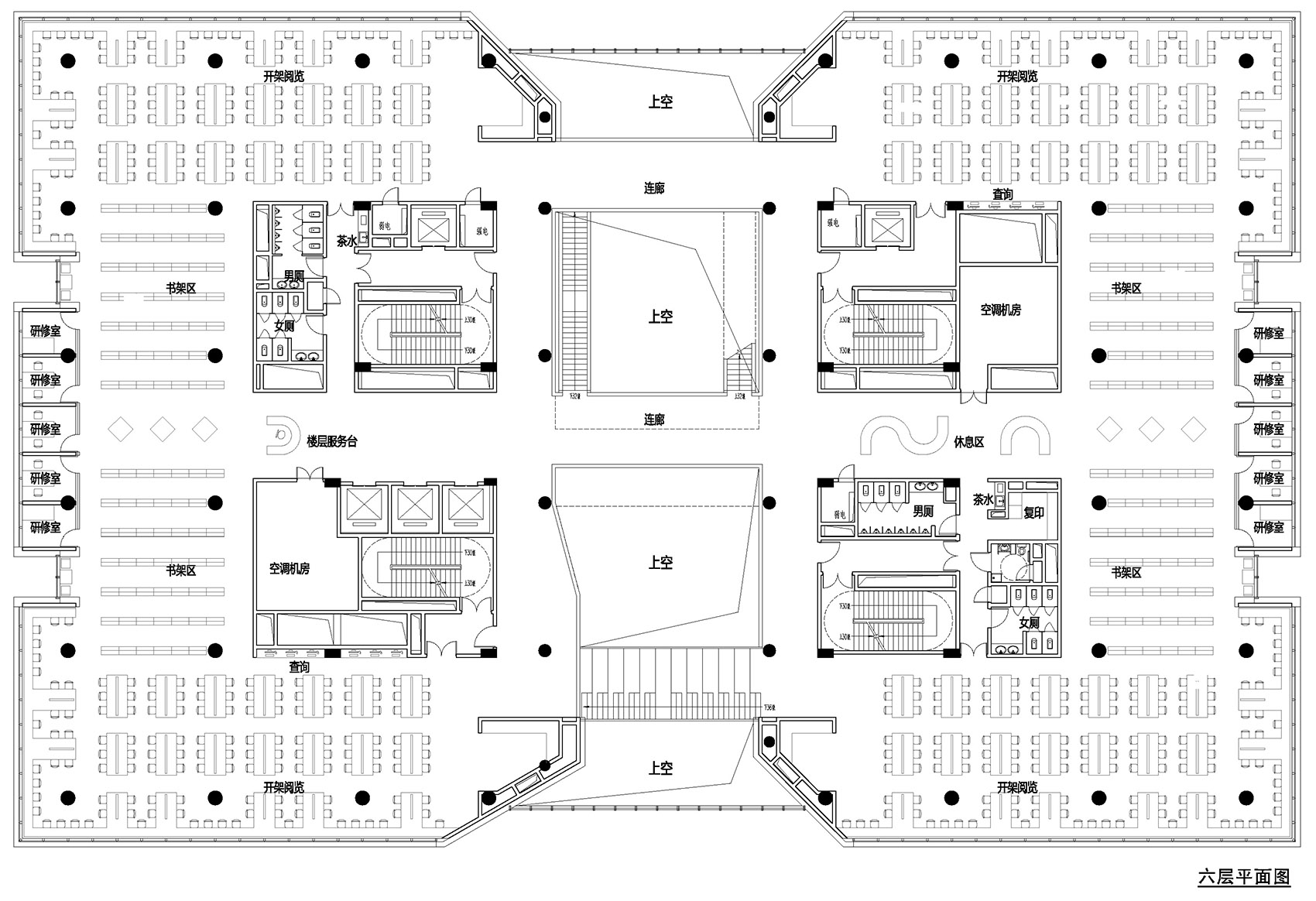
中国地质大学未来城新校区图书馆平面图
中国地质大学未来城新校区图书馆平面图
中国地质大学未来城新校区图书馆平面图
中国地质大学未来城新校区图书馆平面图
中国地质大学未来城新校区图书馆平面图
中国地质大学未来城新校区图书馆平面图
中国地质大学未来城新校区图书馆平面图
中国地质大学未来城新校区图书馆剖面图
中国地质大学未来城新校区图书馆剖面图
中国地质大学未来城新校区图书馆立面图
中国地质大学未来城新校区图书馆立面图
中国地质大学未来城新校区图书馆立面图
中国地质大学未来城新校区图书馆立面图
客服
消息
收藏
下载
最近




















































