查看完整案例

收藏

下载
项目名称:日本角川文化博物馆
位置:日本
设计公司:go研吾建筑事务所,KAJIMA DESIGN
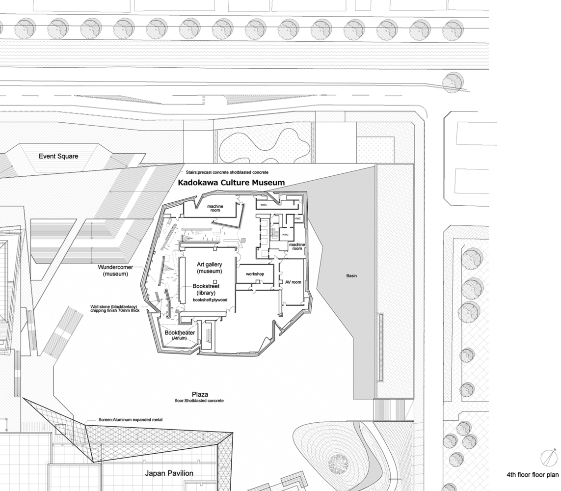
角川文化博物馆是一个未来派的文化迷宫,它以三维和横断面的方式激起了城市和郊区,高文化和低文化等现代社会带来的各种二元对立,创建了武藏野高原。由日本周围的四个构造板块碰撞而成。我们的目标是一种建筑,其中作为岩浆成分的花岗岩在从构造板块的裂缝中上升时会凝固。岩体结构团聚现代城郊景观,如北方的工厂,在南部郊区的房子,和东泽东公园。覆盖在外墙上的两万块花岗岩被命名为“黑色幻想”,在中国采石。它在黑色背景上具有强烈的起伏的白色斑点阴影。我们采用了将70毫米厚的石头打碎而制成的粗糙纹理,这些细节不敢使石头之间的接缝处的台阶对齐。我们获得了适合自然与人造并存的恶劣环境的颗粒感。该结构基于钢结构,但外壁由可承受厚石重量的钢框架钢筋混凝土制成。它实现了几层楼的不确定外观,使我们能够自然融合超出正常建筑规模的对象。内部处于混乱状态,充满了当代艺术这样的高文化,动漫,白色和黑色空间等低文化以及真实和虚假的展品。但是我们通过调整雪松胶合板,柏树和不锈钢网等材料的颗粒,将空间整合为一个。“博物馆之乡”的计划是博物馆和图书馆的融合,其中心有一个美术馆,外面有一个图书馆,外面有一个博物馆。
设置了六个不同角度的墙,以将博物馆与图书馆分开,并随意打孔,以给每个程序留下深刻的印象。在大街上的“书街”上,由雪松胶合板制成的书架从九个大标题中分叉出来,形成了一个类似于大脑结构的网络。我们设计了一个单元,该单元组合了三种不同深度的书架,以便可以将书本平整地堆放起来,并可以在封底的前面显示物品。出现了一条随机节奏的混乱街道,总长度为85 m,由44个单元组成,这些单元结合了6种模式的单元(宽1.8 m,高2.4 m)。与“书街”不同,编辑镇尽头的“书架剧院”的书架具有相同的架子深度,但是通过更改垂直雪松胶合板的深度,它成为书架的悬崖,具有更高的垂直度。可以在8 m的天花板高度以上感觉到的动态书架的粒子被分散并扩展到天花板百叶窗,并且通过在三维上连接多个程序在上层上,创建了迷宫式粒子。
日本角川文化博物馆外部实景图
日本角川文化博物馆外部实景图
日本角川文化博物馆外部实景图
日本角川文化博物馆内部实景图
日本角川文化博物馆内部实景图
日本角川文化博物馆内部实景图
日本角川文化博物馆内部实景图
日本角川文化博物馆内部实景图
日本角川文化博物馆内部实景图
日本角川文化博物馆内部实景图
日本角川文化博物馆平面图
日本角川文化博物馆平面图
日本角川文化博物馆平面图
日本角川文化博物馆平面图
客服
消息
收藏
下载
最近

















