查看完整案例

收藏

下载
项目名称:卢森堡国家图书馆
位置:卢森堡
设计公司:Bolles + Wilson
祖先图书馆和环球图书馆的任务是安置和保护文化和知识文本,这是知识界的基石。对于BnL,紧凑,节能的建筑空间可容纳各种功能实体。透明的气势宏伟,但同时又引人入胜的正面朝着John F. Kennedy大街前进。内部功能从该进入手势开始依次展开。门厅+,咖啡厅(设有高层会议厅和研讨室),阅览室旁边–露台工作站和书架的景观。主要构建块位于建筑物内的深处,是一个中央且紧凑的归档文件,分为五个级别。这个安全的核心被公共空间所包围,并形成一个平台,在该平台上有最大的书架区域和阅读甲板。外墙的主要材料是大幅面红色预制混凝土板-由于进行了多种表面处理(水/喷砂,酸洗)而形成的拼凑而成。建筑的意图是均匀性,即整体建筑体积的物质统一,并带有暗流的表面连接。档案馆的高原被石头填充的石笼网笼包围着像堡垒一样的包裹。计划优先能源效率;技术装置位居第二,其目的是激活建筑物的热质量,以产生可持续的室内气候。地热热泵安装在基础板下方和屋顶光伏面板上。选择内部材料要考虑其吸热能力,以允许夜间吹扫,激活建筑质量以减轻极端温度。摇篮到摇篮原则是尽可能选择材料的参考。层压木材中的大跨度屋顶结构也通过顶层内的空气循环而被热激活。
卢森堡国家图书馆外部实景图
卢森堡国家图书馆外部实景图
卢森堡国家图书馆外部实景图
卢森堡国家图书馆内部实景图
卢森堡国家图书馆内部实景图
卢森堡国家图书馆内部实景图
卢森堡国家图书馆内部实景图
卢森堡国家图书馆内部实景图
卢森堡国家图书馆内部实景图
卢森堡国家图书馆内部实景图
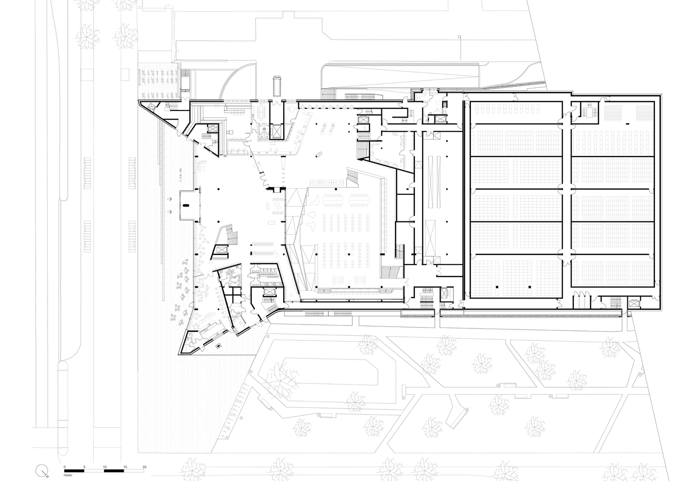
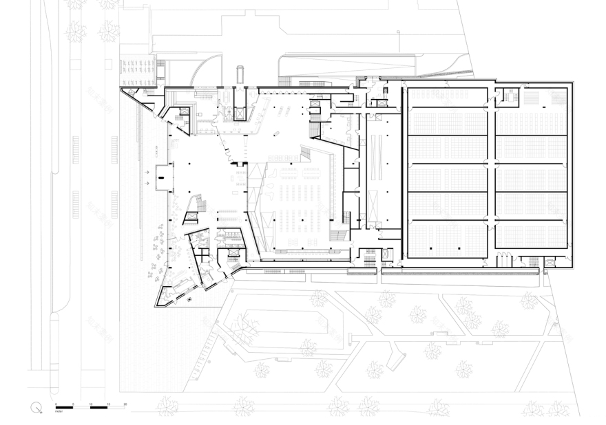
卢森堡国家图书馆平面图
卢森堡国家图书馆平面图
卢森堡国家图书馆平面图
卢森堡国家图书馆剖面图
卢森堡国家图书馆剖面图
卢森堡国家图书馆立面图
卢森堡国家图书馆立面图
客服
消息
收藏
下载
最近




















