查看完整案例

收藏

下载
项目名称:波兰本地活动中心
位置:波兰
设计公司:MWArchitekci
摄影师:Marcin Giba
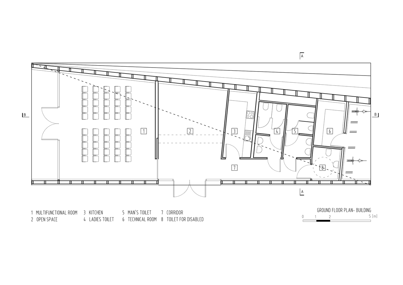
本地活动中心是一个旨在创建一个空间的项目,该空间将成为当地居民生活的焦点,并使他们融入社会。背景的结构,适度并融合到周围环境中,创造了空间,而不是可见的空间。该项目位于雷布尼克市在波兰南部。它由27个地区组成,尽管它们属于同一城市,但它们各自的居民仍然感到强烈的领土独立性。LAC的想法是对正在出现的负面社会现象的回应,它是为所有文化和体育活动以及社会融合创造空间的需要,并且是该地区的一种象征。该项目的范围涵盖了大多数地区,但首先选择了其中的三个地区:科洛科辛,奥乔耶茨,帕鲁索维克。在克洛科辛建立了一个试点项目(实现)。每个位置都有其自己的特定字符。面临的挑战是创建一个足够灵活的通用建筑,以适应场地的不同环境。通过扭曲矩形实体,它们可以与周围环境融为一体。主要结构是一栋带多功能厅的建筑物。在它的后面,有一个开放空间,厨房,卫生间和技术室。 此外,还以相同的建筑风格设计了一个避难所,与建筑物形成了一个连贯的整体。
大流行期间的这种结构以及有关禁止使用封闭空间的规定出乎意料地成为了当地人的主要聚会场所。两种结构都创建了一种半心房空间。它们基于带有扭曲屋顶平面的矩形平面。车顶还通过集成座椅的设计实现了实用功能,该座椅既可以用作日常休息场所,又可以在大型户外活动中用作看台。扭曲的形状-似乎很难制造-原理上是如此简单,以至于它是由以前没有从事木工工作的当地承包商制造的。胶合层压木r的节奏,一方面是跳跃式延长,另一方面是缩短,形成了一种独特的扭曲屋顶平面。材料的一致性通过覆盖有落叶松木板的立面得到补充,随着时间的推移,立面会变成灰色,使建筑物与周围环境融为一体。使用的材料来自当地制造商,这降低了运输成本。由于该房地产的居民参与了LAC开发过程-从社会咨询到管理,他们对此负有全部责任。木材的使用-一种需要翻新和“护理”的材料-已经成为人际关系和社会关系的隐喻,必须加以维护。同样,当地活动中心的建设将由其所属地区的居民使用和照顾,这将证明该活动对他们有多重要。
波兰本地活动中心外部实景图
波兰本地活动中心外部实景图
波兰本地活动中心外部实景图
波兰本地活动中心外部实景图
波兰本地活动中心外部实景图
波兰本地活动中心外部实景图
波兰本地活动中心外部实景图
波兰本地活动中心外部实景图
波兰本地活动中心外部实景图
波兰本地活动中心外部实景图
波兰本地活动中心外部实景图
波兰本地活动中心外部实景图
波兰本地活动中心外部实景图
波兰本地活动中心外部实景图
波兰本地活动中心外部实景图
波兰本地活动中心外部实景图
波兰本地活动中心内部实景图
波兰本地活动中心内部实景图
波兰本地活动中心平面图
波兰本地活动中心平面图
波兰本地活动中心平面图
波兰本地活动中心剖面图
波兰本地活动中心剖面图
客服
消息
收藏
下载
最近


























