知末
知末
创作上传
VIP
收藏下载
登录 | 注册有礼

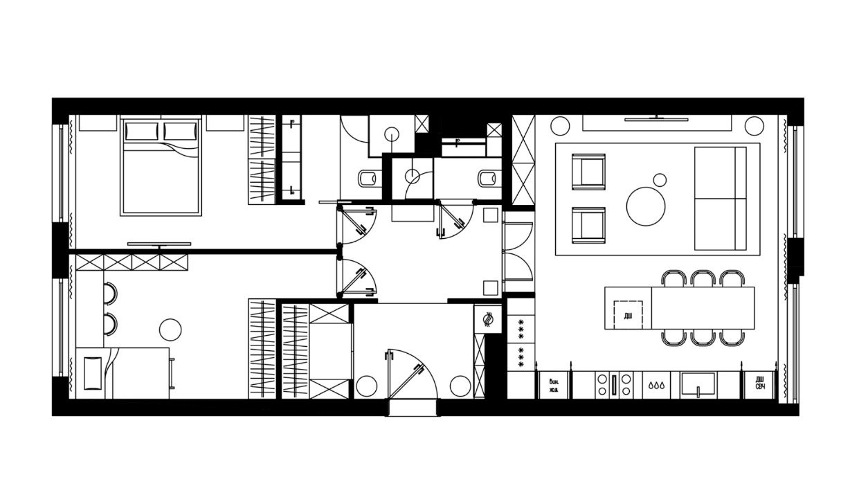
莫斯科河滨公园 88 平室内设计丨俄罗斯莫斯科丨Quadro Room

2022/11/17 20:30:00
查看完整案例
微信扫一扫
收藏
下载
现代经典风格的疯狂时尚内饰。
内部使用许多相同颜色的色调。
这个空间选择了灰色。我们停下来是有原因的:业主想要营造一种平静、包容的氛围,如果不是灰色,还有什么能完美地反映这一概念?
同时,房间看起来并不单调:我们使用了整个灰色色调来使空间具有体积感,这样每个细节都需要一遍又一遍地检查。
莫斯科河滨公园 88 平室内设计丨俄罗斯莫斯科丨Quadro Room-4
莫斯科河滨公园 88 平室内设计丨俄罗斯莫斯科丨Quadro Room-5
莫斯科河滨公园 88 平室内设计丨俄罗斯莫斯科丨Quadro Room-6
莫斯科河滨公园 88 平室内设计丨俄罗斯莫斯科丨Quadro Room-7
莫斯科河滨公园 88 平室内设计丨俄罗斯莫斯科丨Quadro Room-8
莫斯科河滨公园 88 平室内设计丨俄罗斯莫斯科丨Quadro Room-9
莫斯科河滨公园 88 平室内设计丨俄罗斯莫斯科丨Quadro Room-10
莫斯科河滨公园 88 平室内设计丨俄罗斯莫斯科丨Quadro Room-11
莫斯科河滨公园 88 平室内设计丨俄罗斯莫斯科丨Quadro Room-12
莫斯科河滨公园 88 平室内设计丨俄罗斯莫斯科丨Quadro Room-13
莫斯科河滨公园 88 平室内设计丨俄罗斯莫斯科丨Quadro Room-14
莫斯科河滨公园 88 平室内设计丨俄罗斯莫斯科丨Quadro Room-15
莫斯科河滨公园 88 平室内设计丨俄罗斯莫斯科丨Quadro Room-16
莫斯科河滨公园 88 平室内设计丨俄罗斯莫斯科丨Quadro Room-17
莫斯科河滨公园 88 平室内设计丨俄罗斯莫斯科丨Quadro Room-18
莫斯科河滨公园 88 平室内设计丨俄罗斯莫斯科丨Quadro Room-19
莫斯科河滨公园 88 平室内设计丨俄罗斯莫斯科丨Quadro Room-20
莫斯科河滨公园 88 平室内设计丨俄罗斯莫斯科丨Quadro Room-21
莫斯科河滨公园 88 平室内设计丨俄罗斯莫斯科丨Quadro Room-22
莫斯科河滨公园 88 平室内设计丨俄罗斯莫斯科丨Quadro Room-23
莫斯科河滨公园 88 平室内设计丨俄罗斯莫斯科丨Quadro Room-24
莫斯科河滨公园 88 平室内设计丨俄罗斯莫斯科丨Quadro Room-25
莫斯科河滨公园 88 平室内设计丨俄罗斯莫斯科丨Quadro Room-26
莫斯科河滨公园 88 平室内设计丨俄罗斯莫斯科丨Quadro Room-27
莫斯科河滨公园 88 平室内设计丨俄罗斯莫斯科丨Quadro Room-28
莫斯科河滨公园 88 平室内设计丨俄罗斯莫斯科丨Quadro Room-29
莫斯科河滨公园 88 平室内设计丨俄罗斯莫斯科丨Quadro Room-30
莫斯科河滨公园 88 平室内设计丨俄罗斯莫斯科丨Quadro Room-31
莫斯科河滨公园 88 平室内设计丨俄罗斯莫斯科丨Quadro Room-32
莫斯科河滨公园 88 平室内设计丨俄罗斯莫斯科丨Quadro Room-33
莫斯科河滨公园 88 平室内设计丨俄罗斯莫斯科丨Quadro Room-34
莫斯科河滨公园 88 平室内设计丨俄罗斯莫斯科丨Quadro Room-35
莫斯科河滨公园 88 平室内设计丨俄罗斯莫斯科丨Quadro Room-36
莫斯科河滨公园 88 平室内设计丨俄罗斯莫斯科丨Quadro Room-37
南京喵熊网络科技有限公司 苏ICP备18050492号-4知末 © 2018—2020 . All photos and trademark graphics are copyrighted by their owners.增值电信业务经营许可证(ICP)苏B2-20201444苏公网安备 32011302321234号
客服
消息
收藏
下载
最近