查看完整案例

收藏

下载
项目名称:匈牙利国家舞蹈剧院
位置:匈牙利
设计公司:ZDA-Zoboki设计与建筑
首席建筑师:GáborZoboki,BalázsOrlovits,AndrásLente
设计团队:JohannaJánossy,MiklósHeppes,Attila Fekete,ValériaSzabó
摄影师:Zsolt Hlinka
在曾经是享誉世界的发明繁华中心的古老工业建筑中,匈牙利舞蹈找到了新家。这座前Ganz工厂在19世纪末期鼎盛,不仅是匈牙利工业的象征,还是一代匈牙利科学家的摇篮,他们为世界带来了非凡的创造力。现在是国家舞蹈剧院所在地的工厂大厅主持了国际知名工程师和科学家的创作活动,并在那里构思了一些具有定义意义的发明,例如变压器和发电机。因此,新建筑是科学与文化相遇的论坛,实验流派,民间舞蹈,当代舞蹈以及古典芭蕾舞都得到了舞台。同时,该建筑不仅是文化艺术空间,布达佩斯的再生公园。过去和未来,精神和创造力–融合在一起。国家舞蹈剧院的前身是一座修道院,后来改建为剧院,为展示各种舞蹈类型提供了有限的技术可能性。为新建筑选择的地点是首都公园之一的工业大厅,在19世纪曾是Ganz工厂的建筑之一。
政权更迭期间工厂被关闭,然后转变为公园,工业建筑被转变为展览和工作室空间。文化和社区空间,位于受工业保护的建筑中。在设计新的剧院建筑时,建筑师有一个双重目标:强调现有工业建筑的优点,并改变空间以满足舞蹈行业当前和未来的各种需求。一个新的机翼和立面被添加到以前关闭的工业大厅中,将其连接到公园,开放而诱人。透明的大厅既是公园又是剧院的一部分:它不仅接待游客,而且还是一个充满活力的社区和文化空间,艺术,人类互动和娱乐同时存在。
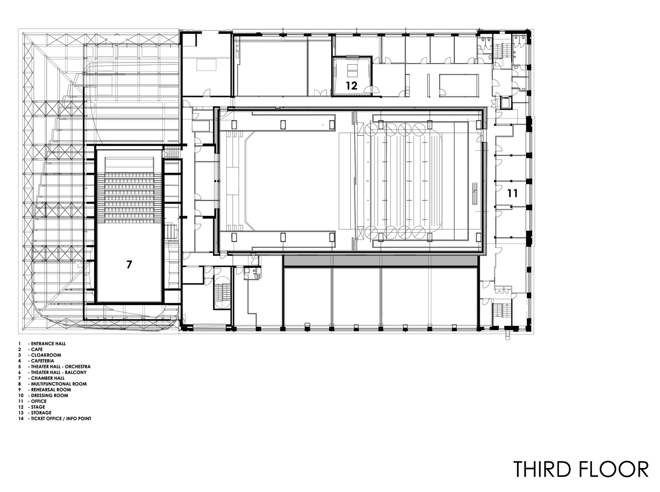
工业大厅可以被认为是一个三间教堂的大教堂,其中心元素是一个可容纳368人的大型大厅,被转换成多功能剧院空间。配备了现代剧院技术的舞台区域,可以适应舞蹈行业的各种曲目,以适应当前和未来的需求,但也可以在其中举办其他活动,例如音乐会和晚宴。礼堂的可拆卸,可移动的椅子系统也可用于此目的,如有必要,可将其移动到侧面。悬挂在大厅上方的小礼堂是进行实验的空间,它还可以作为剧院演出各种流派。通过移动移动窗帘系统,还可以改变声学环境,使房间的声音更清晰或更暗。大楼中还建立了一个录音室,以扩大舞蹈作品的艺术潜力,并且在舞蹈剧院中还有两个大型的排练室。
匈牙利国家舞蹈剧院外部实景图
匈牙利国家舞蹈剧院内部实景图
匈牙利国家舞蹈剧院内部实景图
匈牙利国家舞蹈剧院内部实景图
匈牙利国家舞蹈剧院内部实景图
匈牙利国家舞蹈剧院内部实景图
匈牙利国家舞蹈剧院内部实景图
匈牙利国家舞蹈剧院内部实景图
匈牙利国家舞蹈剧院平面图
匈牙利国家舞蹈剧院平面图
匈牙利国家舞蹈剧院平面图
匈牙利国家舞蹈剧院平面图
匈牙利国家舞蹈剧院剖面图
匈牙利国家舞蹈剧院剖面图
匈牙利国家舞蹈剧院剖面图
客服
消息
收藏
下载
最近


















