查看完整案例

收藏

下载
项目名称:法国大皇宫电影院
位置:法国
设计公司:Antonio Virga Architecte
摄影师:吕克Boegly,皮埃尔Lasvenes
这家电影院位于卡奥尔(Cahors)镇历史中心的北侧,距离洛特河(Lot River)河畔只有几步之遥,坐落在一个致力于军队的旧址上(今天更名为PlaceBessières)。该项目提供了一个机会,可以通过占领此建筑群东翼的区域来重建和重新诠释先前存在的军营的对称性,该建筑在1943年被大火烧毁。贝西埃雷斯广场以前作为停车场,现已被改建为宽敞的以及欢迎行人专用并受到树木遮盖的城市空间。广场大部分都是砖砌的,但中心处有一片茂密的绿色区域,称为“绿洲”。抵抗博物馆(Museum of the Resistance)先前位于该地点的一栋建筑物中,该博物馆已被拆除,以便为此项目腾出空间,该博物馆将位于该建筑物的顶层,入口与电影院明显分开。
这里的建筑物和相邻的室外区域是按照严格,和谐和水平的布局组织的,与19世纪军事和公共设施的管理惯例保持一致。为了实现恢复以前的规模的目的,对这组空间进行了简单,统一的材料,家具和绿化处理。整体建筑散发着令人敬畏的立面,但在较高的楼层上,它被一个由小孔眼组成的麻布包围着,从远处照亮了立面并吸引了人们的眼球,吸引了观众前往周围的环境。固体和空隙的错综复杂的变化起了功能性的作用。穿孔的皮肤在白天由于光线的穿透以及光影的相互作用而活跃于室内空间,而在晚上,立面则创造出微弱的闪烁光幕。
这位建筑师寻求一种强大的当代美学的追求,试图将电影院的建筑结构超越重现昔日军营形态的简单目标。该建筑分为两个截然不同,有条不紊地创建并在视觉上突出显示的体积:一栋是砖砌建筑,另一栋是穿孔金属镀金金属建筑,每一个在与公共空间的关系中都发挥着非常精确的作用。砖块的体积反映了前军营的两座建筑,被想象成是对这些现有结构的当代且可识别的重新诠释。由于直接参考该镇的历史,因此它是广场上最引人注目的元素。选择Brick是为了增强卡奥尔公民的集体记忆 同时避免任何暗示。
法国大皇宫电影院外部实景图
法国大皇宫电影院外部实景图
法国大皇宫电影院外部实景图
法国大皇宫电影院外部实景图
法国大皇宫电影院外部实景图
法国大皇宫电影院外部实景图
法国大皇宫电影院外部实景图
法国大皇宫电影院外部实景图
法国大皇宫电影院外部实景图
法国大皇宫电影院外部实景图
法国大皇宫电影院外部实景图
法国大皇宫电影院外部实景图
法国大皇宫电影院外部实景图
法国大皇宫电影院外部实景图
法国大皇宫电影院外部实景图
法国大皇宫电影院外部实景图
法国大皇宫电影院外部实景图
法国大皇宫电影院外部实景图
法国大皇宫电影院内部实景图
法国大皇宫电影院内部实景图
法国大皇宫电影院内部实景图
法国大皇宫电影院内部实景图
法国大皇宫电影院内部实景图
法国大皇宫电影院内部实景图
法国大皇宫电影院内部实景图
法国大皇宫电影院内部实景图
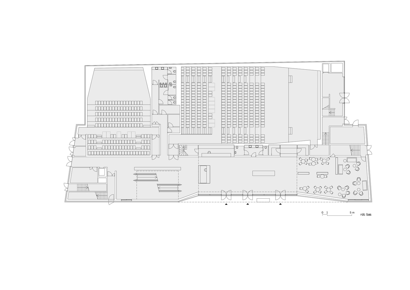
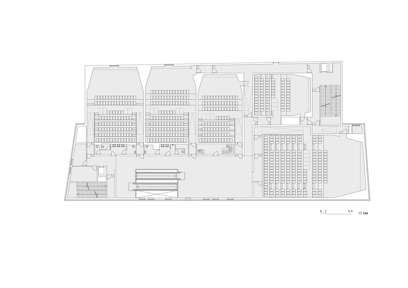
法国大皇宫电影院平面图
法国大皇宫电影院平面图
法国大皇宫电影院平面图
法国大皇宫电影院平面图
法国大皇宫电影院平面图
法国大皇宫电影院平面图
法国大皇宫电影院剖面图
法国大皇宫电影院剖面图
法国大皇宫电影院立面图
法国大皇宫电影院立面图
客服
消息
收藏
下载
最近







































