查看完整案例

收藏

下载
项目名称:波兰什切青歌剧院
位置:波兰
设计公司:Barozzi Veiga
项目在“二战”时损毁的音乐厅的原址上进行重建,包括了一个交响乐演奏厅和一个室内乐演奏厅,是个非常复杂的建筑。这是一个综合性的设计,从周围环境中提取具有识别性的元素,在体量、垂直向和屋面造型上形成了自身的特色。建筑充满了表现力,以顶部区域尤为明显,这也是受中欧表现主义建筑影响的结果。铝和玻璃构成了建筑的立面,在半透明与不透明间变化,从外侧看,建筑宛如一个没有重量的体量,展现着极具表现力的品质,而这种品质也与自身的功能紧紧相依。简洁的建筑外观同富有张力的主演奏厅形成了鲜明的对比。主演奏厅被设想为一件黄金工艺品,遵循了中欧地区音乐厅的设计传统,无论是外观性还是功能性的装饰,均采用了当地传统工艺,以覆有金箔的组件为基础。考虑到声学因素,该元素的碎片化程度遵循了一种几何序列,随着与舞台间的距离而渐变。与之前的项目一样,此次的设计拥有了一定的自主权,试图创造一个与环境相融合,却又独立出环境的建筑。
波兰什切青歌剧院外部实景图
波兰什切青歌剧院外部实景图
波兰什切青歌剧院外部实景图
波兰什切青歌剧院外部实景图
波兰什切青歌剧院内部实景图
波兰什切青歌剧院内部实景图
波兰什切青歌剧院内部实景图
波兰什切青歌剧院内部实景图
波兰什切青歌剧院内部实景图
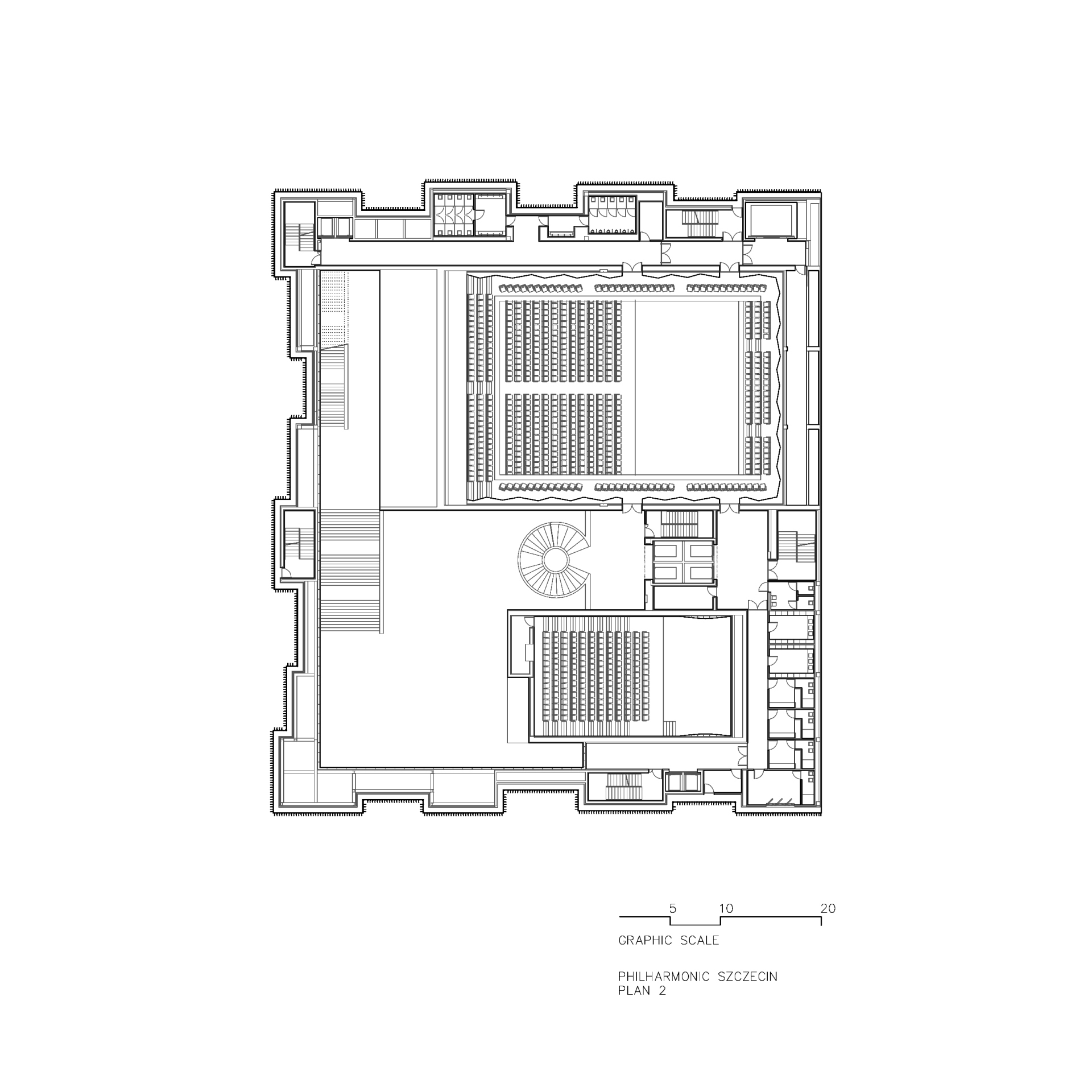
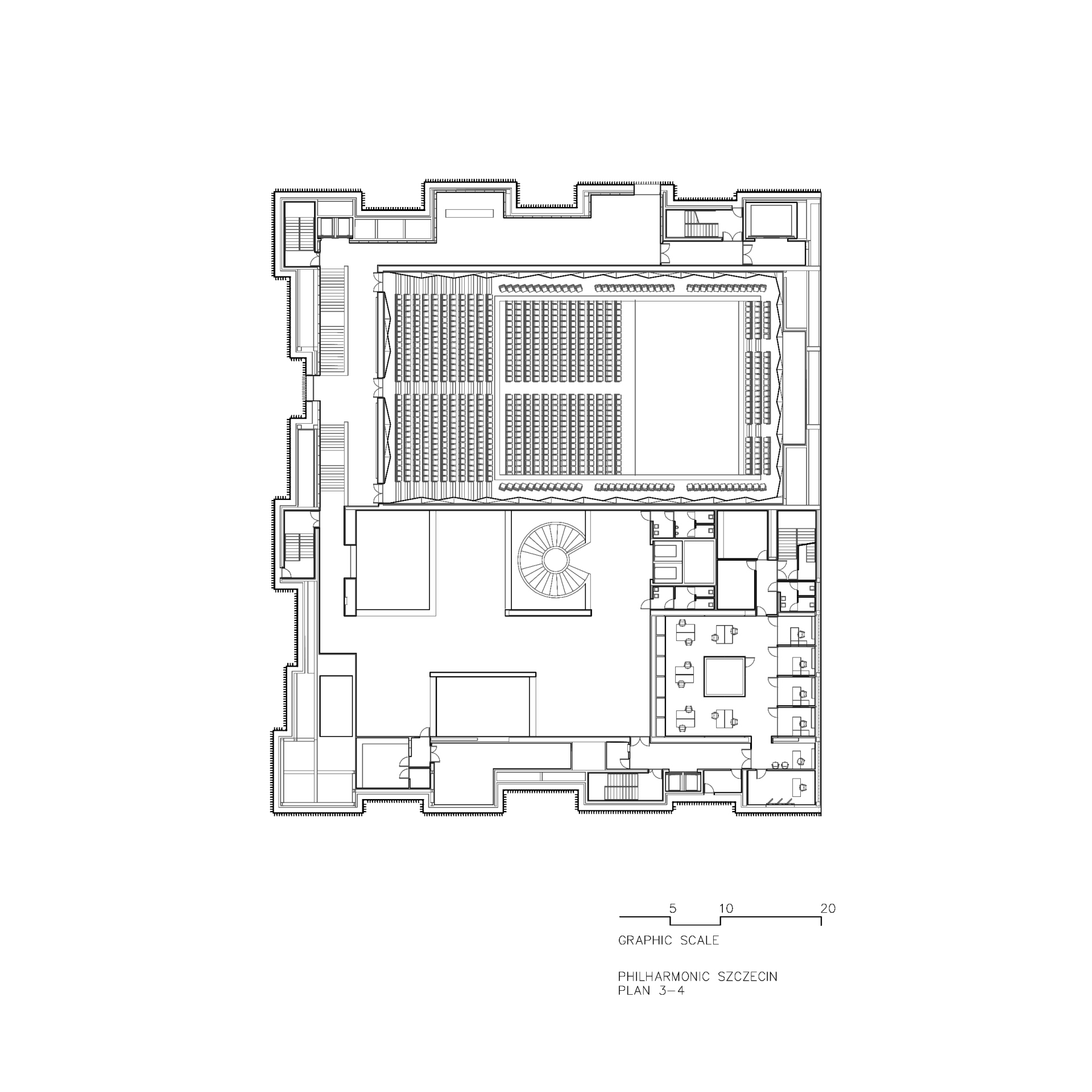
波兰什切青歌剧院平面图
波兰什切青歌剧院平面图
波兰什切青歌剧院平面图
波兰什切青歌剧院平面图
波兰什切青歌剧院平面图
波兰什切青歌剧院平面图
波兰什切青歌剧院剖面图
波兰什切青歌剧院剖面图
波兰什切青歌剧院剖面图
波兰什切青歌剧院剖面图
波兰什切青歌剧院立面图
波兰什切青歌剧院立面图
客服
消息
收藏
下载
最近
























