查看完整案例

收藏

下载
项目名称:立陶宛帕萨卡电影院
位置:立陶宛
设计公司:Audrius Ambrasas建筑师
设计团队:Justas Jankauskas,JonasMotiejūnas,FaustaDiržytė,KarolinaGalvydytė,OlgaRunovič
摄影师:Audrius Ambrasas,耶瓦Saudargaitė
PASAKA电影院是“ Paupys”区的一部分,这是一个大型的区域改建项目,它将旧的首都地区转变为工作和生活的和谐区域。场地的设计和城市布局是根据场地的历史和背景进行开发的。战后时期,该地块以大型“ Skaiteks”工业厂房和对面的小木屋为主导。这两座截然不同的建筑启发了新设计住宅区的整个概念。设计建筑物时要保留该位置的旧空间。新设计的建筑之间的关系-带顶棚的市场建筑,室外露台,咖啡馆,商店,工作室,小型电影院和办公楼,使四分之一空间看起来像是旧镇的一部分,而该镇就位于Vilnelė河之外。但是,请记住,这是以前的工厂所在地,因此选择了建筑材料,外墙细节和建筑技术,以保留周围的工业氛围。
立陶宛帕萨卡电影院外部实景图
立陶宛帕萨卡电影院外部实景图
立陶宛帕萨卡电影院外部实景图
立陶宛帕萨卡电影院外部实景图
立陶宛帕萨卡电影院外部实景图
立陶宛帕萨卡电影院外部实景图
立陶宛帕萨卡电影院外部实景图
立陶宛帕萨卡电影院外部实景图
立陶宛帕萨卡电影院外部实景图
立陶宛帕萨卡电影院外部实景图
立陶宛帕萨卡电影院外部实景图
立陶宛帕萨卡电影院外部实景图
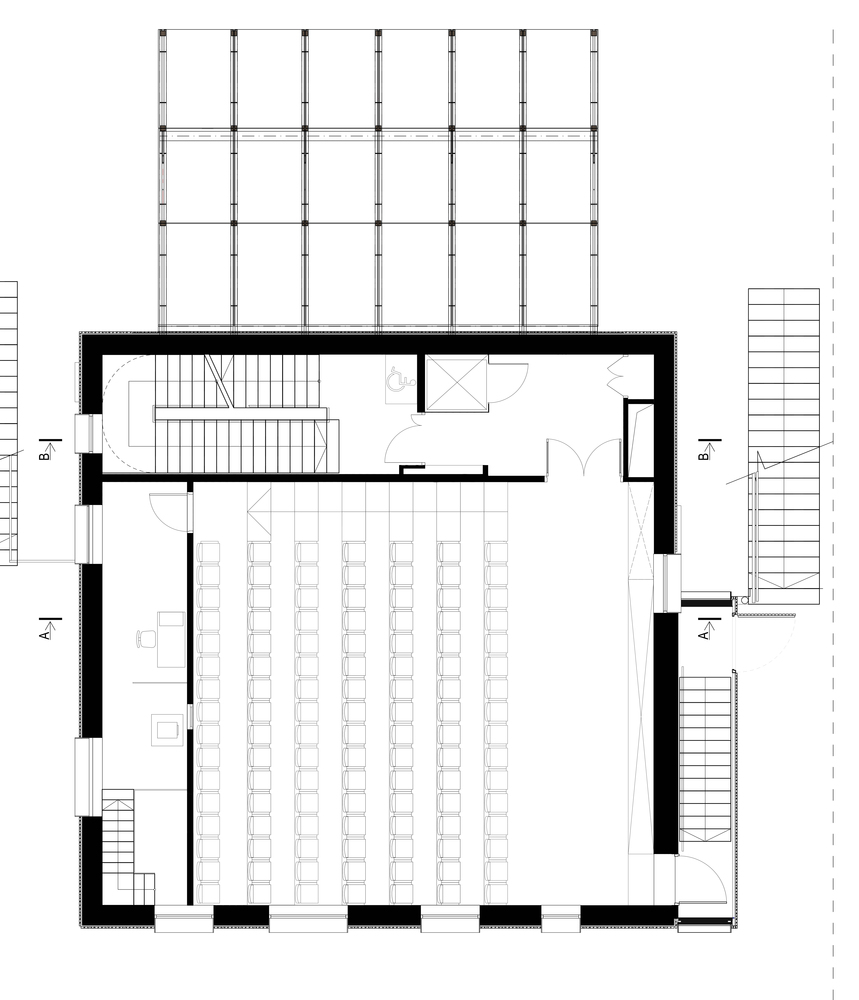
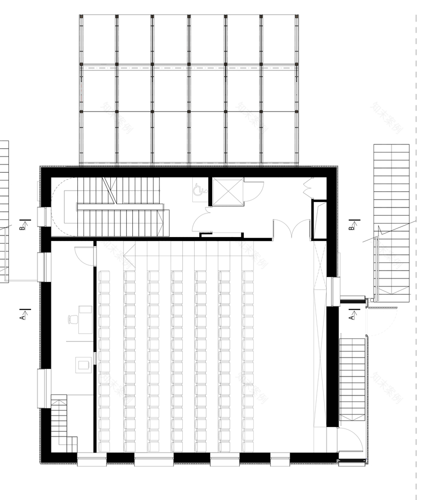
立陶宛帕萨卡电影院平面图
立陶宛帕萨卡电影院平面图
立陶宛帕萨卡电影院平面图
立陶宛帕萨卡电影院立面图
立陶宛帕萨卡电影院立面图
立陶宛帕萨卡电影院剖面图
立陶宛帕萨卡电影院剖面图
客服
消息
收藏
下载
最近






















