查看完整案例

收藏

下载
项目名称:泰国创意设计中心
位置:泰国
设计公司:建筑师49
首席建筑师:Prabhakorn Vadanyakul,Narongwit Areemit
摄影师:Chalermwat Wongchompoo
泰国创意设计中心外部实景图
泰国创意设计中心外部实景图
泰国创意设计中心外部实景图
泰国创意设计中心外部实景图
泰国创意设计中心外部实景图
泰国创意设计中心外部实景图
泰国创意设计中心外部实景图
泰国创意设计中心外部实景图
泰国创意设计中心外部实景图
泰国创意设计中心内部实景图
泰国创意设计中心内部实景图
泰国创意设计中心内部实景图
泰国创意设计中心内部实景图
泰国创意设计中心内部实景图
泰国创意设计中心内部实景图
泰国创意设计中心内部实景图
泰国创意设计中心内部实景图
泰国创意设计中心内部实景图
泰国创意设计中心内部实景图
泰国创意设计中心内部实景图
泰国创意设计中心内部实景图
泰国创意设计中心内部实景图
泰国创意设计中心内部实景图
泰国创意设计中心内部实景图
泰国创意设计中心内部实景图
泰国创意设计中心内部实景图
泰国创意设计中心外部内部实景图
泰国创意设计中心立面图
泰国创意设计中心立面图
泰国创意设计中心立面图
泰国创意设计中心立面图
泰国创意设计中心剖面图
泰国创意设计中心剖面图
泰国创意设计中心剖面图
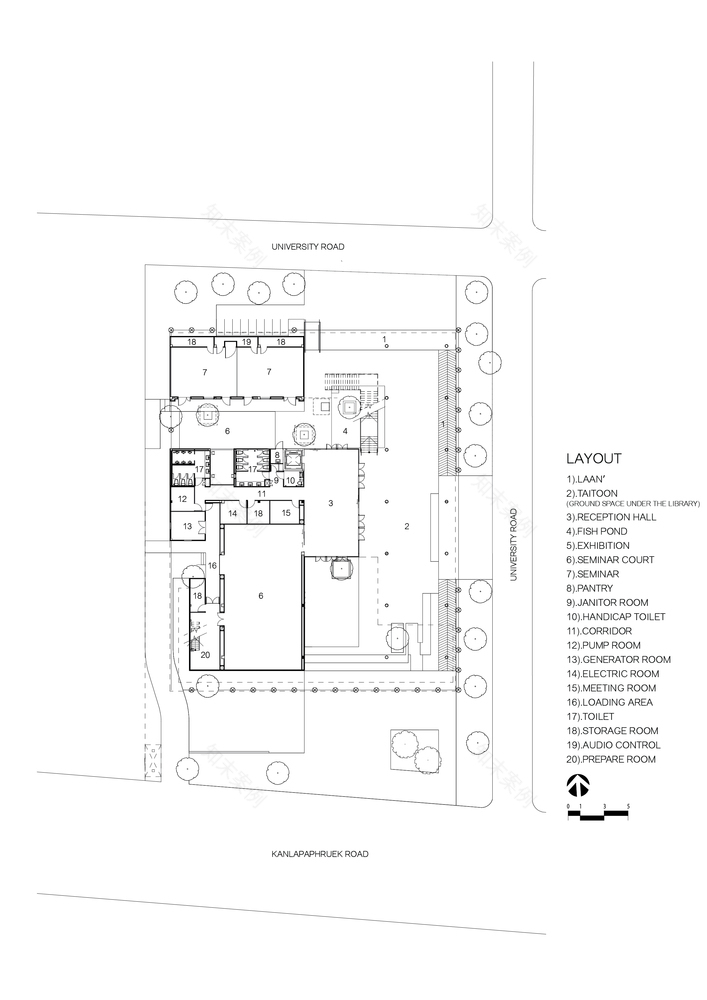
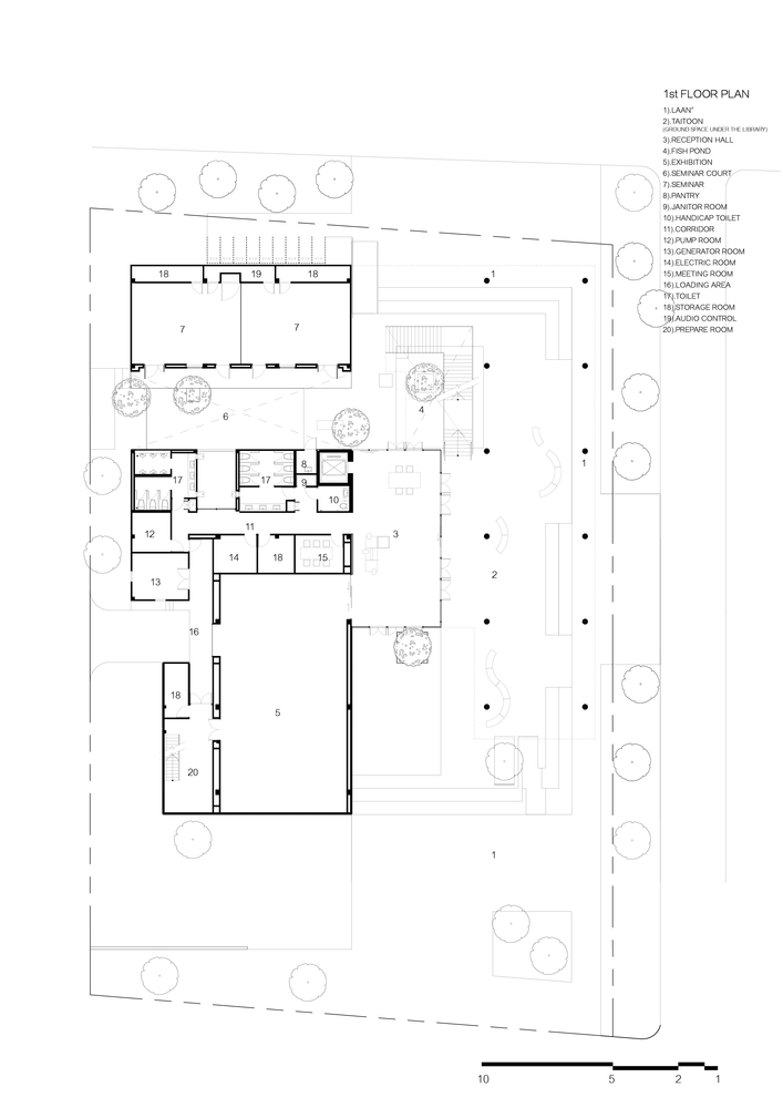
泰国创意设计中心平面图
泰国创意设计中心平面图
泰国创意设计中心平面图
泰国创意设计中心平面图
客服
消息
收藏
下载
最近









































