查看完整案例

收藏

下载
项目名称:嘉兴图书馆改扩建
位置:嘉兴
设计公司:思图意象工作室、浙江省建筑设计研究院
嘉兴图书馆改扩建工程而是遵循着新建部分与原有建筑在形态,空间,材料与色彩等领域,从精神到物质的和谐对话与辩证统一的设计原则,力求与原有图书馆建筑及周边建筑呼应与协调。嘉兴市图书馆改、扩建工程位于嘉兴市“七一”广场以东,海盐塘河道以西,南溪路以南,中环南路以北。“七一”广场以水为核心,四周通过广场与南湖革命纪念馆新馆、嘉兴市行政中心、嘉兴市体育馆、嘉兴市博物馆及图书馆相连接,随着南湖革命纪念馆、“七一”广场的建成,广场周边区域已经成为嘉兴市重要的标志性景观区域,未来会成为嘉兴市市民休闲娱乐运动的文化中心。因此对东侧文化中心的建筑、景观环境提出了更高的要求,因此需要原有图书馆进行改、扩建工程。在嘉兴文化核心的七一广场进行图书馆改扩建工程是一个充满挑战的课题,七一广场是城市政治形象的代表,而广场上的核心建筑——南湖革命历史博物馆也同时有着浓厚的历史色彩。
因此我们的设计既要连接过去又要通向未来,既要突显呼应周边历史建筑,又要体现时代的创新精神,让庄重的历史感在新的时代焕发出新的魅力。在设计之初设计团队就对嘉兴图书馆进行了明确定位:建筑形式优雅,凝重,内部空间丰富多变,设计中赋予人文气息,发挥独特的文化精神。在对场地的整体设计中,特别注重了面向“七一”广场的景观面,将原先相对独立的分散立面改建为整体规整而局部灵活的立面布局方式,重新织补该区域的文化肌理,使建筑与水景广场的美景相得益彰,与自然环境和谐统一。设计结合图书馆旧馆,保留基地原有主入口和次入口位置不变。根据基地现状和规划要求,本项目将图书馆改扩建部分的体块设计成U形平面形式,紧邻图书馆旧馆南侧,并在旧馆和新馆连接的过渡位置设计了一个内向庭院,尽量减少对旧馆建筑采光的影响,同时增加室内的景观。U形体块设计的置入使扩建建筑与原有建筑组成围合的院落格局,从而形成丰富的院落环廊空间。
在内部功能上,充分利用基地周边的景观要素,将中心水景与西侧休闲广场中的自然景观柔和的带入到改、扩建的图书馆,完成一个从大到小的缩放。利用现有交通设施以及地形条件,使图书馆扩建部分设计与原有建筑构建出围合空间,充分发挥现有自然景观的优势将其引入建筑内部,创造富有文化艺术气息的怡人空间。面向“七一”广场的西侧立面,我们将其设计为垂直构件规律排列的形式,竖向的线条给人们带来强烈的古典秩序感,彰显了文化建筑的纪念性与历史厚重感。同时竖向线条的设计有助于减少建筑较长立面带来的西晒影响,也能够产生丰富而优雅的光影效果。紧邻原有建筑的扩建部分北侧立面则保留完整墙面,错落布置竖向长窗,使立面虚实结合。立面材料采用富有纹理的石材挂板、玻璃与铝板,达到与原有建筑立面材料和谐统一的效果。我们尽量保留了原有图书馆旧馆主入口广场和绿地,绿地被建筑及道路分隔成大大小小的室外环境。
图书馆通过大院落,大面积玻璃等的虚空间将“七一”广场的水景引入到建筑内部,透过建筑与绿树在远处交融,建筑与环境相互渗透,气韵贯通,围合的庭院设计加之建筑的立面上的虚实相映让整个博物馆的内外都处于绿意盎然的自然环境之中,和谐而宁静。在整体规划层面,嘉兴图书馆改扩建项目更好的映衬“七一”广场及南湖革命历史博物馆等历史建筑,让整合区域更具历史厚重感,同时与自然景色融合渗透,形成更加优秀的空间组合关系。在建筑层面,改扩建方案设计对功能进行了有效扩展,U型体块的穿插围合,立面关系的虚实处理,让图书馆从各方面满足城市对于新时代文化建筑的需求,水景广场的景色透过由水泥、玻璃与石材组成的外壳,流入图书馆的各个空间。有效提升建筑品质,满足城市的愿景——塑造具有文化性和时代性的交往活动场所。
嘉兴图书馆改扩建外部实景图
嘉兴图书馆改扩建外部实景图
嘉兴图书馆改扩建外部实景图
嘉兴图书馆改扩建外部实景图
嘉兴图书馆改扩建外部实景图
嘉兴图书馆改扩建外部实景图
嘉兴图书馆改扩建外部实景图
嘉兴图书馆改扩建外部实景图
嘉兴图书馆改扩建外部实景图
嘉兴图书馆改扩建外部实景图
嘉兴图书馆改扩建外部实景图
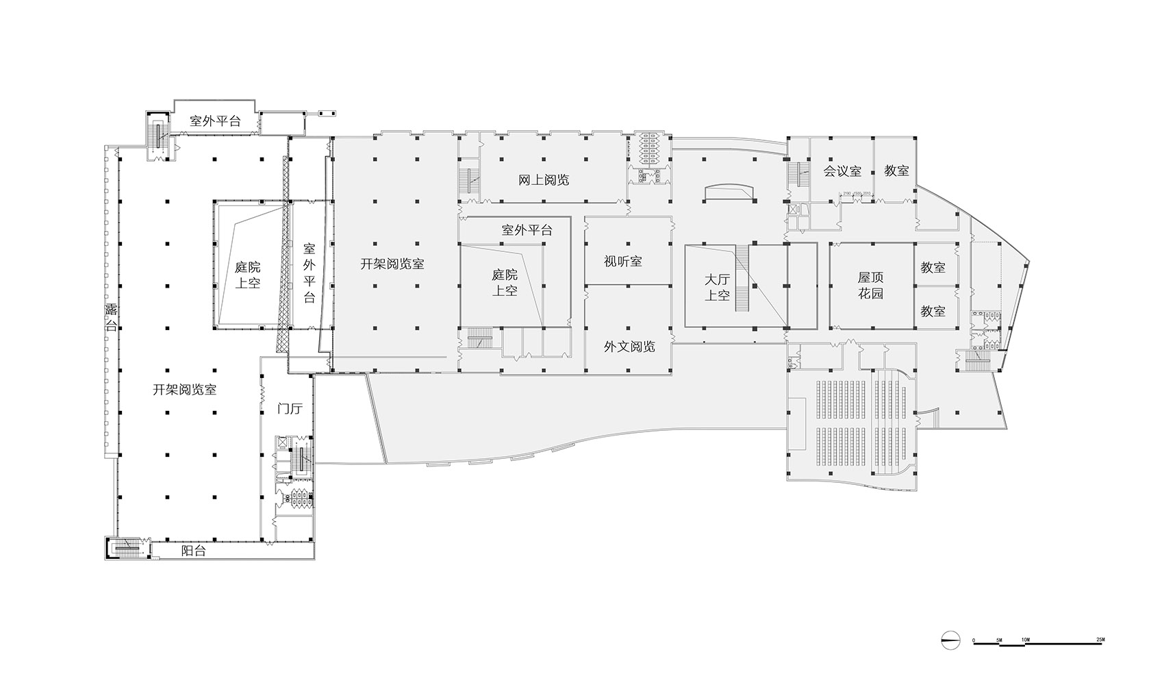
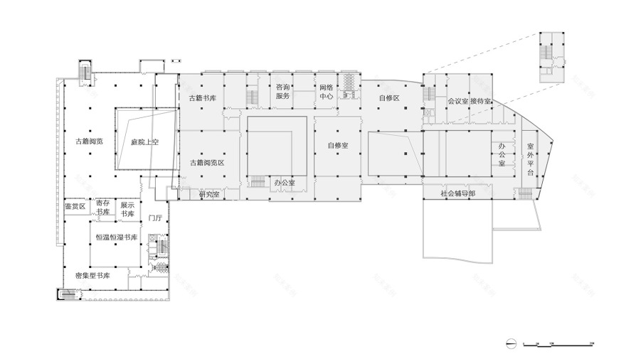
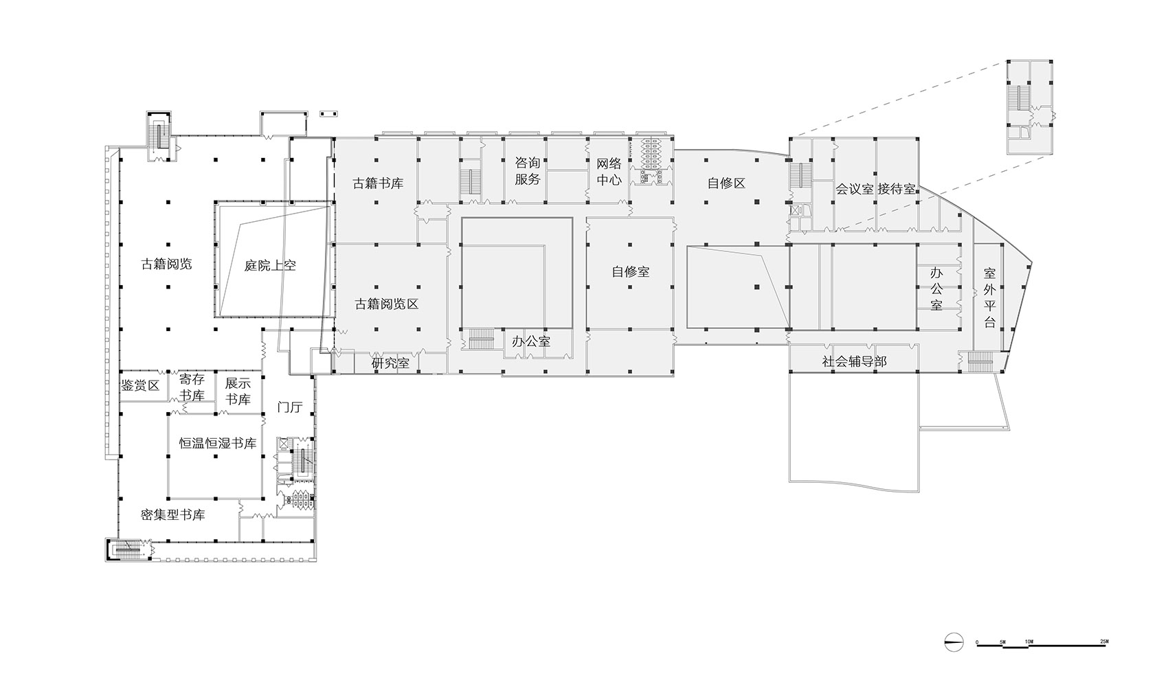
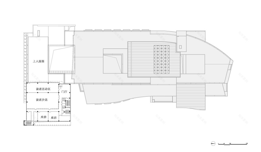
嘉兴图书馆改扩建平面图
嘉兴图书馆改扩建平面图
嘉兴图书馆改扩建平面图
嘉兴图书馆改扩建平面图
嘉兴图书馆改扩建平面图
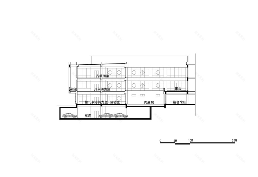
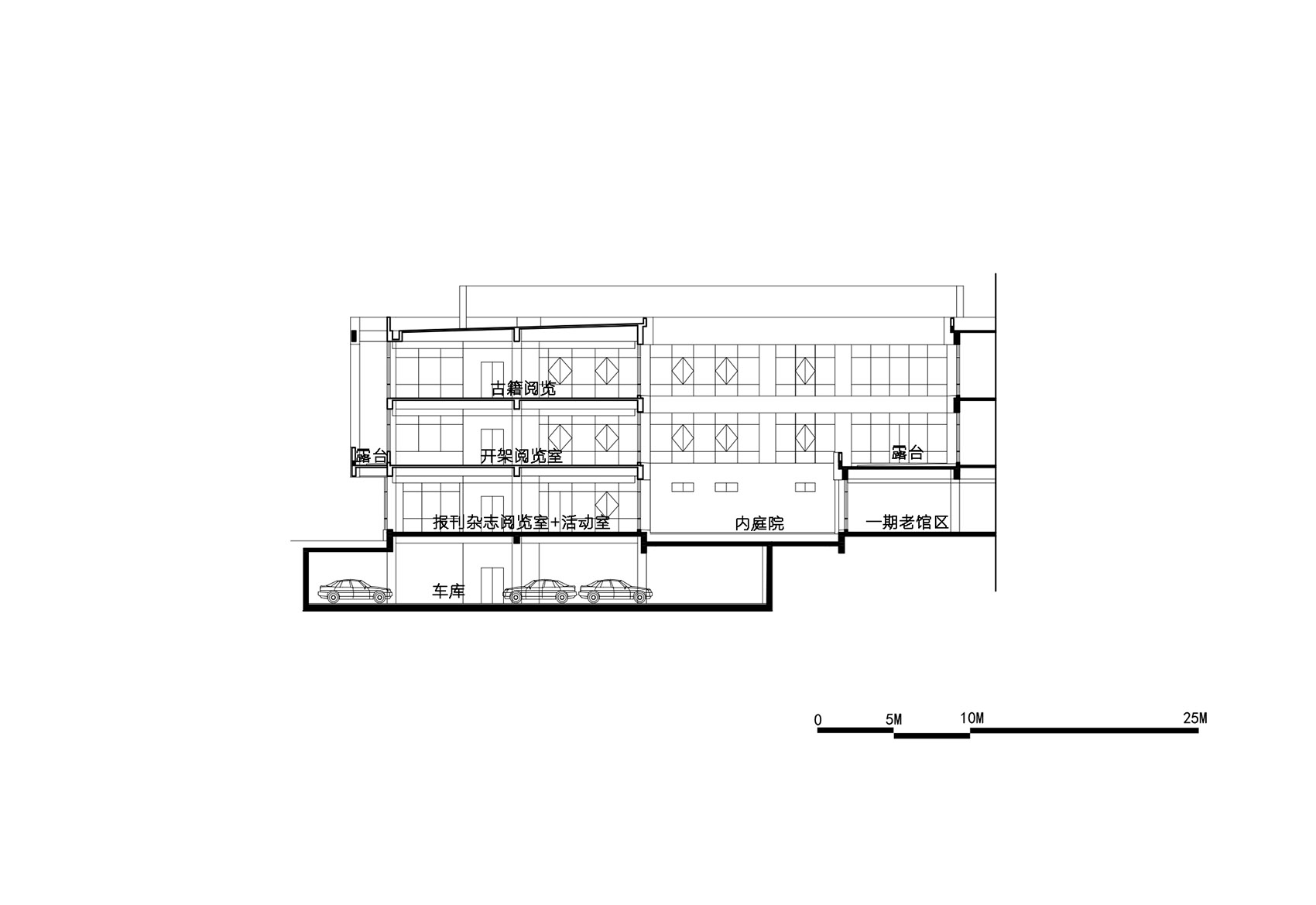
嘉兴图书馆改扩建剖面图
嘉兴图书馆改扩建剖面图
嘉兴图书馆改扩建剖面图
嘉兴图书馆改扩建剖面图
嘉兴图书馆改扩建立面图
嘉兴图书馆改扩建立面图
客服
消息
收藏
下载
最近

























