知末
知末
创作上传
VIP
收藏下载
登录 | 注册有礼

高级灰+极简,理性严谨的“爷范儿”空间 | N.TEAM Design

2020/12/13 16:07:00
查看完整案例
微信扫一扫
收藏
下载
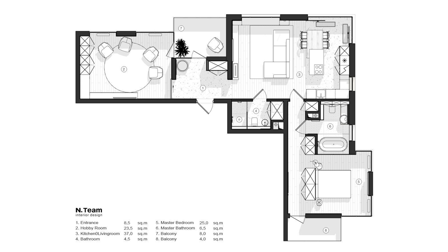
位于乌克兰基辅的117㎡公寓,业主是一名单身男士,由于每年有大部分时间在基辅出差,所以他决定在这里为自己安家。这个117㎡的公寓位于一栋高层建筑的角落,整体呈现一个大L型,由于只需要一间卧室,所以设计师从此展开了发挥。本项目由
N.TEAM Design设计。
高级灰+极简,理性严谨的“爷范儿”空间 | N.TEAM Design-2
高级灰+极简,理性严谨的“爷范儿”空间 | N.TEAM Design-3
高级灰+极简,理性严谨的“爷范儿”空间 | N.TEAM Design-4
高级灰+极简,理性严谨的“爷范儿”空间 | N.TEAM Design-5
高级灰+极简,理性严谨的“爷范儿”空间 | N.TEAM Design-6
高级灰+极简,理性严谨的“爷范儿”空间 | N.TEAM Design-7
高级灰+极简,理性严谨的“爷范儿”空间 | N.TEAM Design-8
高级灰+极简,理性严谨的“爷范儿”空间 | N.TEAM Design-9
高级灰+极简,理性严谨的“爷范儿”空间 | N.TEAM Design-10
高级灰+极简,理性严谨的“爷范儿”空间 | N.TEAM Design-11
高级灰+极简,理性严谨的“爷范儿”空间 | N.TEAM Design-12
高级灰+极简,理性严谨的“爷范儿”空间 | N.TEAM Design-13
高级灰+极简,理性严谨的“爷范儿”空间 | N.TEAM Design-14
高级灰+极简,理性严谨的“爷范儿”空间 | N.TEAM Design-15
高级灰+极简,理性严谨的“爷范儿”空间 | N.TEAM Design-16
高级灰+极简,理性严谨的“爷范儿”空间 | N.TEAM Design-17
高级灰+极简,理性严谨的“爷范儿”空间 | N.TEAM Design-18
高级灰+极简,理性严谨的“爷范儿”空间 | N.TEAM Design-19
高级灰+极简,理性严谨的“爷范儿”空间 | N.TEAM Design-20
高级灰+极简,理性严谨的“爷范儿”空间 | N.TEAM Design-21
高级灰+极简,理性严谨的“爷范儿”空间 | N.TEAM Design-22
高级灰+极简,理性严谨的“爷范儿”空间 | N.TEAM Design-23
高级灰+极简,理性严谨的“爷范儿”空间 | N.TEAM Design-24
高级灰+极简,理性严谨的“爷范儿”空间 | N.TEAM Design-25
高级灰+极简,理性严谨的“爷范儿”空间 | N.TEAM Design-26
售价: 1 金钱
[
]
南京喵熊网络科技有限公司 苏ICP备18050492号-4知末 © 2018—2020 . All photos and trademark graphics are copyrighted by their owners.增值电信业务经营许可证(ICP)苏B2-20201444苏公网安备 32011302321234号
客服
消息
收藏
下载
最近