查看完整案例

收藏

下载
项目名称:上海8342 长三角路演中心
位置:上海
设计公司:AND Studio
8342 长三角路演中心是一个占地15000平方米的文化项目,选址在了上海北部的一个17世纪的砖厂旧址上。2018年,上海市市长选择了这处原工业园区作为大型文化项目的基地,该项目旨在改造并振兴附近的几个村庄。两年前,上海建工集团(项目开发商)联系了我们,希望我们为他们提供了一个新的概念,并与他们分享我们对该场地中所蕴含的潜力的看法。安棣建筑事务所在整个开发过程中扮演了一个积极的参与者,在建筑师、艺术家、工程师和战略家的角色中不断转换。在参观场地的过程中,漫步在空旷的建筑之间,我们立刻被空间的构成,断壁残垣中诗意的颓废感以及仍然存在的老厂房的灵魂所吸引。甲方最初的愿景是拆除现有的场地进行重建,但我们成功地说服,让他对重组再利用产生了兴趣。通过对原有建筑的框架进行保护性重组并完成城市功能结构,来改造附近的村庄,打造一个文化交流的场所。
我们致力于开发每个现有建筑的附属功能。同时,我们精心设计并完善了场地的城市构成:这包括了从远处眺望的视角、建筑与开阔区域的顺序、景观、建筑等。在建筑方面,我们还对材料及其排布,光线,原始场地的保留元素进行了探讨。园区中主要节点都沿着主体道路进行布局,使得园内景观既富有动感又可以让游客在其中漫步徘徊。在施工过程中,尽量使用本地材料,尤其是砖块,因为这能突出了该场地的历史。施工中主要使用自然通风,对水资源进行了循环利用,并尝试使用可再生能源,以减少对环境的影响。该项目已获得了LEED的白金认证。在过去的七年中,中国只有十座建筑获得了该认证。该项目由十二座建筑物组成,这些建筑物按照不同的功能组合在一起:一个围绕着建筑群的开阔草坪,一些由红砖、钢制结构或是灰色混凝土搭成的建筑。
这些空间围绕着一系列蕴含中国传统风格的花园。园区内散落着几家餐馆。他们的室内设计彰显了场地的工业灵魂。园区内还有一个可容纳800人的会议室,可以根据客户的需求进行改造。园区中还有几个艺术画廊,这些长廊通向一个大型陈列室和一个面向水域的自助餐厅。这片水域曾经污染严重,但已被彻底净化。还有一个能够看到双向舞台的多功能空间,该建筑面向一片开阔的草坪。在这里,草坪便作为建筑的“自然延伸”,也可以作为一个室外的舞台。园区中还有一幢包含着广播演播室的大楼,这幢楼位于老厂房北广场的烟囱后方。每每望向它,都能在背景中看到属于原址的标志性元素,砖厂的高烟囱。如今的它已不会被再度启用,但它仍是该地区工业历史的见证。
上海8342 长三角路演中心外部实景图
上海8342 长三角路演中心外部实景图
上海8342 长三角路演中心外部实景图
上海8342 长三角路演中心外部实景图
上海8342 长三角路演中心外部实景图
上海8342 长三角路演中心外部实景图
上海8342 长三角路演中心内部实景图
上海8342 长三角路演中心内部实景图
上海8342 长三角路演中心内部实景图
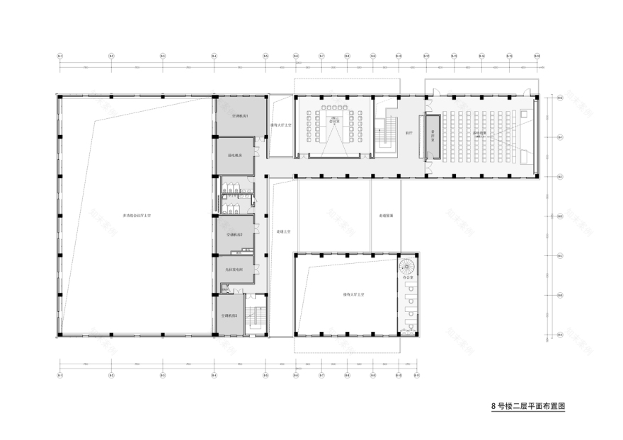
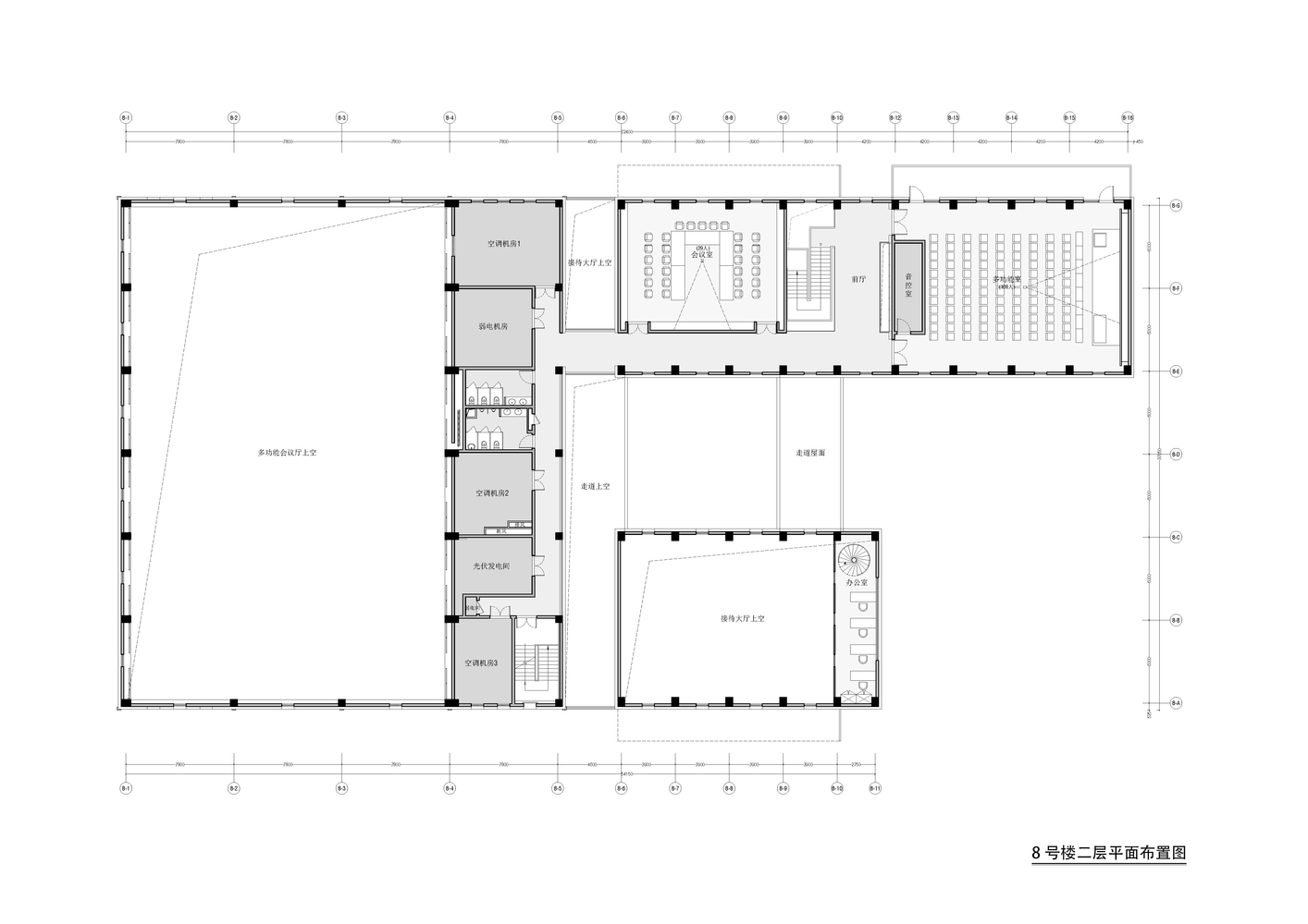
上海8342 长三角路演中心平面图
上海8342 长三角路演中心平面图
上海8342 长三角路演中心平面图
上海8342 长三角路演中心剖面图
上海8342 长三角路演中心立面图
上海8342 长三角路演中心立面图
上海8342 长三角路演中心剖面图
客服
消息
收藏
下载
最近



















