查看完整案例

收藏

下载
项目名称:美国达拉斯剧院
位置:美国
设计公司:OMA、REX
达拉斯剧院中心(DTC)以其创新作品而闻名于世,这归功于剧院一直开展实验,并且其长期演出场地具有临时场所的性质。达拉斯剧院中心位于艺术区剧院,这个破旧的金属棚让在其中常驻的公司不受固定舞台配置带来的限制,并且不会损坏昂贵的室内装饰。在那里工作的导演不断挑战传统的戏剧表演方式,常常为实现自己的艺术概念而重新设定舞台形式。因此,艺术区剧院被誉为美国舞台布景最灵活的剧院。然而,反复重新布置舞台成为一种沉重的经济负担,达拉斯剧院中心最终将其固定为“伸出式舞台”。达拉斯剧院中心的改造设计面临几大挑战。首先,新剧院需要与其先前的剧院同样具有灵活布置舞台的特性。其次,新的场地不但要形式灵活,也要保证最低的运营成本。Dee + Charles Wyly 剧院颠覆了传统的剧院设计,克服了这些挑战。Wyly 剧院没有将前台和后台围绕着观众席和舞台塔布置,而是将这些设施在建筑中上下叠加。
这一策略将建筑转变为一台大型的“剧院机器”。只要按下按钮,剧院就可以转换成各种配置的舞台,包括镜框式、伸出式和平面式舞台,让导演和舞台布景师们能够自由布置舞台与观众席,以满足他们的艺术需求。此外,为了鼓励改动布置,表演空间特意采用了廉价的材料,舞台与观众席空间的表面能够以较低的成本进行切割、钻孔、上色、焊接、锯切、打钉、粘贴、缝合等改动。将 Wyly 剧院的辅助设施竖向布置也解放了整个表演空间的周围,让幻想与现实可以在任何时间或地点相结合。由隔音玻璃幕墙包围的观众席安装了可开启或关闭的隐蔽式遮光帘,导演可根据需求将达拉斯的天际线与街景融入表演。立面的面板也可开启,能让观众或表演者绕过楼下的门厅,直接从室外进入观众席或舞台。
Wyly 剧院通过投资基础设施,让表演空间便于改造布置,不受周边空间约束,赋予艺术总监充分的自由来决定整个剧场的观演体验,从观众入场到表演空间布置,再到观众离场。Wyly 剧院可以连续多天在镜框式舞台上演莎士比亚的戏剧,或在平面式舞台上以达拉斯的城市景观为背景表演贝克特的剧目。Dee + Charles Wyly 剧院从达拉斯剧院中心原来的艺术区剧院吸取经验并提升改进,这将使达拉斯成为全美国乃至全世界布置最灵活的剧院的所在地。
美国达拉斯剧院局部实景图
美国达拉斯剧院外部夜景实景图
美国达拉斯剧院外部夜景实景图
美国达拉斯剧院外部夜景实景图
美国达拉斯剧院外部夜景实景图
美国达拉斯剧院外部夜景实景图
美国达拉斯剧院内部实景图
美国达拉斯剧院内部实景图
美国达拉斯剧院内部实景图
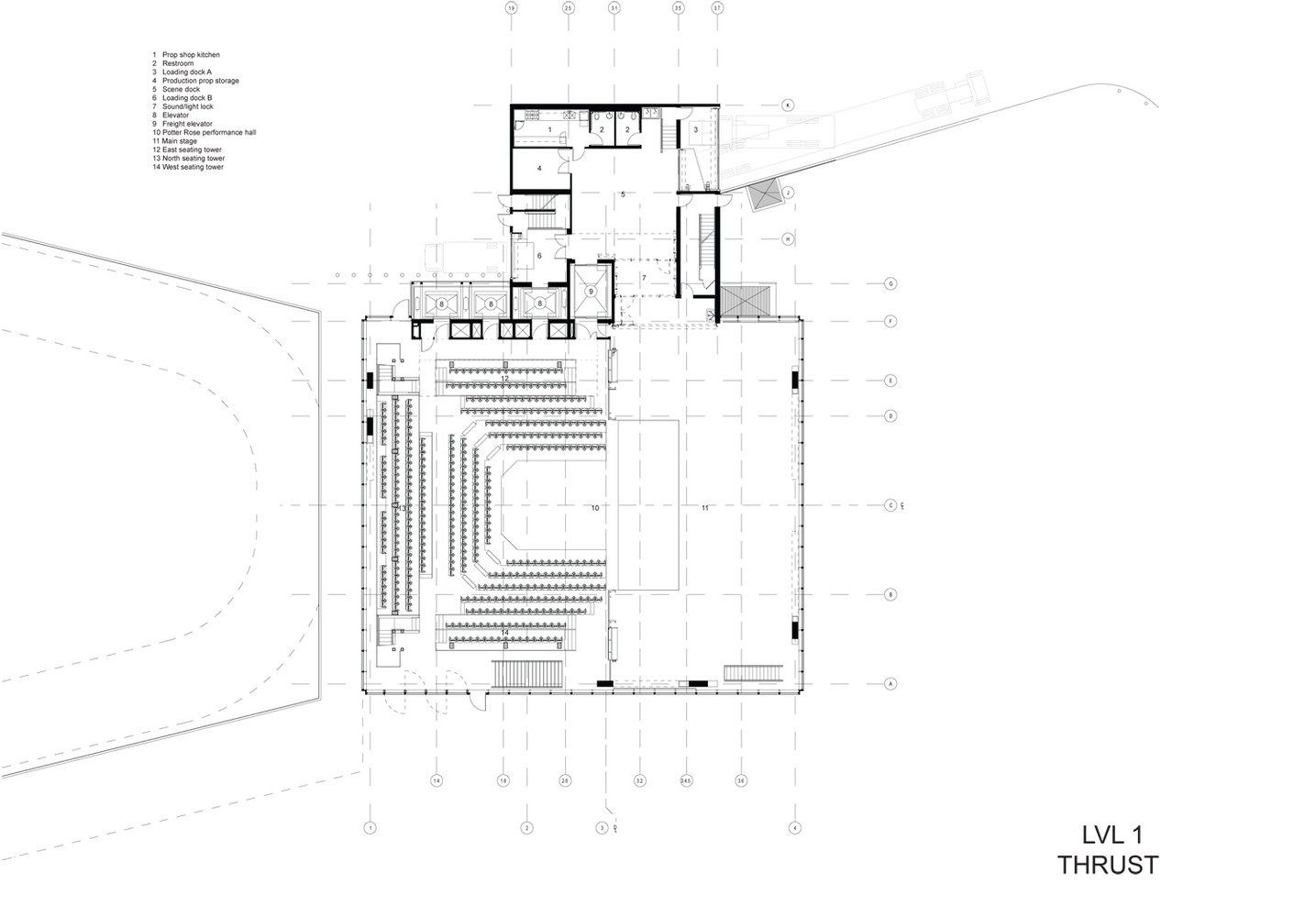
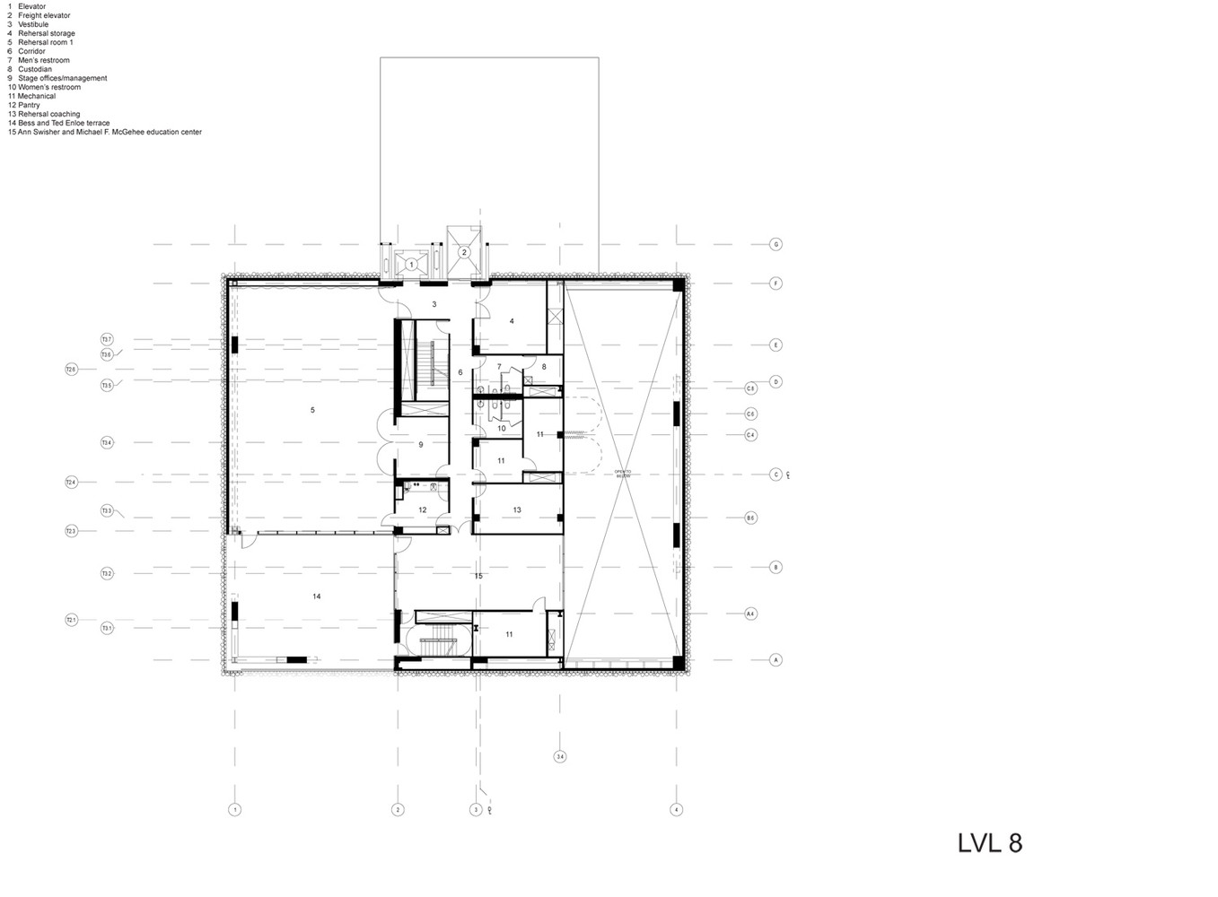
美国达拉斯剧院平面图
美国达拉斯剧院平面图
美国达拉斯剧院平面图
美国达拉斯剧院平面图
客服
消息
收藏
下载
最近
















