查看完整案例

收藏

下载
项目名称:青岛七色山矿坑花园游客中心
位置:山东 青岛
设计公司:UUA建筑师事务所
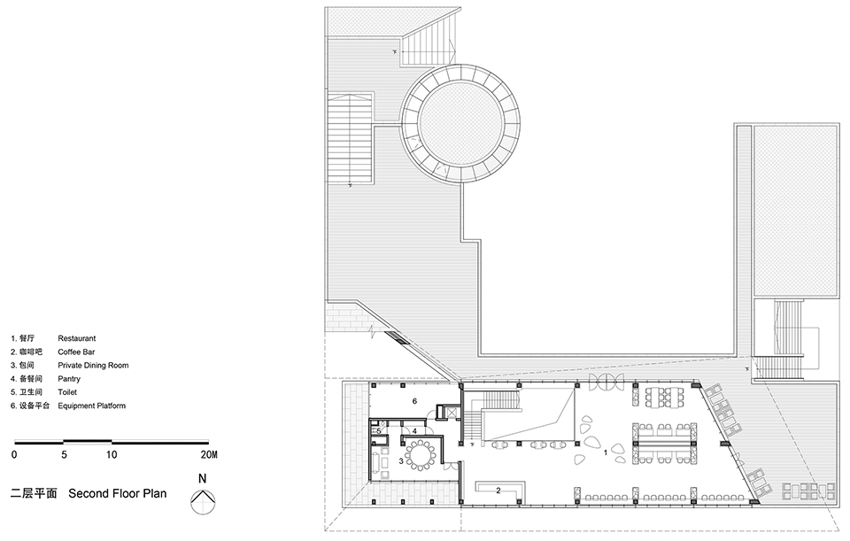
青岛七色山矿坑花园及其游客中心坐落于一处2017年停止开采的采石场遗址之上。经历了数十年的开采,这一地区的植被和土壤遭到了严重破坏,大地伤痕累累。随着地方政府推动的环保举措以及私营资本的参与,这里自2017年开始经历了长达数年的生态修复,曾经被破坏土地都覆盖上了绿色植物,一座崭新的生态公园在2020年面向公众开放。为了唤起场地的回忆,游客中心的设计概念取义“大地之痕”,用一种尖锐、强悍的建筑语言提醒人们这里曾经发生的生态破坏。‘裂痕’起自北端,建筑从大地中升起,向南缓慢爬升至二层,形成上扬的屋顶。作为一座景观中的建筑,连续的屋面模糊了大地与楼层的界限,水平展开的建筑体量与广袤的旷野和地下的岩层形成呼应。在这片经过修复的大地之上,用一种鲜明的建筑语言书写出根源于此的诗意。面向北侧的花园景观,建筑采用半围合式庭院布局,包含餐饮、商店、展览、卫生间和园区管理等日常功能。建筑户外设有多个通廊、台阶和平台,形成了丰富的步行空间体验,让游客与建筑之间产生自然而积极的互动,同时也提供了观赏公园的多重视角。之于花园,建筑北低南高的态势也建构了。
青岛七色山矿坑花园游客中心
外部实景图
青岛七色山矿坑花园游客中心
外部实景图
青岛七色山矿坑花园游客中心
外部实景图
青岛七色山矿坑花园游客中心
外部实景图
青岛七色山矿坑花园游客中心
外部实景图
青岛七色山矿坑花园游客中心
外部实景图
青岛七色山矿坑花园游客中心
外部实景图
青岛七色山矿坑花园游客中心
外部实景图
青岛七色山矿坑花园游客中心
外部实景图
青岛七色山矿坑花园游客中心
外部夜景实景图
青岛七色山矿坑花园游客中心
外部夜景实景图
青岛七色山矿坑花园游客中心
外部夜景实景图
青岛七色山矿坑花园游客中心
外部夜景实景图
青岛七色山矿坑花园游客中心
外部夜景实景图
青岛七色山矿坑花园游客中心
外部夜景实景图
青岛七色山矿坑花园游客中心
外部夜景实景图
青岛七色山矿坑花园游客中心
内部实景图
青岛七色山矿坑花园游客中心
内部实景图
青岛七色山矿坑花园游客中心
平面图
青岛七色山矿坑花园游客中心
平面图
青岛七色山矿坑花园游客中心
平面图
青岛七色山矿坑花园游客中心
剖面图
青岛七色山矿坑花园游客中心
立面图
青岛七色山矿坑花园游客中心
立面图
青岛七色山矿坑花园游客中心
立面图
青岛七色山矿坑花园游客中心
剖面图
青岛七色山矿坑花园游客中心
剖面图
青岛七色山矿坑花园游客中心
剖面图
青岛七色山矿坑花园游客中心
立面图
客服
消息
收藏
下载
最近
































