查看完整案例

收藏

下载
项目名称:法国布尔格里昂媒体图书馆
位置:法国
设计公司:PascaleGuédotArchitecte
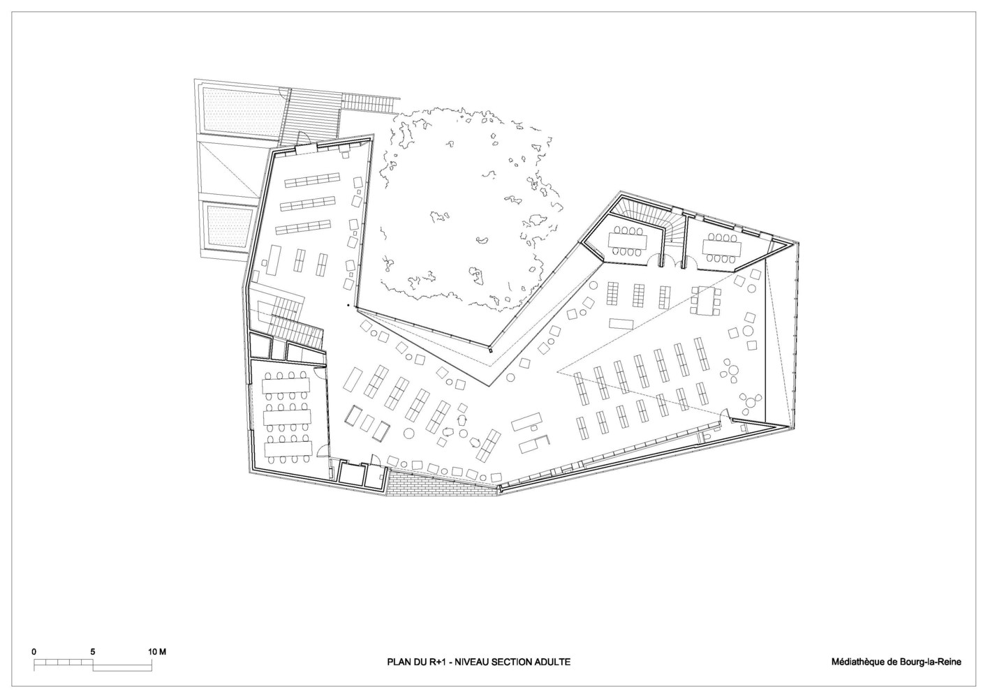
该镇为媒体库选择了一个战略位置:在市中心,距市政厅和教堂仅数米之遥,对面就是1990年代建造的音乐学院。新媒体库是一栋具有里程碑意义的建筑,故意可见且可识别,但它与现有的城市结构礼貌地融合在一起。考虑到挫折,它避免给邻居蒙上阴影。避开表示其存在的信号,它要求在附近发现时进行谨慎的发现。只有到那时,人们才会被体积和建筑特征的力量所震撼。这是一栋建筑物,不怕说明其体积。媒体库的外观呈现出几折,每个方面都响应特定的上下文和特定的约束。在林荫大道一侧,该建筑朝着风景优美的购物中心敞开,其透明度让您可以预见重要的深度。当它沿着Bouvier街折叠时,立面紧紧关闭,只允许两个开口创造出一种动画效果:一个位于地下,类似于一条裂缝,邀请来访者进入;另一个非常大,位于二楼,表明存在一个主要空间。在街区的后部,在街区的中心,立面翻转并环绕其锚点,这是一棵辉煌的100年历史的核桃树。
屋顶也经过刻面处理,通过开放的变化详细说明了它的高度:在外围,它与周围的建筑物不显眼;在中心,它最大限度地提高了PLU法规,以提供建筑物所能承受的最大体积。通过使用灰色石英岩石材(在墙壁和屋顶上相同)来增强结构的整体性。在明显的简单性背后,隐藏了复杂的技术能力。每一面都有特定的构造方法。对于立面,石材的厚度定为80mm,高度和长度各不相同。对于屋顶的主要部分,所使用的石材更薄,被夹在金属下部结构上。坡度在花园一侧更陡,为核桃树的树枝腾出空间。那里的屋顶覆盖着金属支架上的砌石,这项创新技术必须获得Atex认证。作为多用途会议场所,新媒体库始终被赋予杰出的社交功能。“ Bourg la Reine媒体库代表了一种新趋势,”其设计师PascaleGuédot解释说。
在设计阶段开始到施工开始之间,收集量减少了40%。因此,我们能够强调空间的可用性,增加座位数。” 签入/签出是自动进行的,这使公众有更多的员工时间。仔细评估了与媒体库活动以及不断变化的交付方式相关的需求和限制,这使清单的组织结构清晰而实用。与建筑专员的持续对话允许最合理的空间布局,并使阅览室占据广阔的“开放空间”。进入室内后,游客会发现宽阔的空间向花园敞开。内部和外部的融合,外部的一堵石墙继续向内延伸,一条石凳简单地加长,缠绕核桃树的树干,无视所有边界概念。易于使用的木制露台靠在相邻的宴会墙上。夏季,在核桃树的树荫下,花园变成了另一个阅览室。
法国布尔格里昂媒体图书馆外部实景图
法国布尔格里昂媒体图书馆外部实景图
法国布尔格里昂媒体图书馆外部实景图
法国布尔格里昂媒体图书馆外部实景图
法国布尔格里昂媒体图书馆外部实景图__sel
法国布尔格里昂媒体图书馆外部实景图
法国布尔格里昂媒体图书馆内部实景图
法国布尔格里昂媒体图书馆内部实景图
法国布尔格里昂媒体图书馆内部实景图
法国布尔格里昂媒体图书馆内部实景图
法国布尔格里昂媒体图书馆内部实景图
法国布尔格里昂媒体图书馆内部实景图
法国布尔格里昂媒体图书馆剖面图
法国布尔格里昂媒体图书馆剖面图
法国布尔格里昂媒体图书馆立面图
法国布尔格里昂媒体图书馆立面图
法国布尔格里昂媒体图书馆剖面图
法国布尔格里昂媒体图书馆剖面图
se
法国布尔格里昂媒体图书馆平面图
法国布尔格里昂媒体图书馆平面图
法国布尔格里昂媒体图书馆平面图
客服
消息
收藏
下载
最近
























