查看完整案例

收藏

下载
项目名称:荷兰Zuidplein剧院
位置:荷兰
设计公司:De Zwarte Hond
Zuidplein剧院是Hart van Zuid的一部分,Hart van Zuid是一个围绕Zuidplein和Ahoy活动中心的区域性公私合作开发项目。Ballast Nedam和Heijmans 与鹿特丹市合作在这里建设项目,例如鹿特丹 Ahoy会议中心,鹿特丹 Zwemcentrum (游泳池),Zuidplein购物中心的扩建部分,新的公交车站,酒店,住房和招待费场地。室外(公共)空间也将被完全重新设计。在鹿特丹 Zwemcentrum之后,Zuidplein剧院是在Hart van Zuid完成的第二个项目。 Zuidplein剧院取代了相邻的前剧院,该剧院建于1953年。新剧院启用后,旧建筑将被循环拆除。位于哈特·范·祖伊德(Hart van Zuid)中心的中央地段,毗邻公交车站和地铁站,可轻松吸引路人前去窥视,从而使更广泛的观众可以接触到艺术和文化。 Zuidplein剧院取代了相邻的前剧院,该剧院建于1953年。新剧院启用后,旧建筑将被循环拆除。位于哈特·范·祖伊德(Hart van Zuid)中心的中央地段,毗邻公交车站和地铁站,可轻松吸引路人前去窥视,从而使更广泛的观众可以接触到艺术和文化。
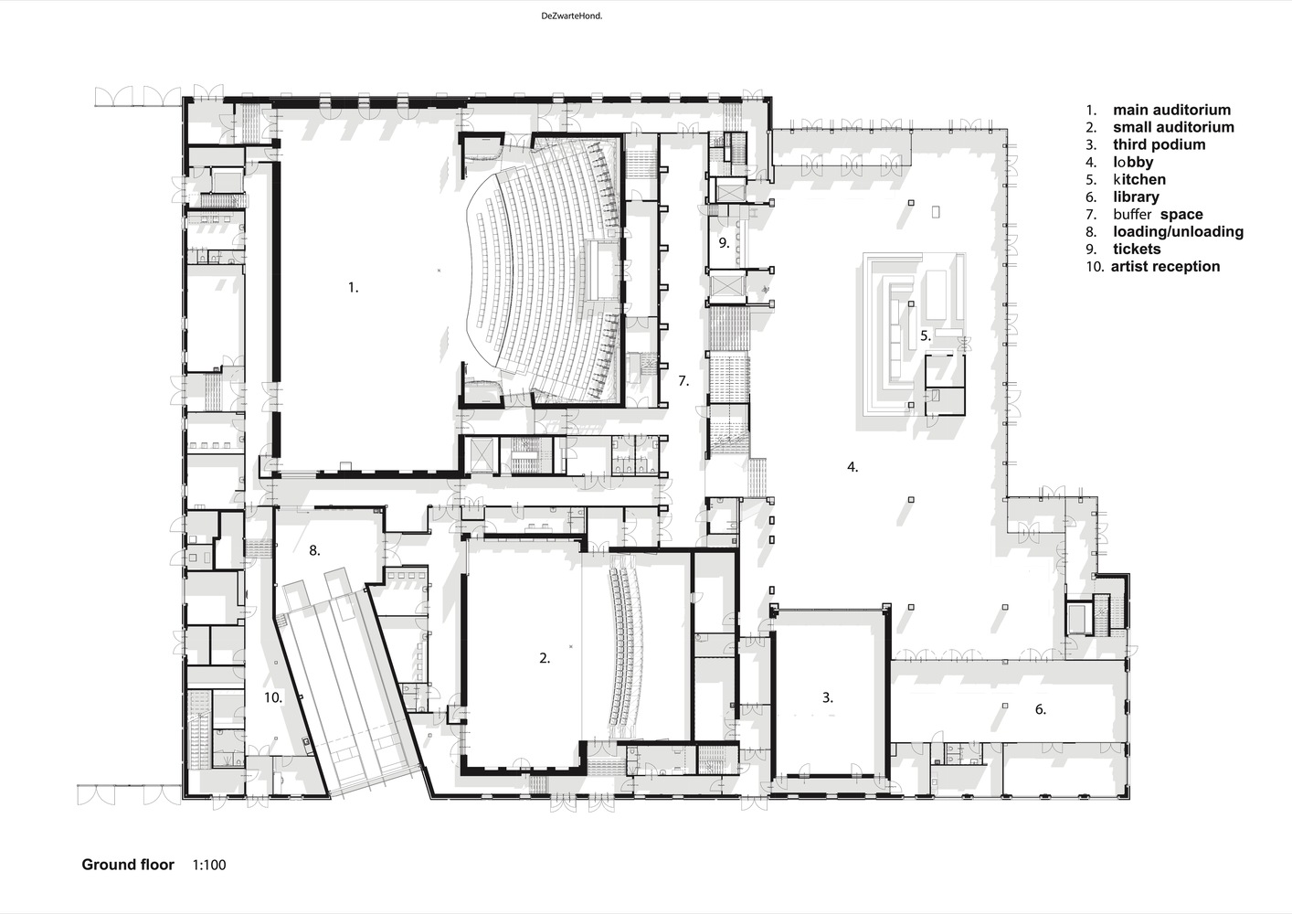
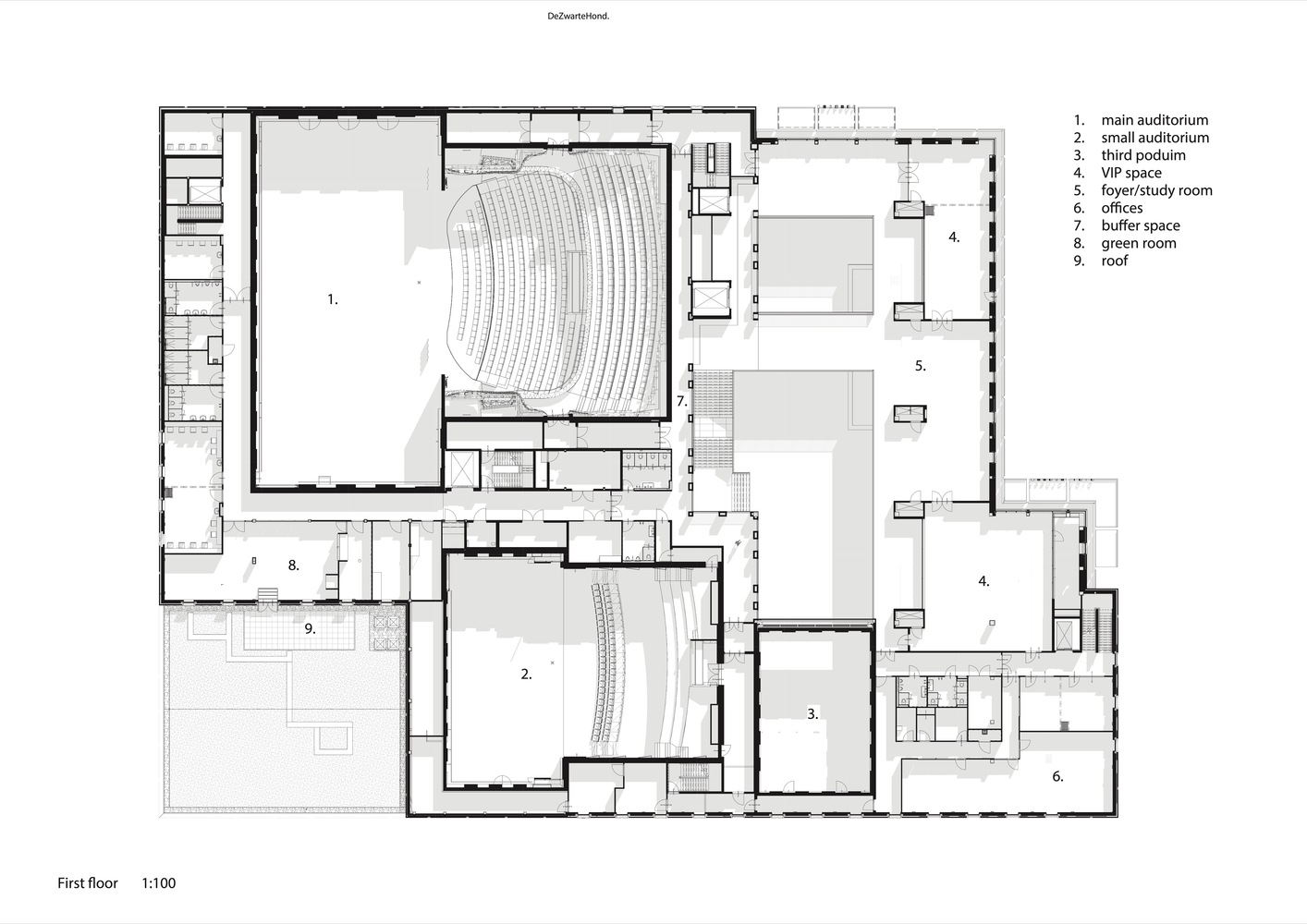
Zuidplein剧院净空紧凑的空间约为12.500 m 2。出于噪声考虑,两个礼堂位于地铁一侧,离居民区最远。在这里,建筑物显得封闭而亲密,坚固的砖石外墙以独特的垂直壁ni为重音。相比之下,半透明的阳极氧化铝面纱在入口上方精致地垂垂。入口区承担着主要的公共职能,例如图书馆的阅览桌和咖啡厅/餐厅。白天,半开放式立面在内部营造出美丽的光线,到了晚上,立面从内部照亮以突出吸引人的入口。高高的大厅构成了建筑的核心。每个功能都直接或间接地与这个空间相连,那里总是有人们可以做和发现的事情。作为鹿特丹-祖伊的“起居室”,大厅有一个额外的舞台,可举办受欢迎的活动,例如儿童表演和其他以社区为中心的活动,乐队,DJ和展览。由De Zwarte Hond与BURO M2R合作设计,内部与建筑无缝融合。铝制薄纱的透明和弯曲形式反映在各种内部元素中。
BURO M2R设计的灵活,可移动的定制家具使空间可以以不同的方式进行配置。钢制家具和镶板给室内增添了大胆的外观,同时红色的内饰和地板增添了剧院的独特温暖。拥有600个座位的主礼堂具有两个独特之处。基于鹿特丹的建筑实践Studio RAP设计了一个隔音墙,看似以一种流畅的姿态拥抱着听众和表演艺术家。该设计由6000种不同的三角形铝复合板制成-剧院材料的意外选择。算法可以计算出三角形面板的位置,从而在影院中产生出色的音响效果,而无需使用隔音材料。礼堂的独特之处还在于如何适应常设音乐会。按照惯例,通常会减少座位舒适度的滑动式讲台将被拆除,以腾出空间来站立。在Zuidplein剧院,舞台面积超过大厅,可以轻松地转换成多功能空间,最多容纳1000位站立或跳舞的游客。这意味着可以在礼堂中安装更舒适的固定座位。底楼和阳台可以使用活动墙与空间隔开。
荷兰Zuidplein剧院外部实景图
荷兰Zuidplein剧院外部实景图
荷兰Zuidplein剧院外部实景图
荷兰Zuidplein剧院外部实景图
荷兰Zuidplein剧院内部实景图
荷兰Zuidplein剧院内部实景图
荷兰Zuidplein剧院内部实景图
荷兰Zuidplein剧院内部实景图
荷兰Zuidplein剧院内部实景图
荷兰Zuidplein剧院内部实景图
荷兰Zuidplein剧院平面图
荷兰Zuidplein剧院平面图
荷兰Zuidplein剧院剖面图
客服
消息
收藏
下载
最近
















