查看完整案例

收藏

下载
项目名称:加蓬E3MG-莫安达矿业与金属博物馆
位置:加蓬
建筑师:Maissa建筑
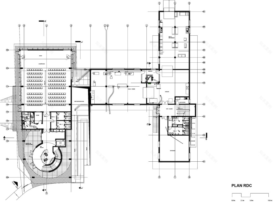
在加蓬东南部地区进行了近半个世纪的采矿活动之后,法国跨国公司Eramet-Comilog Group与加蓬政府携手在莫安达建立了专门的采矿和冶金大学。在高等矿业学院等德拉Métallurgie德莫安达(E3MG),由南锡大学(法国)的支持。除了对专业工程师进行培训之外,E3MG还将进行研究,为帮助加蓬的采矿业从单纯的采矿业过渡到制造高价值金属铺平道路。校园跨越三十个区域,从森林中提取,并被群山和采矿谷所环绕。大院包括十三栋建筑物和设施,可容纳六十名学生和十二名人员和教师,例如学生宿舍,教职工和教师的房屋,餐厅,门厅,运动场,发电厂,净水和消防用水。整个总体规划以主楼为主导,主楼同时主持教学和管理活动,还设有图书馆,礼堂,实践实验室和医疗部门。由于功能的高度集中,我们设计了一个H形的两层建筑,其中两个略微平行的体积通过类似桥梁的光体积相互关联。
下层由混凝土裙板制成,混凝土裙板部分挖入地下,并用阳极氧化铝板包裹,以保护混凝土免受湿气和热的影响。地下有机械室,IT室和医疗室,可通过向内庭院一侧的外部坡道和车辆外部访问。一个150个座位的礼堂位于入口一侧的一楼左翼,而连接翼和右翼则是实验室。另一方面,高层由立面和金属屋顶的工字钢和角铁的钢门构成。H配置允许用法多样化,同时允许统一。当必须满足或满足特定需求时,空间会彼此隔离,因为它们沿着H周边贯穿连续的物理长廊相互关联。除左翼外,混凝土裙楼占据了大部分底楼,大厅是自然采光的,与上层所有非专业化房间一样,视觉上沉浸在大自然中。其余的一楼设有化学(冶金)和地球科学培训实验室,用于岩石研究。上立面沿H分支构成连续的玻璃彩带,允许自然采光,并且每个房间都可以“沉浸式体验无尽欣赏周围自然美景”。
内部分布是从H的内部边缘开始的,从而实现了长而沉思的长廊,完全暴露于自然和光线。AGC玻璃STOPSOL青铜夹层玻璃面板与丙烯酸涂料不锈钢面板随机交替,创造出与当地文化相呼应的图案,同时帮助建筑外墙融入自然。因此,它的庞大性,STOPSOL玻璃具有防日晒性能,并且从外侧到内侧都层叠有6毫米的青铜玻璃面板,0.38毫米的PVB膜,另外6毫米的透明玻璃面板和2毫米的玻璃面板。突出的竖框增强了防晒效果,那些额外的450毫米外部细鼻凸出了进一步的阴影,就像“ brise-soleil”。内部隔断墙由隔音的13mm铝钉石膏板制成,这将有助于将来的适应性。因为该地区的降雨率是全球最高的,所以屋顶的几何形状被认为是一组多面雨伞,高度不同,两个低点与内部水管重合。
加蓬E3MG-莫安达矿业与金属博物馆外部实景图
加蓬E3MG-莫安达矿业与金属博物馆外部实景图
加蓬E3MG-莫安达矿业与金属博物馆外部实景图
加蓬E3MG-莫安达矿业与金属博物馆外部实景图
加蓬E3MG-莫安达矿业与金属博物馆外部实景图
加蓬E3MG-莫安达矿业与金属博物馆外部实景图
加蓬E3MG-莫安达矿业与金属博物馆外部实景图
加蓬E3MG-莫安达矿业与金属博物馆外部实景图
加蓬E3MG-莫安达矿业与金属博物馆外部实景图1
加蓬E3MG-莫安达矿业与金属博物馆外部夜景实景图
加蓬E3MG-莫安达矿业与金属博物馆外部夜景实景图
加蓬E3MG-莫安达矿业与金属博物馆外部夜景实景图
加蓬E3MG-莫安达矿业与金属博物馆外部夜景实景图
加蓬E3MG-莫安达矿业与金属博物馆外部夜景实景图
加蓬E3MG-莫安达矿业与金属博物馆内部实景图
加蓬E3MG-莫安达矿业与金属博物馆平面图
加蓬E3MG-莫安达矿业与金属博物馆平面图
加蓬E3MG-莫安达矿业与金属博物馆平面图
加蓬E3MG-莫安达矿业与金属博物馆平面图
加蓬E3MG-莫安达矿业与金属博物馆轴测图
加蓬E3MG-莫安达矿业与金属博物馆剖面图
加蓬E3MG-莫安达矿业与金属博物馆剖面图
加蓬E3MG-莫安达矿业与金属博物馆立面图
加蓬E3MG-莫安达矿业与金属博物馆立面图
加蓬E3MG-莫安达矿业与金属博物馆立面图
加蓬E3MG-莫安达矿业与金属博物馆立面图
加蓬E3MG-莫安达矿业与金属博物馆立面图
客服
消息
收藏
下载
最近






























