查看完整案例

收藏

下载
项目名称:法国摩纳哥图书馆
位置:法国
设计公司:OECO建筑
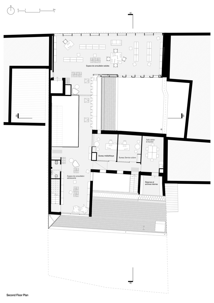
该项目位于法国南部一个名为莫宁。这座建筑坐落在市政厅附近的主广场上。这个想法是创造一个能真正在城市中发挥旗舰作用的建筑。我们设计这座建筑的策略是利用和保护城市和建筑环境,创造一个与历史环境对话的当代建筑。因为它是一个公共建筑,它的建筑必须符合它的功能。利用主广场周围实际城镇住宅的美学规范,其当代建筑使媒体图书馆成为城镇广场的城市地标。当建筑与相邻的房子对齐时,在底层会产生一个缝隙,形成一个门廊和一个通往前院的入口。为了创造历史和当代之间的对话,我们决定保留现有的谷仓,这成为前院的背景。在里面,从大厅我们可以看到花园里完全开放的阅览室。在地块的南部,这个花园为底层的阅览室提供了适量的光线和宁静的氛围。此外,位于二楼的阅览室在正面的整个宽度上是开放的,并且提供了令人印象深刻的莫宁。从外面看,这个水平的窗户在两个相邻的建筑之间形成了一个连字符。扩建部分环绕着翻新后的谷仓,现有的石墙在媒体库中展现了谷仓的历史,并组织了不同的空间。双重高度连接了媒体库的两个楼层。这座公共建筑必须有吸引力,所以前院是给城市的。它激活了主广场,并使居民想要进入该设施。烹饪活动室在大楼的前面。建筑干预尊重现有的谷仓,并与之形成对比。它创造了新旧建筑之间的对话;木头、黑色金属、混凝土和现有石墙之间。这些保暖材料为使用者拓展了建筑物的所有权。这座建筑是社交的欢乐场所;一切都是为了创造一个让用户有宾至如归的感觉的建筑。
法国摩纳哥图书馆外部实景图
法国摩纳哥图书馆外部实景图
法国摩纳哥图书馆外部实景图
法国摩纳哥图书馆内部实景图
法国摩纳哥图书馆内部实景图
法国摩纳哥图书馆内部实景图
法国摩纳哥图书馆内部实景图
法国摩纳哥图书馆内部实景图
法国摩纳哥图书馆平面图
法国摩纳哥图书馆平面图
法国摩纳哥图书馆平面图
法国摩纳哥图书馆平面图
法国摩纳哥图书馆立面图
法国摩纳哥图书馆剖面图
法国摩纳哥图书馆剖面图
法国摩纳哥图书馆立面图
客服
消息
收藏
下载
最近



















