查看完整案例

收藏

下载
从中世纪到现代,拥有着新石器时代重要的古建筑遗迹,历经了古罗马和阿拉伯时期的建设,Alto-Alentejo一直被视为伊比利亚半岛上最富有文化气息的地区之一。
由于缺乏大面积的含水层,该地区的地貌有着些许不同,小型高地分布其中。在此居住的人们习惯性地会去寻找这片区域相对较高的地点,用于防御和宣告统治权的目的。
Extramuros 别墅就建于古城
Arraiolos
郊区一个类似的小山丘的斜坡上,被设计成一个小型的家庭旅馆。
由大量橄榄树围绕的别墅,其规模和外观的实现运用了Alentejo 古老庄园的概念。虽然它的建筑特征源于当代建筑简洁的线条。
这个用于业主本人居住和家庭旅馆的别墅,根据餐厅和客厅的朝向,在一楼设有两个大型的开口,以达到与外部环境关联的目的。四周环绕着的大片橄榄树,附近的牧场和远处的
Arraiolos
镇构成了一幅相辅相成的田园风光。
有着几处开口的白色外立面覆盖两层楼面,给予了这幢别墅一个独特而又抽象的外表。
正门入口是这些开口中的一个。天花板、墙壁甚至是入口的门都使用了软木衬里,为入口处曾添了一丝温馨的气氛。
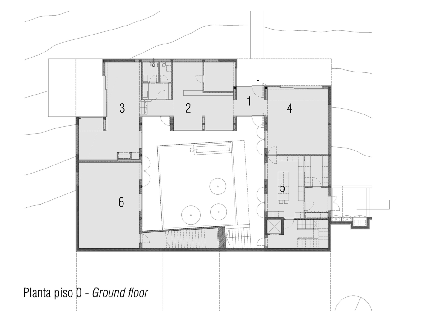
接待处、厨房、餐厅以及客厅围绕着一个正方形庭院。庭院的一端连接着通往上层楼面的外部楼梯。
该建筑围绕着一个中央庭院,使阳光可以通过建筑物的所有角落。主要的循环路线在室外,围绕着庭院。
空间分布的灵感源于该地区古代修道院的空间布局,即餐厅、章室和厨房围绕着中央回廊。
二楼被分成四个独立的“体块”,为室内提供了更加温和的感受。洁白素雅的体块由低密度的软木墙连接。
四间客房分布在其中两个体块内,主卧套房则占据了整个第三体块。第四个体块由业主的生活区组成。
上层楼面经碎片化被分为四个小体块,这种由较矮的墙壁和小型庭院组成的分割方式可以在该地区的城镇建筑中找到相似之处。
每间客房都拥有一个私人庭院,住户也可由庭院到达房间。通过外立面上的水平开口,住户可以在庭院内欣赏到周围景色的全部风貌。
该建筑与葡萄牙南部大多数的典型住宅相似。它们大都简洁而又正式,精简了材料种类,注重了空间布局和施工细节。
业主提供的高质量服务,可供客人使用的多元化空间,以及小型企业和当代室内空间的特殊性,使这个项目变得独一无二。因此,这个观光性质项目的完成是基于传统历史性建筑的旅游业。
客服
消息
收藏
下载
最近
























