查看完整案例

收藏

下载
项目名称:美国匹兹堡卡内基图书馆
位置:美国
建筑师:GBBN
自1895年以来,匹兹堡卡内基图书馆通过在自由,开放和包容的环境中提供对信息的访问,使人们能够学习和成长。但是在匹兹堡的诺克斯维尔附近,被忽视的建筑结构阻碍了人们使用图书馆服务。这项翻新工程将1962年的野兽派混凝土砌体建筑转变为一个温暖而诱人的目的地,为多样化的工人阶级社区提供了便利。建筑物的戏剧性形式,包括两个大型屋顶监视器,在保持室内空间的同时得以保持。原始建筑物的正面和侧面的小型日光填充物使室内设计最大化,为青少年提供了专用区域,并为儿童区域提供了室外甲板。成人服务区已扩大,并在开放空间计划中增加了一些区域,供计算机使用,休闲阅读,聚会和安静学习等活动。较低级别的两个会议室可供图书馆计划和社区使用。交互式的灯光显示屏可在夜间为前立面设置动画效果,是教育工具的两倍,顾客可以通过青少年区域的计算机来控制显示屏。可持续的设计特征包括LED灯具和为提高效率而设计的可变制冷剂流量加热和冷却系统。外部环境美化在陡峭的斜坡上结合了一个雨水花园和植物,以控制侵蚀并改善雨水径流质量。
美国匹兹堡卡内基图书馆外部夜景实景图
美国匹兹堡卡内基图书馆内部实景图
美国匹兹堡卡内基图书馆内部实景图
美国匹兹堡卡内基图书馆内部实景图
美国匹兹堡卡内基图书馆内部实景图
美国匹兹堡卡内基图书馆轴测图
美国匹兹堡卡内基图书馆轴测图
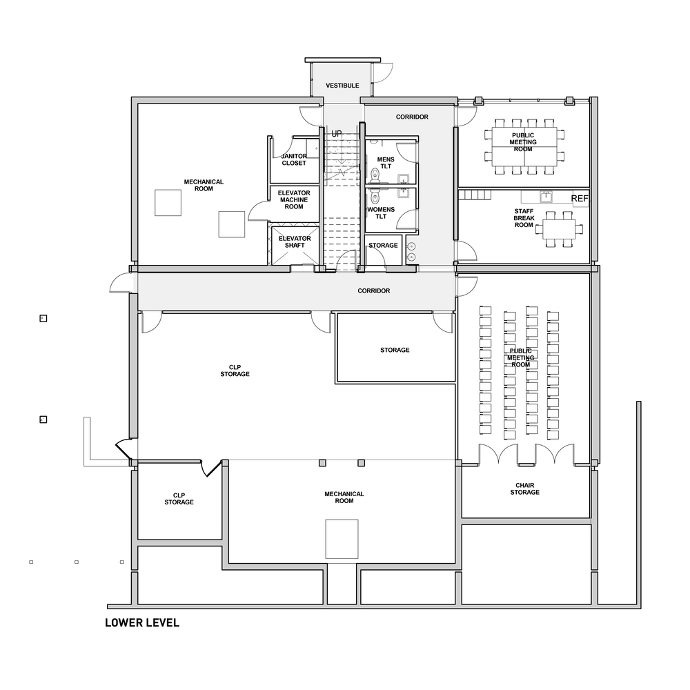
美国匹兹堡卡内基图书馆平面图
美国匹兹堡卡内基图书馆平面图
美国匹兹堡卡内基图书馆平面图
客服
消息
收藏
下载
最近













