查看完整案例

收藏

下载
设计师接到用8万欧设计一栋建筑用地面积390平方米,基底面积为160平方米的住宅项目,这基本是不可能完成的任务。经过协商客户将设计费用增加到10万欧。方案初为将建筑设计为基底面积110平方米,总建筑面积220平方米的住宅建筑。由于葡萄牙的用地法规规定,建筑的用地面积不得少于规划用地面积,又基于没有多余的设计经费,设计师将方案更改为一栋9 x 9 x 6 米的住宅,共两层,其中每层162平方米。
▼建筑全貌
▼住宅入口
▼建筑夜景
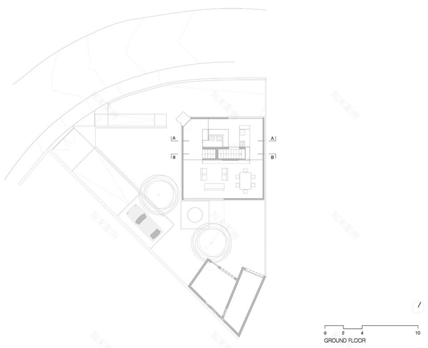
建筑基底平坦,没有沿街道倾斜,周边围绕植物花园,外围附属建筑等待拆除。平面规划将设计程序分割。社交功能和服务功能被安排在地面层,上层为三间卧室和洗手间。为了缩减预算设计师抛弃了建筑设计中昂贵的部分,其中:1.设计师减少了洗手间的数量,其中两个洗手间中只有一间配备淋浴间;2.设计师倾向于将预算用于建筑的能源供给而不是材料运用。将住宅想象成迷你燃料库。利用混凝土墙壁打造隔热系统;3.建筑底层包括中央5.2 x 3.7 米的厨房,洗手间,楼梯和房间在内的平面规划,也展现了局促空间的合理化运用,节省了开支。
▼客厅
▼底层中央厨房
▼底层为全开放布局
▼楼梯通向二层
▼卧室
▼隐藏在卧室壁门之后的洗手间
▼次卧
▼洗手间接受自然采光
▼底层平面图
▼二层平面图
▼轴侧分析图
客服
消息
收藏
下载
最近

























